Chanctonbury Way, Woodside Park
By Real Estates
£ 925,000
Reviews
3 out of 5 stars
Real Estates says ..
* CHAIN FREE * Real Estates are pleased to offer this 3 BEDROOM SEMI-DETACHED house on a dead-end residential street in Woodside Park. Benefitting from a SOUTH FACING GARDEN, the property has potential to extend into the loft and out the rear (STPP). The ground floor accommodation compr...
Property Oracle says ..
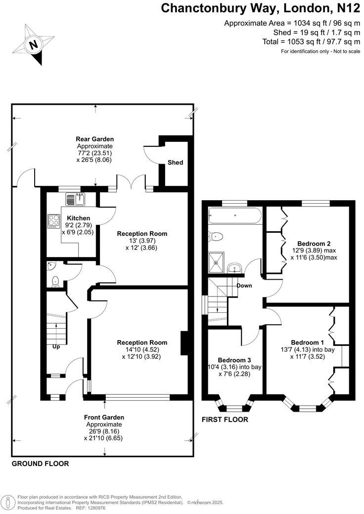
Chanctonbury Way, Woodside Park, Barnet, London, N12 7AQ is a three-bedroom semi-detached property with one bathroom, listed at £925,000. The property has a plot size of 1,053 sqft and an internal area of 773 sqft.
The property is located in Woodside Park, which benefits from good local schools such as Woodridge Primary School and Frith Manor Primary School, both rated ‘Good’ by Ofsted. Several other well-regarded schools are within a reasonable distance. Transport links are also relatively convenient, with several train stations within a 4-6km radius. The area appears to be residential, and the proximity to local schools and transport links suggests a desirable family-friendly location. However, more detailed information on the immediate surroundings and amenities would be needed to give a fully comprehensive location score.
Based on the images provided, the property appears to be in good condition. While some aspects may require updating to suit modern tastes, there is no visible evidence of significant structural damage or disrepair. The interior features original period details, such as the bay windows and fireplaces, which are well maintained. The kitchen and bathroom appear functional, but a modernisation could enhance their appeal. The property benefits from a well-maintained garden.
The list price of £925,000 seems slightly above the average price of £831,263 for the area. However, the average property size in the area is considerably larger (1,127 sqft) compared to this property (773 sqft). The average price per sqft in the area is £737, while this property is priced at approximately £1,199 per sqft. Considering the property’s condition, location, and garden, the price may be slightly high in comparison to the average, but the premium is likely due to the desirable location and the property’s period features. However, further analysis of comparable properties in the area would be beneficial to determine a more precise valuation.
The property appears to be a traditional property that has had some modernisation.
Therefore, we give this property 6 / 10. *Disclaimer: This is our option and does constitute a recommendation or financial advice. Do your own research. *
- Price
- 6
- Condition
- 7
- Location
- 0
- Land
- 7
- Bedrooms
- 3
- Bathrooms
- 1
- Sqft (est)
- 773.00
- Lot (est)
- 1,053.00
The heatmap indicates the level of crime in the area. The color of the heatmap indicates the crime severity and recency.
Metrics Year-on-Year
- Average area value
- 1,077,389.00 £Increased by 1.83 %
- Est sale value
- 503,996.00 £Increased by 8.49 %
- Average area rental value
- 2,772.00 £/moIncreased by 5.36 %
- Est letting value
- 773.00 £/moUnchanged by 0.00 %
- Est rental Yield
- 3.09 %Increased by 3.69 %
- Crime Rate
- 4.00 %Unchanged by 0.00 %
Agent Activity
Real Estates created the listing.
Nearby Schools
| Name | Type | Ofsted | Distance |
|---|---|---|---|
| Woodridge Primary School | Community School | Good | 0.69 KM |
| Frith Manor Primary School | Community School | Good | 0.72 KM |
| St Andrew'S Cofe Voluntary Aided Primary School, Totteridge | Voluntary Aided School | Good | 1.29 KM |
| The Holmewood School | Other Independent Special School | Good | 1.30 KM |
| Moss Hall Nursery School | Local Authority Nursery School | Outstanding | 1.39 KM |
Images
Nearby Streets
| Name | Average Price | Average Sqft | Distance |
|---|---|---|---|
| Station Approach | £ 0 | 0 | 0.00 KM |
| The Close | £ 3,950,000 | 0 | 0.00 KM |
| Woodside Court | £ 850,000 | 0 | 0.00 KM |
| Adams Close | £ 550,000 | 0 | 0.00 KM |
| School House Lane | £ 419,500 | 0 | 0.00 KM |
Nearby Transport
| Name | NLC | TLC | Distance |
|---|---|---|---|
| Oakleigh Park | 6020 | OKL | 3.98 KM |
| New Barnet | 6018 | NBA | 4.25 KM |
| Mill Hill Broadway | 1527 | MIL | 5.87 KM |
| New Southgate | 6019 | NSG | 5.93 KM |
| Hadley Wood | 6075 | HDW | 6.01 KM |
Nearby Listings
| Address | Price | Type | Score | Distance |
|---|---|---|---|---|
| Chanctonbury Way, Woodside Park | £ 925,000 | BUY | 6 / 10 | 0.00 KM |
| Pyecombe Corner, Woodside Park | £ 1,150,000 | BUY | 7 / 10 | 0.05 KM |
| Pyecombe Corner, Woodside Park | £ 1,150,000 | BUY | Unknown | 0.10 KM |
| Cissbury Ring North, Woodside Park | £ 1,300,000 | BUY | Unknown | 0.15 KM |
| Cissbury Ring North, Woodside Park | £ 1,649,995 | BUY | 7 / 10 | 0.16 KM |
Nearby Properties
| Address | Price | Distance |
|---|---|---|
| 159 Chanctonbury Way | £ 1,400,000 | 0.00 KM |
| 107 Chanctonbury Way | £ 873,000 | 0.00 KM |
| 153 Chanctonbury Way | £ 1,150,000 | 0.00 KM |
| 111 Chanctonbury Way | £ 780,000 | 0.00 KM |
| 145 Chanctonbury Way | £ 430,000 | 0.00 KM |