RDR Dassaur says ..
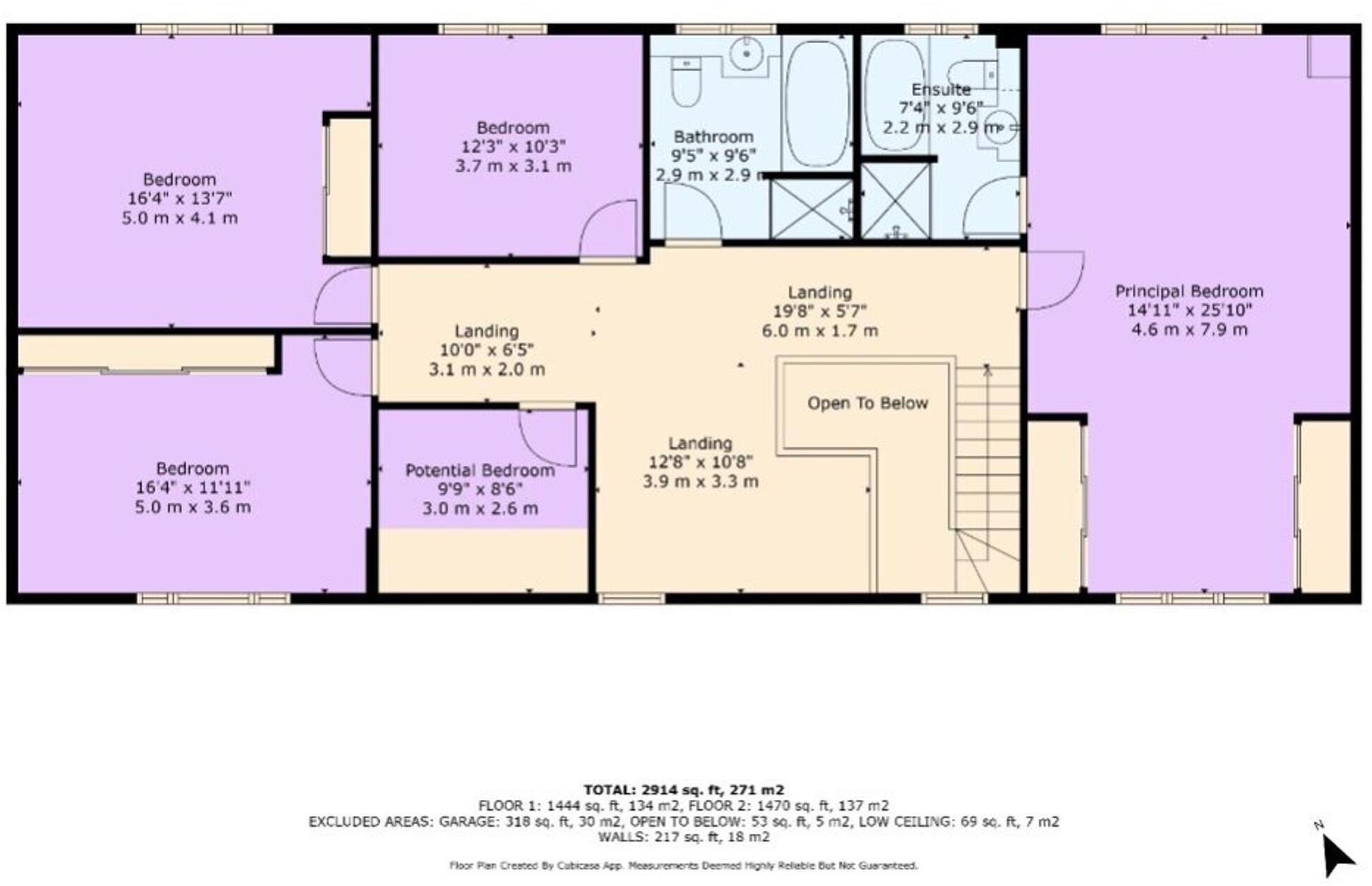
Luxury detached family home in Nuneaton outskirts, blending tranquillity with connectivity. Open field views, spacious rooms, modern kitchen, master suite, garden, and potential for expansion.
Property Oracle says ..
Therefore, we give this property 7 / 10. *Disclaimer: This is our option and does constitute a recommendation or financial advice. Do your own research. *
- Price
- 5
- Condition
- 8
- Location
- 7
- Land
- 9
- Bedrooms
- 4
- Bathrooms
- 2
- Sqft (est)
- 2,497.98
The heatmap indicates the level of crime in the area. The color of the heatmap indicates the crime severity and recency.
Metrics Year-on-Year
- Average area value
- 267,143.00 £Decreased by 15.77 %
- Est sale value
- 801,851.58 £Increased by 53.59 %
- Average area rental value
- 1,008.00 £/moDecreased by 17.65 %
- Est letting value
- 2,497.98 £/mo
- Est rental Yield
- 4.53 %Decreased by 2.16 %
- Crime Rate
- 4.00 %Unchanged by 0.00 %
from 317,161.00 £
from 522,077.82 £
from 1,224.00 £/mo
from 0.00 £/mo
from 4.63 %
from 4.00 %
Agent Activity
RDR Dassaur created the listing.
Nearby Schools
| Name | Type | Ofsted | Distance |
|---|---|---|---|
| Nursery Hill Primary School | Community School | Requires improvement | 0.13 KM |
| Galley Common Infant School | Community School | Outstanding | 1.56 KM |
| Michael Drayton Junior School | Community School | Good | 2.08 KM |
| Nathaniel Newton Infant School | Community School | Good | 2.22 KM |
| Hartshill Academy | Academy Converter | Requires improvement | 2.33 KM |
Images
Nearby Streets
| Name | Average Price | Average Sqft | Distance |
|---|---|---|---|
| St Johns Road | £ 0 | 0 | 0.00 KM |
| West View | £ 162,500 | 0 | 0.00 KM |
| Snowy Close | £ 0 | 0 | 0.00 KM |
| Alders Lane | £ 0 | 0 | 0.00 KM |
| Poplar Way | £ 0 | 0 | 0.00 KM |
Nearby Transport
| Name | NLC | TLC | Distance |
|---|---|---|---|
| Atherstone | 1074 | ATH | 4.62 KM |
| Nuneaton | 1077 | NUN | 8.58 KM |
| Bermuda Park | 6543 | BEP | 8.64 KM |
Nearby Listings
| Address | Price | Type | Score | Distance |
|---|---|---|---|---|
| Ansley Common, Nuneaton, CV10 | £ 850,000 | BUY | 7 / 10 | 0.00 KM |
| Ansley Common, Nuneaton, CV10 0PY | £ 800,000 | BUY | 7 / 10 | 0.01 KM |
| St.Johns Road, Ansley, Nuneaton | £ 180,000 | BUY | 6 / 10 | 0.10 KM |
| Limes Coppice, Nuneaton, Warwickshire, CV10 | £ 170,000 | BUY | Unknown | 0.23 KM |
| Ansley Common, Nuneaton | £ 72,000 | BUY | 7 / 10 | 0.31 KM |
Nearby Properties
| Address | Price | Distance |
|---|---|---|
| The Antlers | £ 127,000 | 0.01 KM |
| Four Winds | £ 305,000 | 0.01 KM |
| Nursery Farm House | £ 149,500 | 0.06 KM |
| 3 Limes Coppice | £ 124,950 | 0.23 KM |
| 2 Limes Coppice | £ 123,000 | 0.23 KM |