Victoria Road, Exmouth
By Meadows Estate Agents
£ 110,000
Reviews
3 out of 5 stars
Meadows Estate Agents says ..
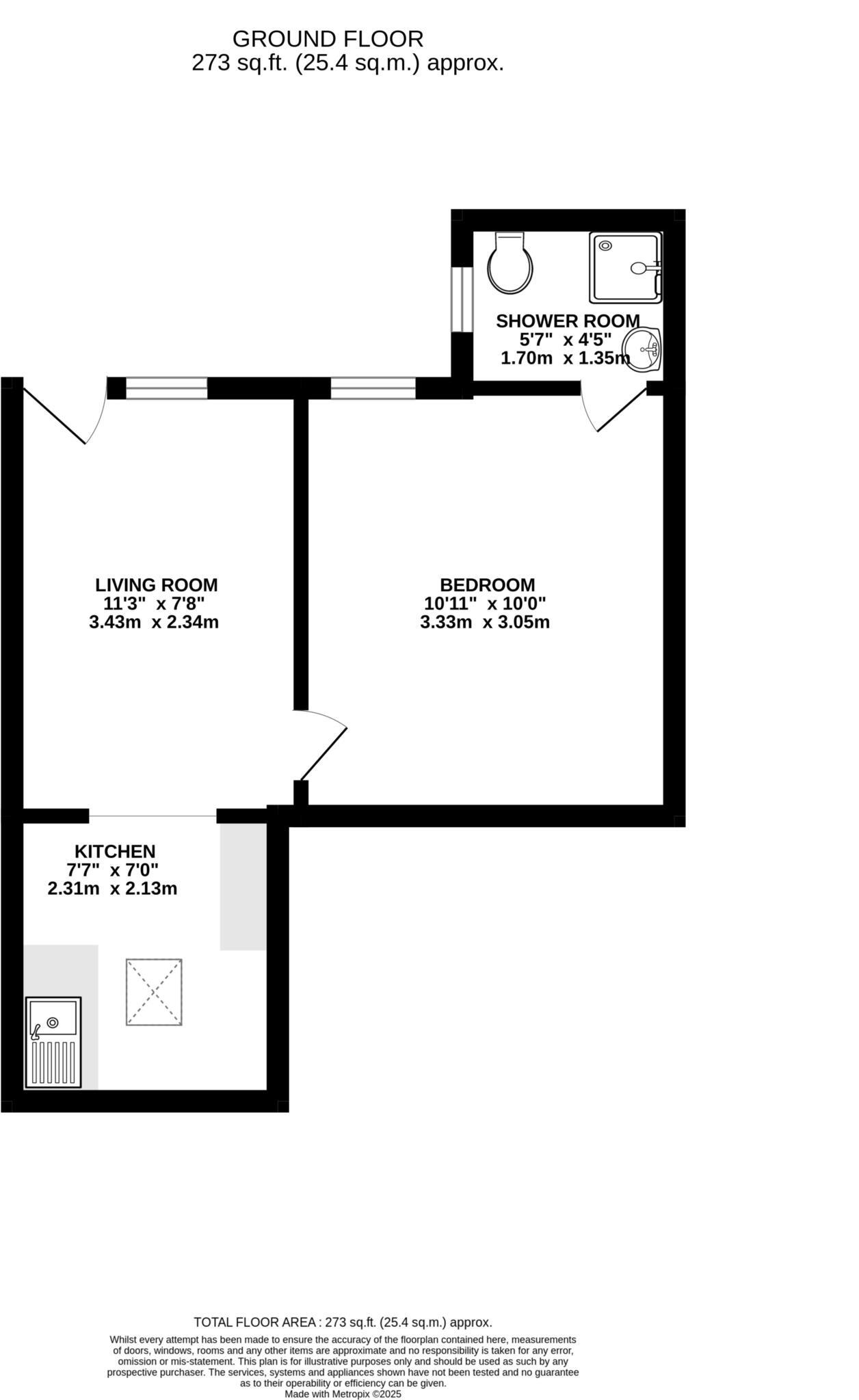
Ideal first time buy or investment. Ground Floor Flat with Private Access and Courtyard. Accommodation Briefly Comprises Sitting Room, Kitchen, Bedroom, Shower Room. New Lease. No Chain.
Property Oracle says ..
The property is a one-bedroom flat located on Victoria Road in Exmouth, East Devon. The location is convenient, being close to Exmouth town centre and the seafront, offering easy access to amenities and transport links. The nearby Great Western Railway station provides access to other areas. Several primary and secondary schools are within a reasonable distance, though the quality of these schools varies according to Ofsted ratings.
Based on the provided photos, the property appears to be in reasonable condition. The interior is clean and has recently been decorated. The flooring and kitchen seem relatively new. However, the small, paved rear garden appears somewhat neglected and could benefit from some landscaping. There is a small outbuilding in the rear garden.
The property has a small plot size of 273 sqft. While it does include a small outdoor space, it is more of a paved area than a garden.
The list price of £110,000 seems reasonable given the size and condition of the property, and its location. However, more detailed information on comparable properties in the area would be needed to make a definitive assessment. The average price per sqft is not available for this property, so a precise price comparison is not possible. Nearby properties on Victoria Road have significantly higher prices, but these properties are larger or offer more features. The lack of information regarding comparable properties makes it difficult to definitively assess the price.
Therefore, we give this property 6 / 10. *Disclaimer: This is our option and does constitute a recommendation or financial advice. Do your own research. *
- Price
- 6
- Condition
- 7
- Location
- 8
- Land
- 3
- Bedrooms
- 1
- Bathrooms
- 1
- Sqft (est)
- 257.81
- Lot (est)
- 273.00
The heatmap indicates the level of crime in the area. The color of the heatmap indicates the crime severity and recency.
Metrics Year-on-Year
- Average area value
- 353,125.00 £Increased by 13.69 %
- Est sale value
- 110,600.49 £Increased by 22.92 %
- Average area rental value
- 1,100.00 £/moDecreased by 4.18 %
- Est letting value
- 257.81 £/moUnchanged by 0.00 %
- Est rental Yield
- 3.74 %Decreased by 15.77 %
- Crime Rate
- 52.00 %Unchanged by 0.00 %
Agent Activity
Meadows Estate Agents marked this listing as sold.
Meadows Estate Agents created the listing.
Nearby Schools
| Name | Type | Ofsted | Distance |
|---|---|---|---|
| The Beacon Church Of England (Va) Primary School | Voluntary Aided School | Good | 0.54 KM |
| Exeter Road Community Primary School | Foundation School | Good | 0.79 KM |
| Exeter Royal Academy For Deaf Education | Non-maintained Special School | Requires improvement | 1.33 KM |
| St Joseph'S Catholic Primary School, Exmouth | Academy Converter | Good | 1.52 KM |
| Exmouth Community College | Academy Converter | Requires improvement | 1.57 KM |
Images
Nearby Streets
| Name | Average Price | Average Sqft | Distance |
|---|---|---|---|
| Beacon Hill | £ 0 | 0 | 0.00 KM |
| South Street | £ 0 | 0 | 0.00 KM |
| Southern Road | £ 425,000 | 0 | 0.00 KM |
| Albion Terrace | £ 200,000 | 0 | 0.00 KM |
| Admirals Court | £ 119,488 | 0 | 0.00 KM |
Nearby Transport
| Name | NLC | TLC | Distance |
|---|---|---|---|
| Exmouth | 5756 | EXM | 0.43 KM |
| Starcross | 3413 | SCS | 3.46 KM |
| Lympstone Village | 5761 | LYM | 3.59 KM |
| Dawlish Warren | 3409 | DWW | 3.63 KM |
| Lympstone Commando | 5762 | LYC | 5.46 KM |
Nearby Listings
| Address | Price | Type | Score | Distance |
|---|---|---|---|---|
| Victoria Road, Exmouth | £ 110,000 | BUY | 6 / 10 | 0.00 KM |
| Victoria Road, Exmouth, EX8 1DW | £ 460,000 | BUY | 6 / 10 | 0.00 KM |
| Victoria Road, Exmouth | £ 235,000 | BUY | 6 / 10 | 0.00 KM |
| Victoria Road, EXMOUTH, Devon, EX8 | £ 300,000 | BUY | 6 / 10 | 0.00 KM |
| Victoria Road, Exmouth | £ 199,950 | BUY | 5 / 10 | 0.00 KM |
Nearby Properties
| Address | Price | Distance |
|---|---|---|
| 35 Victoria Road | £ 303,000 | 0.01 KM |
| 17 Victoria Road | £ 220,000 | 0.01 KM |
| 48 Victoria Road | £ 225,000 | 0.01 KM |
| 52 Victoria Road | £ 375,000 | 0.01 KM |
| 47 Victoria Road | £ 275,000 | 0.01 KM |