Parkend Road, Yorkley
By Dean Estate Agents - With Ardens
£ 105,000
Reviews
2 out of 5 stars
Dean Estate Agents - With Ardens says ..
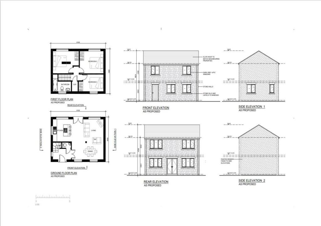
Address - Building Plot adjacent to Woodview, Parkend Road, Yorkley In accordance with their powers under the above Act and Regulations, the Council as a Local Planning Authority grant FULL PERMISSION to the development described below in accordance with the submitted application and its...
Property Oracle says ..
This listing is for a building plot situated on Parkend Road, Yorkley, in the Forest of Dean, Gloucestershire. The plot is adjacent to Woodview, suggesting integration into an existing residential area. While the exact dimensions aren’t explicitly given, the accompanying site plans show a reasonably sized plot suitable for a new build property. The nearest primary school, Yorkley Primary School, has a ‘Good’ Ofsted rating, and Lydney Train Station is within a reasonable travelling distance. The Forest of Dean provides a scenic and semi-rural setting. However, potential buyers should consider the costs associated with construction and factor this into the overall purchase decision. The lack of existing structure means there is no current property to assess. The location offers peace and quiet with access to local amenities, but the lack of detailed plot size information and surrounding property sale prices could make valuation tricky. More details on the permitted building plans, specifications, and planning permissions would be beneficial for a thorough assessment of value and feasibility.
Therefore, we give this property 5 / 10. *Disclaimer: This is our option and does constitute a recommendation or financial advice. Do your own research. *
- Price
- 7
- Condition
- 1
- Location
- 6
- Land
- 7
- Bedrooms
- 0
- Bathrooms
- 0
The heatmap indicates the level of crime in the area. The color of the heatmap indicates the crime severity and recency.
Metrics Year-on-Year
- Average area value
- 268,125.00 £Increased by 15.58 %
- Average area rental value
- 1,044.00 £/moIncreased by 5.56 %
- Est rental Yield
- 4.67 %Decreased by 8.79 %
- Crime Rate
- 23.00 %Unchanged by 0.00 %
Agent Activity
Dean Estate Agents - With Ardens marked this listing as sold.
Dean Estate Agents - With Ardens created the listing.
Nearby Schools
| Name | Type | Ofsted | Distance |
|---|---|---|---|
| Yorkley Primary School | Community School | Good | 0.39 KM |
| Pillowell Community Primary School | Community School | Good | 1.90 KM |
| Parkend Primary School | Community School | Requires improvement | 2.36 KM |
| Primrose Hill Church Of England Primary Academy | Academy Sponsor Led | Good | 2.96 KM |
| Lydney Church Of England Community School | Academy Converter | 4.05 KM |
Images
Nearby Streets
| Name | Average Price | Average Sqft | Distance |
|---|---|---|---|
| Beech Road | £ 472,498 | 0 | 0.00 KM |
| Morris Close | £ 187,475 | 0 | 0.00 KM |
| Crown Lane | £ 0 | 0 | 0.00 KM |
| Ridge Way | £ 247,500 | 0 | 0.00 KM |
| Harold Road | £ 0 | 0 | 0.00 KM |
Nearby Transport
| Name | NLC | TLC | Distance |
|---|---|---|---|
| Lydney | 4826 | LYD | 5.45 KM |
Nearby Listings
| Address | Price | Type | Score | Distance |
|---|---|---|---|---|
| Parkend Road, Yorkley | £ 105,000 | BUY | 5 / 10 | 0.00 KM |
| Parkend Road, Yorkley, Lydney, Gloucestershire. GL15 4TF | £ 365,000 | BUY | 6 / 10 | 0.04 KM |
| Highview Road, Lydney | £ 475,000 | BUY | 7 / 10 | 0.11 KM |
| Beech Road, Yorkley, Lydney | £ 400,000 | BUY | 7 / 10 | 0.16 KM |
| Highview Road, Yorkley | £ 385,000 | BUY | 6 / 10 | 0.16 KM |
Nearby Properties
| Address | Price | Distance |
|---|---|---|
| Pear Tree Cottage | £ 277,500 | 0.02 KM |
| Woodview | £ 219,200 | 0.02 KM |
| The Oaklands | £ 376,500 | 0.10 KM |
| The Old Manse | £ 180,000 | 0.12 KM |
| Woodleigh | £ 91,000 | 0.12 KM |