PR
Oldfield Road, Maidenhead, Berkshire, SL6
By Prospect Estate Agency
£ 400,000
Reviews
3 out of 5 stars
Prospect Estate Agency says ..
Welcome to Exclusive House, nestled in the heart of Oldfield Road, Maidenhead. This exceptional residence offers a harmonious blend of modern comfort and timeless elegance. As you step into this thoughtfully designed apartment, you'll be greeted by a spacious and inviting living space,...
Property Oracle says ..
Therefore, we give this property 6 / 10. *Disclaimer: This is our option and does constitute a recommendation or financial advice. Do your own research. *
- Price
- 8
- Condition
- 9
- Location
- 7
- Land
- 3
- Bedrooms
- 2
- Bathrooms
- 2
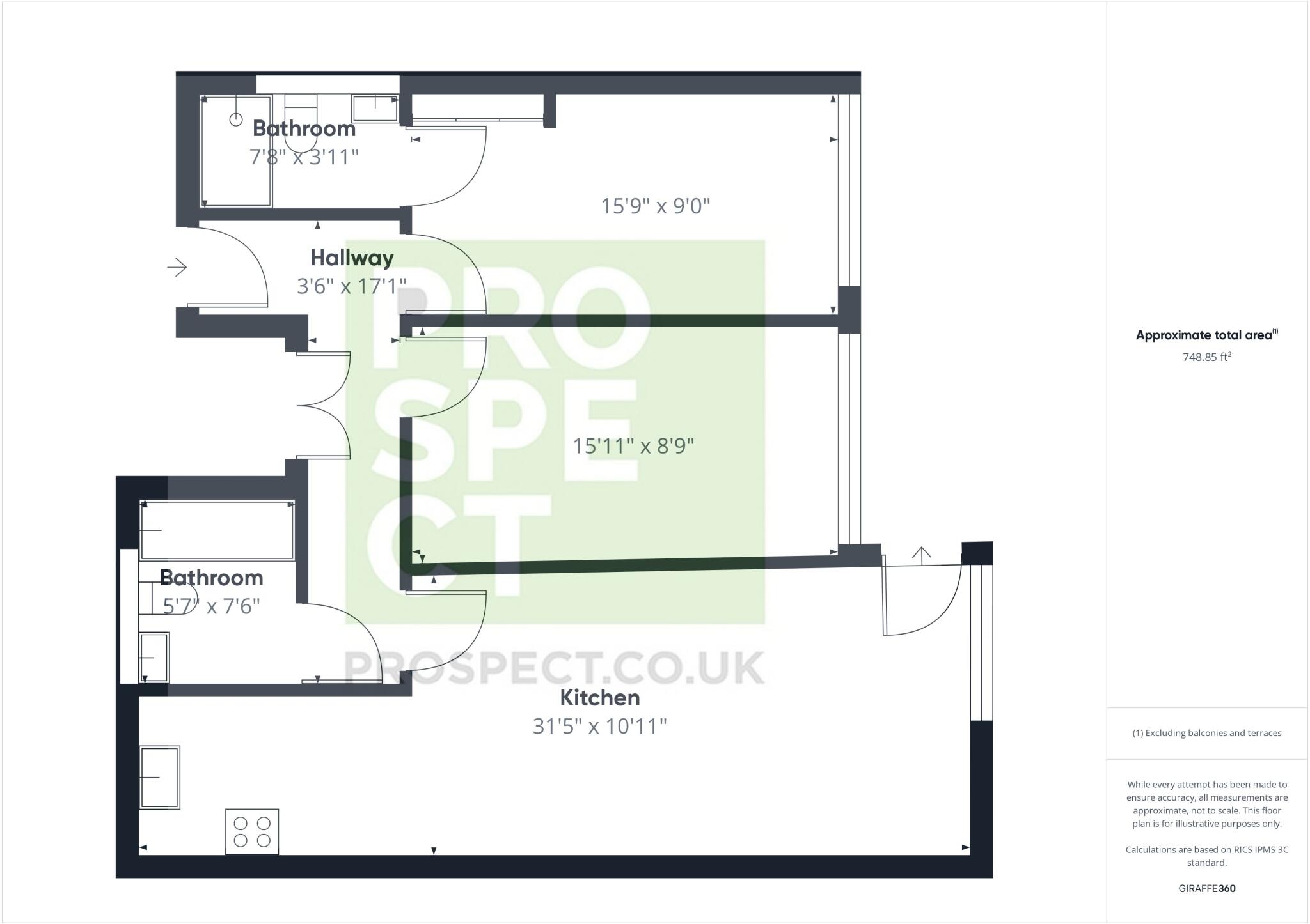
- Sqft (est)
- 748.85
The heatmap indicates the level of crime in the area. The color of the heatmap indicates the crime severity and recency.
Metrics Year-on-Year
- Average area value
- 524,714.00 £Increased by 15.54 %
- Est sale value
- 462,040.45 £Increased by 48.67 %
- Average area rental value
- 1,989.00 £/moIncreased by 4.74 %
- Est letting value
- 1,497.70 £/moIncreased by 100.00 %
- Est rental Yield
- 4.55 %Decreased by 9.36 %
- Crime Rate
- 12.00 %Unchanged by 0.00 %
from 454,148.00 £
from 310,772.75 £
from 1,899.00 £/mo
from 748.85 £/mo
from 5.02 %
from 12.00 %
Agent Activity
Prospect Estate Agency created the listing.
Nearby Schools
| Name | Type | Ofsted | Distance |
|---|---|---|---|
| Rbwm Alternative Learning Provision | Pupil Referral Unit | Good | 0.38 KM |
| Forest Bridge School | Free Schools Special | Good | 0.74 KM |
| Oldfield Primary School | Community School | Outstanding | 0.88 KM |
| St Luke'S Cofe Primary School | Academy Converter | Outstanding | 1.49 KM |
| Riverside Children'S Centre (Formerly Ellington) | Children's Centre | 1.61 KM |
Images
Nearby Streets
| Name | Average Price | Average Sqft | Distance |
|---|---|---|---|
| Bridge Road | £ 0 | 0 | 0.00 KM |
| Chauntry Road | £ 0 | 0 | 0.00 KM |
| Guards Club Bridge | £ 0 | 0 | 0.00 KM |
| Stafferton Link | £ 0 | 0 | 0.00 KM |
| Bath Road | £ 0 | 0 | 0.00 KM |
Nearby Transport
| Name | NLC | TLC | Distance |
|---|---|---|---|
| Maidenhead | 3147 | MAI | 1.72 KM |
| Furze Platt | 3144 | FZP | 2.53 KM |
| Taplow | 3151 | TAP | 2.93 KM |
| Cookham | 3019 | COO | 4.12 KM |
| Bourne End | 3018 | BNE | 6.00 KM |
Nearby Listings
| Address | Price | Type | Score | Distance |
|---|---|---|---|---|
| Oldfield Road, Maidenhead, Berkshire, SL6 | £ 400,000 | BUY | 6 / 10 | 0.00 KM |
| Oldfield Road, Maidenhead, Berkshire, SL6 | £ 400,000 | BUY | 6 / 10 | 0.00 KM |
| Oldfield Road, Maidenhead | £ 308,650 | BUY | 6 / 10 | 0.01 KM |
| Oldfield Road, Maidenhead | £ 425,000 | BUY | 6 / 10 | 0.01 KM |
| Oldfield Road, Maidenhead, Berkshire, SL6 | £ 300,000 | BUY | 5 / 10 | 0.02 KM |
Nearby Properties
| Address | Price | Distance |
|---|---|---|
| 4 Sadlers Mews | £ 482,000 | 0.04 KM |
| 5 Sadlers Mews | £ 452,000 | 0.04 KM |
| 3 Sadlers Mews | £ 325,000 | 0.04 KM |
| 7 Sadlers Mews | £ 440,000 | 0.04 KM |
| 9 Lantern Walk | £ 327,500 | 0.09 KM |