St. Faiths Road, Old Catton
Gilson Bailey logo

St. Faiths Road, Old Catton

By Gilson Bailey

£ 480,000

Reviews

3 out of 5 stars

Gilson Bailey says ..

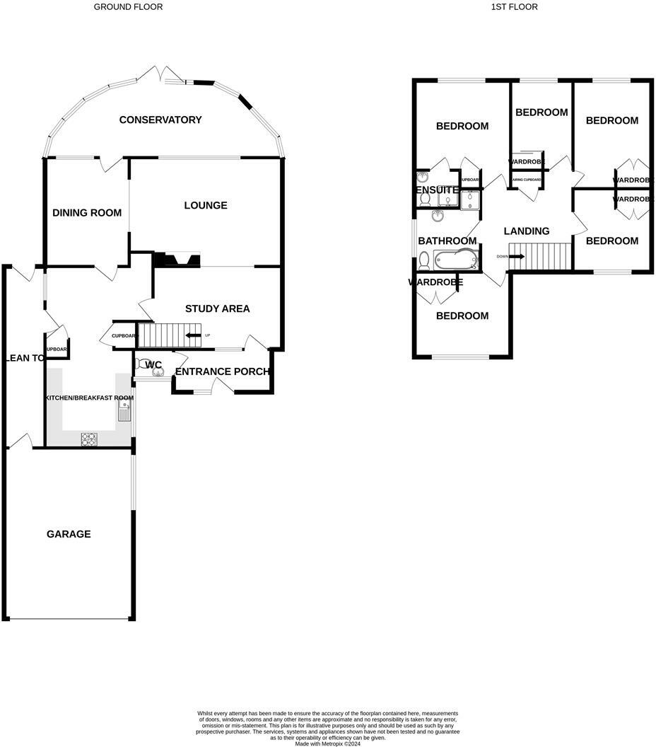
**GUIDE PRICE £480,000 - £500,000 ** SPACIOUS FAMILY HOME SET BACK ON A LARGE PLOT IN OLD CATTON** Gilson Bailey are delighted to offer this LARGE, EXTENDED, FIVE BEDROOM, DETACHED HOUSE situated on a requested road in the highly sought after suburb of Old Catton. Accommodation comprising entranc...

Property Oracle says ..

This five-bedroom, three-bathroom detached house located on St. Faiths Road in Old Catton, Norwich is marketed as a spacious family home. The property features a good-sized kitchen, multiple reception rooms, a conservatory and what appears to be off-street parking and a garage. Several good primary schools are within walking distance, making it an attractive option for families. The property is on a sought-after road in Old Catton. Although visually appealing, the property would likely benefit from cosmetic upgrades in certain areas. The garden is of reasonable size with potential for improvement and outdoor activities. The asking price reflects the market value in Old Catton but lacks precise confirmation through comparative price per square foot data due to missing information about the plots in this area and similar listings in the area. Further investigation into local amenities, shops, and the precise plot size would be recommended before making an offer. A homebuyer survey would also be crucial in determining the condition and potential repair costs.

Therefore, we give this property 6 / 10. *Disclaimer: This is our option and does constitute a recommendation or financial advice. Do your own research. *

Price
7
Condition
6
Location
7
Land
4
Bedrooms
5
Bathrooms
3
Sqft (est)
1,804.03

The heatmap indicates the level of crime in the area. The color of the heatmap indicates the crime severity and recency.

Metrics Year-on-Year

Average area value
312,045.00 £
Increased by 0.53 %
from 310,392.00 £
Est sale value
876,758.58 £
Increased by 78.02 %
from 492,500.19 £
Average area rental value
1,325.00 £/mo
Decreased by 1.05 %
from 1,339.00 £/mo
Est letting value
3,608.06 £/mo
Increased by 100.00 %
from 1,804.03 £/mo
Est rental Yield
5.10 %
Decreased by 1.54 %
from 5.18 %
Crime Rate
0.00 %
from 0.00 %

Agent Activity

  • Gilson Bailey created the listing.

Nearby Schools

NameTypeOfstedDistance
Garrick Green Infant SchoolAcademy ConverterGood0.26 KM
Hall SchoolFoundation Special SchoolGood0.40 KM
Old Catton Cofe Vc Junior SchoolVoluntary Controlled SchoolGood0.75 KM
Lodge Lane Infant SchoolAcademy ConverterGood0.89 KM
Include School NorfolkOther Independent SchoolRequires improvement0.97 KM

Images

219bStFaithshttps://login2.vebraalto.com/#Road-40. 219bStFaithsRoad-6.jpg 219bStFaithsRoad-15.jpg 219bStFaithsRoad-1.jpg 219bStFaithsRoad-3.jpg 219bStFaithsRoad-50.jpg 219bStFaithsRoad-28.jpg 219bStFaithsRoad-22.jpg 219bStFaithsRoad-30.jpg 219bStFaithsRoad-35.jpg 219bStFaithsRoad-54.jpg 219bStFaithsRoad-41.jpg 219bStFaithsRoad-11.jpg 219bStFaithsRoad-7.jpg 219bStFaithsRoad-18.jpg 219bStFaithsRoad-2.jpg 219bStFaithsRoad-9.jpg 219bStFaithsRoad-26.jpg 219bStFaithsRoad-38.jpg 219bStFaithsRoad-17.jpg 219bStFaithsRoad-24.jpg 219bStFaithsRoad-10.jpg 219bStFaithsRoad-31.jpg 219bStFaithsRoad-14.jpg 219bStFaithsRoad-21.jpg 219bStFaithsRoad-36.jpg 219bStFaithsRoad-25.jpg 219bStFaithsRoad-19.jpg 219bStFaithsRoad-57.jpg 219bStFaithsRoad-20.jpg 219bStFaithsRoad-27.jpg 219bStFaithsRoad-4.jpg 219bStFaithsRoad-37.jpg 219bStFaithsRoad-42.jpg 219bStFaithsRoad-43.jpg 219bStFaithsRoad-47.jpg 219bStFaithsRoad-51.jpg 219bStFaithsRoad-55.jpg 219bStFaithsRoad-58.jpg 219bStFaithsRoad-52.jpg 219bStFaithsRoad-48.jpg 219bStFaithsRoad-39.jpg 219bStFaithsRoad-44.jpg 219bStFaithsRoad-45.jpg 219bStFaithsRoad-49.jpg 219bStFaithsRoad-33.jpg 219bStFaithsRoad-8.jpg

Nearby Streets

NameAverage PriceAverage SqftDistance
Chase Close £ 000.00 KM
Lancaster Close £ 400,00000.00 KM
Burrows Close £ 000.00 KM
Coller Road £ 000.00 KM
Juby Court £ 113,75000.00 KM

Nearby Transport

NameNLCTLCDistance
Norwich7309NRW4.22 KM

Nearby Listings

AddressPriceTypeScoreDistance
St. Faiths Road, Norwich £ 190,000BUY7 / 100.10 KM
Garrick Green, Norwich £ 300,000BUY6 / 100.11 KM
St. Faiths Road, Old Catton, Norwich £ 190,000BUYUnknown0.11 KM
Garrick Green, Old Catton, Norfolk, NR6 £ 375,000BUY7 / 100.18 KM
Catton Court, Old Catton £ 190,000BUY7 / 100.20 KM

Nearby Properties

AddressPriceDistance
224 St Faiths Road £ 430,0000.05 KM
228 St Faiths Road £ 240,0000.05 KM
245 St Faiths Road £ 270,0000.10 KM
221 St Faiths Road £ 287,0000.10 KM
253 St Faiths Road £ 230,0000.10 KM