Langford Russell says ..
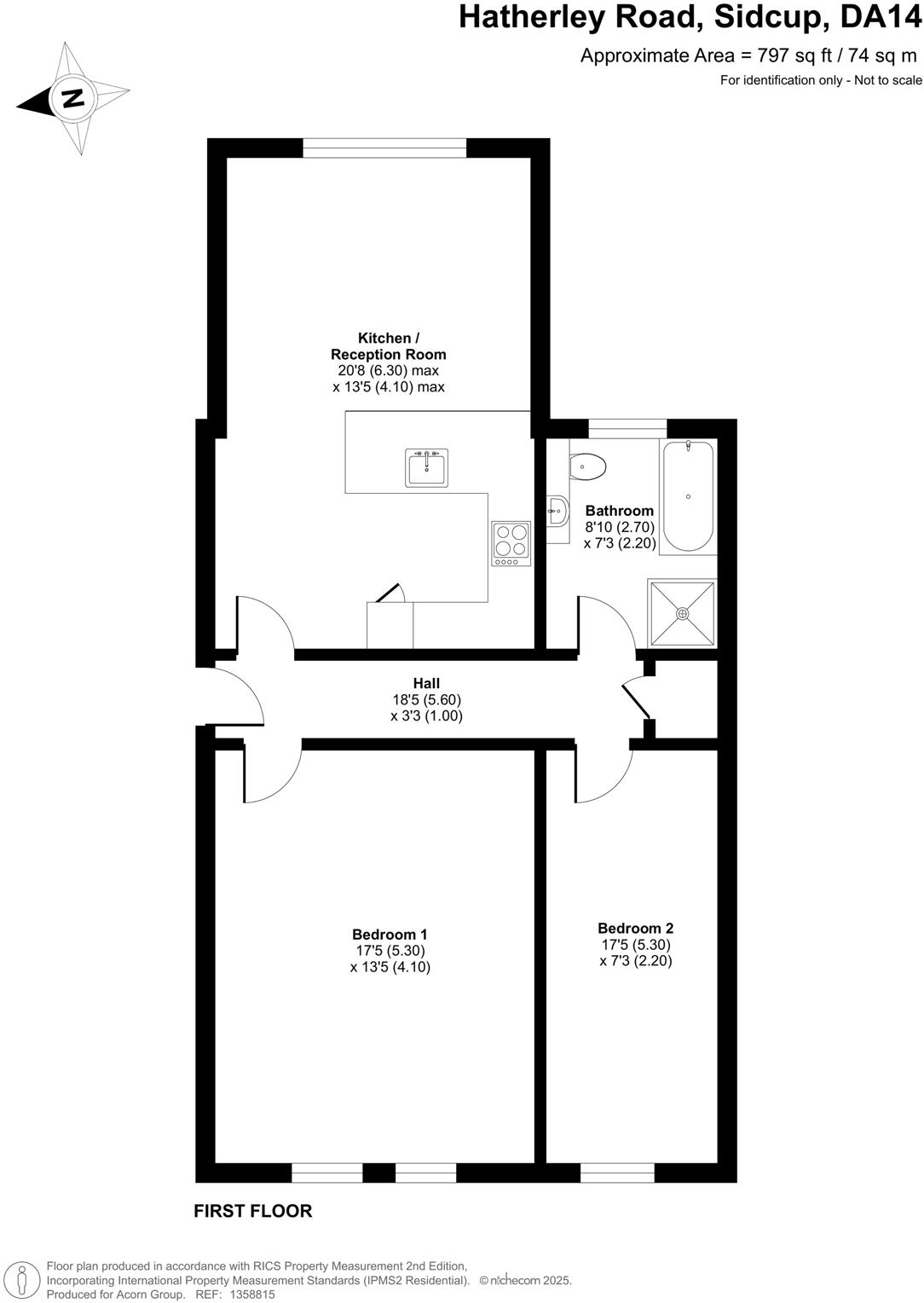
Guide Price: £425,000 - £435,000 Langford Russell are delighted to present to the DA14 market this exceptional two-bedroom period conversion, ideally positioned on the sought-after Hatherley Road. Measuring approximately 797 sq. ft., this unique home perfectly bl...
Property Oracle says ..
This is a well-presented two-bedroom apartment in Sidcup, Greater London. The property benefits from a modern interior, a garden, and proximity to local amenities and transport links. The apartment is in good condition and appears to be ready to move in. The price seems reasonable compared to other properties in the area. The property is located close to local schools and Sidcup station.
Therefore, we give this property 7 / 10. *Disclaimer: This is our option and does constitute a recommendation or financial advice. Do your own research. *
- Price
- 7
- Condition
- 8
- Location
- 7
- Land
- 6
- Bedrooms
- 2
- Bathrooms
- 1
- Sqft (est)
- 764.03
The heatmap indicates the level of crime in the area. The color of the heatmap indicates the crime severity and recency.
Metrics Year-on-Year
- Average area value
- 456,667.00 £Decreased by 3.43 %
- Est sale value
- 642,549.23 £Increased by 89.41 %
- Average area rental value
- 2,099.00 £/moIncreased by 30.13 %
- Est letting value
- 2,292.09 £/moIncreased by 200.00 %
- Est rental Yield
- 5.52 %Increased by 34.96 %
- Crime Rate
- 9.00 %Unchanged by 0.00 %
Agent Activity
Langford Russell created the listing.
Nearby Schools
| Name | Type | Ofsted | Distance |
|---|---|---|---|
| West Lodge School | Other Independent School | 0.23 KM | |
| Benedict House Preparatory School | Other Independent School | Good | 0.48 KM |
| Birkbeck Primary School | Community School | Good | 0.52 KM |
| The Oval | Children's Centre Linked Site | 1.00 KM | |
| Chislehurst And Sidcup Grammar School | Academy Converter | Good | 1.00 KM |
Images
Nearby Streets
| Name | Average Price | Average Sqft | Distance |
|---|---|---|---|
| Aston Close | £ 0 | 0 | 0.00 KM |
| Sandhurst Road | £ 0 | 0 | 0.00 KM |
| Victoria Road | £ 0 | 0 | 0.00 KM |
| Grange Close | £ 320,000 | 0 | 0.00 KM |
| Minshaw Court | £ 0 | 0 | 0.00 KM |
Nearby Transport
| Name | NLC | TLC | Distance |
|---|---|---|---|
| Sidcup | 5125 | SID | 0.67 KM |
| Albany Park | 5132 | AYP | 2.60 KM |
| St Mary Cray | 5073 | SMY | 3.70 KM |
| New Eltham | 5119 | NEH | 3.82 KM |
| Welling | 5128 | WLI | 4.12 KM |
Nearby Listings
| Address | Price | Type | Score | Distance |
|---|---|---|---|---|
| Hatherley Road, Sidcup | £ 425,000 | BUY | 7 / 10 | 0.00 KM |
| Crombie House, Hatherley Road, Sidcup | £ 400,000 | BUY | 7 / 10 | 0.01 KM |
| Hatherley Road, Sidcup | £ 425,000 | BUY | Unknown | 0.01 KM |
| Granville Road, Sidcup | £ 310,000 | BUY | 5 / 10 | 0.04 KM |
| Granville Road, Sidcup, DA14 4BW | £ 325,000 | BUY | 7 / 10 | 0.04 KM |
Nearby Properties
| Address | Price | Distance |
|---|---|---|
| 9 Granville Road | £ 170,000 | 0.04 KM |
| 19 Granville Road | £ 283,500 | 0.04 KM |
| 1 Granville Road | £ 280,000 | 0.04 KM |
| 11 Granville Road | £ 277,000 | 0.04 KM |
| 5 Granville Road | £ 150,000 | 0.04 KM |