Lytchett Matravers, Poole, Dorset
DO

Lytchett Matravers, Poole, Dorset

By DOMVS

£ 675,000

Reviews

3 out of 5 stars

DOMVS says ..

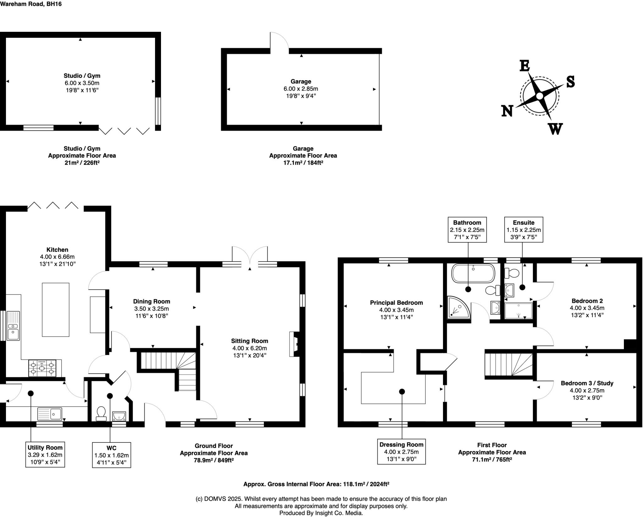
A beautifully modernised detached thatched home, quietly tucked away in a sought-after village setting. Stylish interiors include a contemporary kitchen with tri-fold doors, spacious living areas with an integrated wood burner, three double bedrooms, and a superb studio outbuilding.

Property Oracle says ..

This is a well-presented detached property in the desirable village of Lytchett Matravers. The property has been modernised and is in good condition. It benefits from a good-sized garden and off-street parking. The property is located close to local schools and amenities, with good transport links. The asking price is above the average for the area, but this is reflected in the size and condition of the property.

Therefore, we give this property 7 / 10. *Disclaimer: This is our option and does constitute a recommendation or financial advice. Do your own research. *

Price
6
Condition
8
Location
7
Land
7
Bedrooms
3
Bathrooms
2
Sqft (est)
1,271.22

The heatmap indicates the level of crime in the area. The color of the heatmap indicates the crime severity and recency.

Metrics Year-on-Year

Average area value
459,995.00 £
Decreased by 6.59 %
from 492,472.00 £
Est sale value
603,829.50 £
Increased by 7.22 %
from 563,150.46 £
Average area rental value
1,411.00 £/mo
Decreased by 8.08 %
from 1,535.00 £/mo
Est letting value
1,271.22 £/mo
Unchanged by 0.00 %
from 1,271.22 £/mo
Est rental Yield
3.68 %
Decreased by 1.60 %
from 3.74 %
Crime Rate
76.00 %
Unchanged by 0.00 %
from 76.00 %

Agent Activity

  • DOMVS created the listing.

Nearby Schools

NameTypeOfstedDistance
Lytchett Matravers Primary SchoolAcademy Converter0.43 KM
Graduately-Developing-FuturesOther Independent Special School1.53 KM
Lytchett Minster SchoolFoundation SchoolGood2.76 KM
Sturminster Marshall First SchoolCommunity SchoolOutstanding4.48 KM
Upton Junior SchoolAcademy Converter4.99 KM

Images

Picture No. 06 Picture No. 02 Picture No. 04 Picture No. 23 Picture No. 24 Picture No. 03 Picture No. 07 Picture No. 10 Picture No. 11 Picture No. 17 Picture No. 16 Picture No. 14 Picture No. 18 Picture No. 20 Picture No. 21 Picture No. 08 Picture No. 09 Picture No. 22 Picture No. 12 Picture No. 19 Picture No. 13

Nearby Streets

NameAverage PriceAverage SqftDistance
Hyde Cottages £ 300,00000.00 KM
Prospect Road £ 000.00 KM
Fairview £ 750,00000.00 KM
Bartom's Lane £ 650,00000.00 KM
Halls Road £ 965,00000.00 KM

Nearby Transport

NameNLCTLCDistance
Holton Heath5941HOL4.99 KM
Hamworthy5940HAM7.39 KM
Wareham (Dorset)5959WRM8.14 KM

Nearby Listings

AddressPriceTypeScoreDistance
Lytchett Matravers, Poole, Dorset £ 675,000BUY7 / 100.00 KM
Hannams Close, Lytchett Matravers, Poole, BH16 £ 320,000BUY7 / 100.08 KM
Prospect Road, Lytchett Matravers, Poole, BH16 £ 465,000BUY7 / 100.09 KM
Wareham Road, Lytchett Matravers £ 315,000BUY6 / 100.10 KM
Prospect Road, Lytchett Matravers £ 315,000BUY5 / 100.13 KM

Nearby Properties

AddressPriceDistance
121 Wareham Road £ 285,0000.01 KM
133 Wareham Road £ 550,0000.01 KM
18 Prospect Road £ 340,0000.09 KM
20 Prospect Road £ 253,2500.09 KM
7 Hannams Close £ 223,0000.10 KM