George Street, New Tredegar, NP24
By Bettermove
£ 100,000
Reviews
3 out of 5 stars
Bettermove says ..
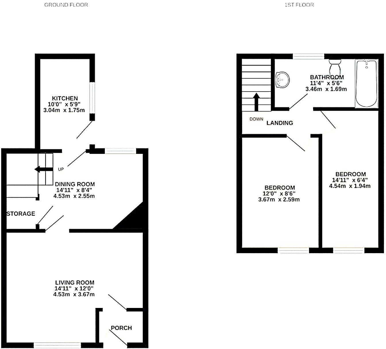
A SPACIOUS TWO BED TERRACD HOUSE in New Tredegar, available VACANT for IMMEDIATE possession and CHAIN FREE. Call to enquire!Bettermove are proud to present this 2 bedroom terraced house in New Tredegar, available with no forward chain. This property benefits from double glaz...
Property Oracle says ..
This is a two-bedroom terraced house located on George Street, New Tredegar. The property appears to be in generally good condition, with a modernised interior and a low-maintenance garden. It’s situated close to local amenities, including schools and a train station. The house is competitively priced compared to other properties in the area, making it an attractive option for first-time buyers or investors. While the town itself is relatively small, the convenient transport links provide easy access to larger urban centres.
Therefore, we give this property 6 / 10. *Disclaimer: This is our option and does constitute a recommendation or financial advice. Do your own research. *
- Price
- 7
- Condition
- 7
- Location
- 6
- Land
- 6
- Bedrooms
- 2
- Bathrooms
- 1
- Sqft (est)
- 628.59
The heatmap indicates the level of crime in the area. The color of the heatmap indicates the crime severity and recency.
Metrics Year-on-Year
- Average area value
- 134,626.00 £Decreased by 4.16 %
- Est sale value
- 16,971.93 £Decreased by 59.70 %
- Average area rental value
- 794.00 £/moIncreased by 4.06 %
- Est letting value
- 0.00 £/mo
- Est rental Yield
- 7.08 %Increased by 8.59 %
- Crime Rate
- 67.00 %Unchanged by 0.00 %
Agent Activity
Bettermove created the listing.
Nearby Schools
| Name | Type | Ofsted | Distance |
|---|---|---|---|
| Phillipstown Primary School | Welsh Establishment | 0.44 KM | |
| Whiterose Primary | Welsh Establishment | 0.83 KM | |
| Deri Primary School | Welsh Establishment | 2.94 KM | |
| St Gwladys Bargoed School | Welsh Establishment | 3.48 KM | |
| Heolddu Comprehensive School | Welsh Establishment | 3.67 KM |
Images
Nearby Streets
| Name | Average Price | Average Sqft | Distance |
|---|---|---|---|
| Morgan Street | £ 0 | 0 | 0.00 KM |
| Dafolog Terrace | £ 100,000 | 0 | 0.00 KM |
| Graig Rhymni | £ 130,000 | 0 | 0.00 KM |
| A469 | £ 118,000 | 0 | 0.00 KM |
Nearby Transport
| Name | NLC | TLC | Distance |
|---|---|---|---|
| Tir-Phil | 4025 | TIR | 0.36 KM |
| Brithdir | 4012 | BHD | 2.01 KM |
| Bargoed | 4011 | BGD | 3.54 KM |
| Gilfach Fargoed | 4022 | GFF | 4.50 KM |
| Pontlottyn | 4023 | PLT | 4.86 KM |
Nearby Listings
| Address | Price | Type | Score | Distance |
|---|---|---|---|---|
| George Street, New Tredegar, NP24 | £ 100,000 | BUY | 6 / 10 | 0.00 KM |
| 59 Morgan Street, New Tredegar | £ 80,000 | BUY | 5 / 10 | 0.04 KM |
| Commercial Street, New Tredegar | £ 90,000 | BUY | 5 / 10 | 0.04 KM |
| George Street, New Tredegar, NP24 | £ 129,995 | BUY | 5 / 10 | 0.06 KM |
| George Street, New Tredegar, NP24 | £ 95,000 | BUY | 7 / 10 | 0.06 KM |
Nearby Properties
| Address | Price | Distance |
|---|---|---|
| 23a George Street | £ 65,000 | 0.01 KM |
| 39 George Street | £ 35,000 | 0.01 KM |
| 24a George Street | £ 58,000 | 0.01 KM |
| 27 George Street | £ 44,000 | 0.01 KM |
| 22 George Street | £ 74,950 | 0.01 KM |