Manor Road, St. Helen Auckland, Bishop Auckland, DL14
By J W Wood
£ 87,000
Reviews
2 out of 5 stars
J W Wood says ..
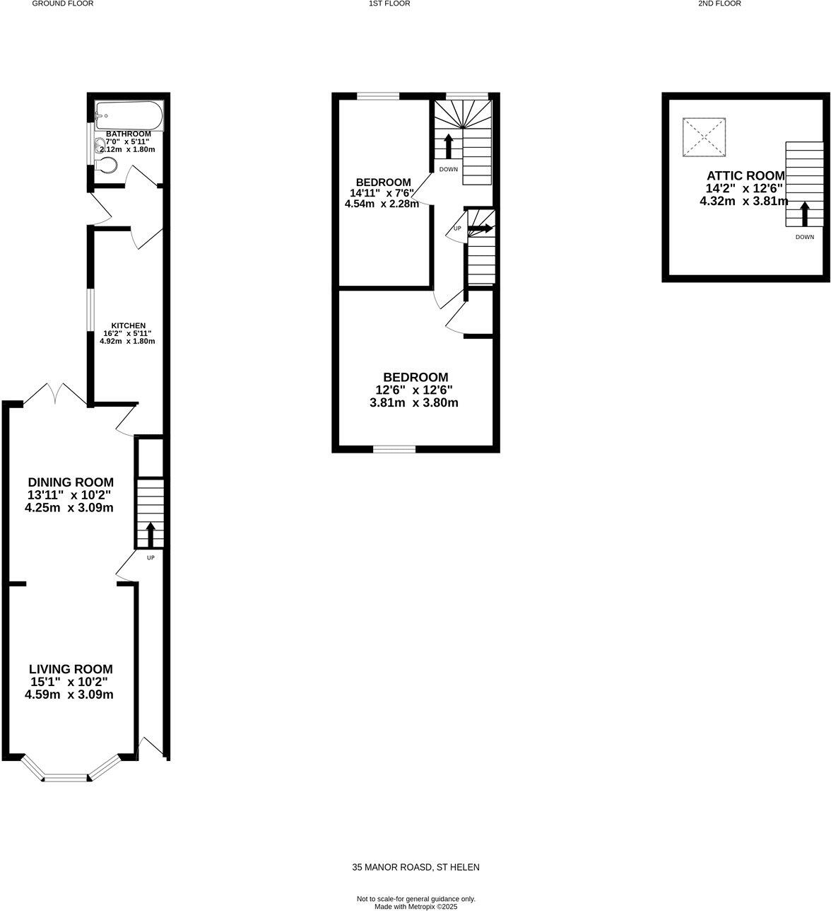
This mid terraced house is available with no onward chain. It has been well maintained and is a great example of its type suggesting it would make a great first time buy or investment. The accommodation comprises of an entrance hallway with the stairs rising to the first floor, an open...
Property Oracle says ..
This property is a 2 bedroom terraced house located on Manor Road in St. Helen Auckland, Bishop Auckland. The property benefits from being close to St Helen Auckland Community Primary School (0.07km) which has a good Ofsted rating. Transport links are also relatively close by with Bishop Auckland train station approximately 4.4km away. The property itself appears to be in reasonable condition, although some modernisation may be desired. The property has a small yard. While the list price is below the average price for the area, it is important to note that the average price per sqft is significantly higher than that of this property. This suggests the property may be priced competitively, but further investigation into comparable properties is recommended.
Therefore, we give this property 5 / 10. *Disclaimer: This is our option and does constitute a recommendation or financial advice. Do your own research. *
- Price
- 6
- Condition
- 6
- Location
- 7
- Land
- 3
- Bedrooms
- 2
- Bathrooms
- 1
- Sqft (est)
- 884.00
The heatmap indicates the level of crime in the area. The color of the heatmap indicates the crime severity and recency.
Metrics Year-on-Year
- Average area value
- 193,317.00 £Increased by 12.20 %
- Est sale value
- 119,340.00 £Increased by 8.87 %
- Average area rental value
- 475.00 £/moDecreased by 27.37 %
- Est letting value
- 0.00 £/mo
- Est rental Yield
- 2.95 %Decreased by 35.16 %
- Crime Rate
- 18.00 %Unchanged by 0.00 %
Agent Activity
J W Wood created the listing.
Nearby Schools
| Name | Type | Ofsted | Distance |
|---|---|---|---|
| St Helen Auckland Community Primary School | Community School | Good | 0.07 KM |
| Oakley Cross Primary School And Nursery | Community School | Good | 1.33 KM |
| Copeland Road Primary School | Community School | Good | 1.91 KM |
| Bishop Auckland College | Further Education | Requires improvement | 2.48 KM |
| Woodhouse Community Primary School | Community School | Good | 2.49 KM |
Images
Nearby Streets
| Name | Average Price | Average Sqft | Distance |
|---|---|---|---|
| Cheltenham Court | £ 0 | 0 | 0.00 KM |
| Blythe Avenue | £ 99,950 | 0 | 0.00 KM |
| Mill Race | £ 0 | 0 | 0.00 KM |
| Greenfields Road | £ 0 | 0 | 0.00 KM |
| Hollywell Grove | £ 0 | 0 | 0.00 KM |
Nearby Transport
| Name | NLC | TLC | Distance |
|---|---|---|---|
| Bishop Auckland | 7835 | BIA | 4.40 KM |
| Shildon | 7893 | SHD | 8.27 KM |
Nearby Listings
| Address | Price | Type | Score | Distance |
|---|---|---|---|---|
| Manor Road, St. Helen Auckland, Bishop Auckland, DL14 | £ 87,000 | BUY | 5 / 10 | 0.00 KM |
| Manor Road, St. Helen Auckland, Bishop Auckland | £ 110,000 | BUY | 6 / 10 | 0.03 KM |
| Manor Road, St. Helen Auckland, Bishop Auckland, Durham, DL14 | £ 110,000 | BUY | 5 / 10 | 0.03 KM |
| Manor Road, St. Helen Auckland, Bishop Auckland, County Durham, DL14 | £ 95,000 | BUY | 6 / 10 | 0.13 KM |
| Mayfield Walk, St. Helen Auckland, Bishop Auckland, DL14 | £ 150,000 | BUY | 7 / 10 | 0.14 KM |
Nearby Properties
| Address | Price | Distance |
|---|---|---|
| 2 Oswald Street | £ 62,000 | 0.07 KM |
| 3 Oswald Street | £ 65,000 | 0.07 KM |
| 1d Manor Road | £ 102,500 | 0.08 KM |
| 1f Manor Road | £ 100,000 | 0.08 KM |
| 27 Manor Road | £ 80,666 | 0.08 KM |