Orchard Way, Dibden Purlieu, SO45
By Anthony James Properties
£ 500,000
Reviews
3 out of 5 stars
Anthony James Properties says ..
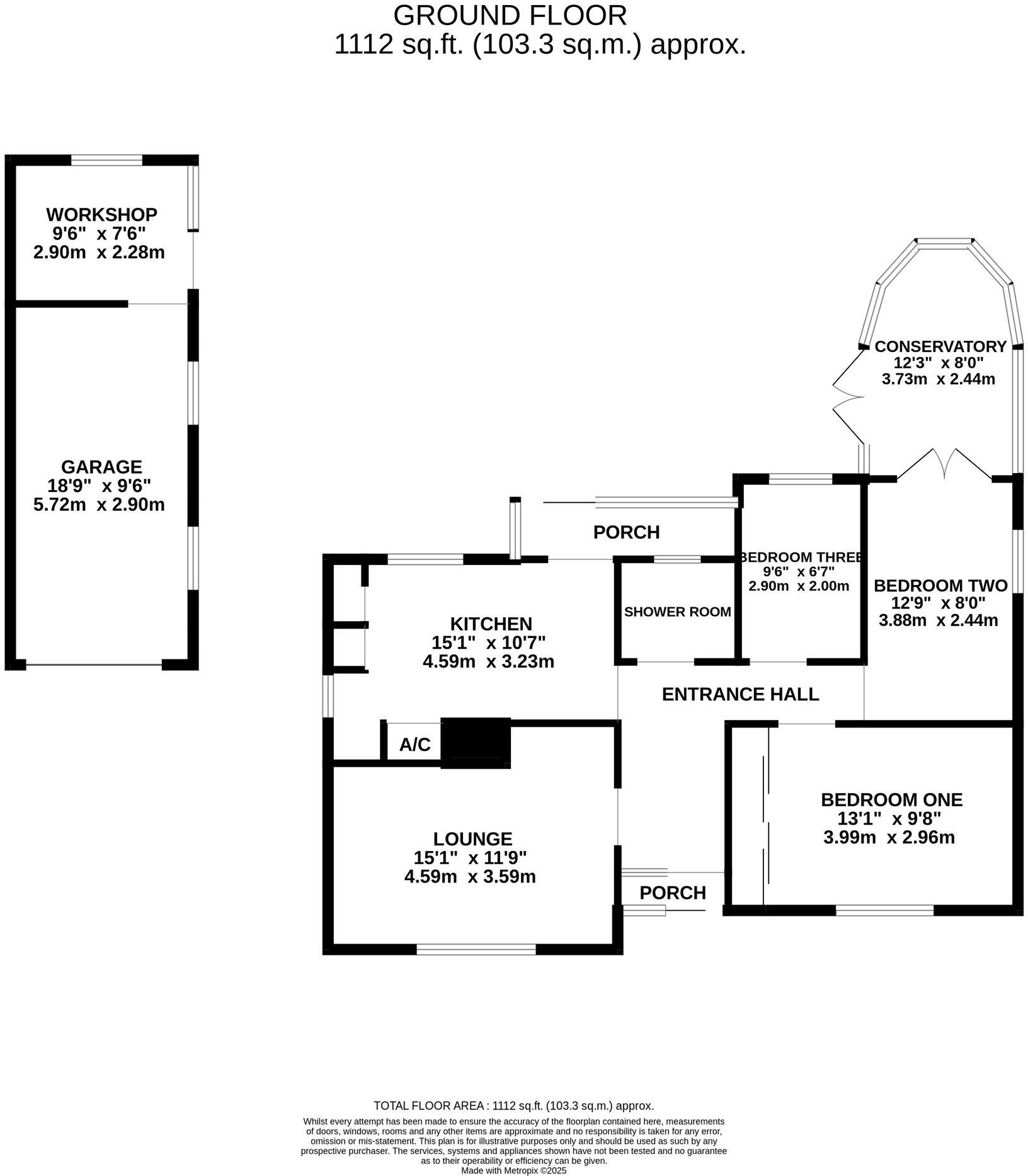
Spacious 3-bed detached bungalow on 0.19 acre plot with garage, workshop, and ample parking. Versatile layout, conservatory, scope to extend (STP), peaceful setting. No onward chain.
Property Oracle says ..
This detached bungalow in Dibden Purlieu offers a blend of potential and convenience. Its location is a strong point, with proximity to well-regarded schools and transportation links. The property features a good-sized garden and a garage, adding to its desirability. However, the interior is dated and requires modernisation, particularly in the kitchen and bathroom. While the asking price aligns with the local market, the renovation needs should be considered by potential buyers.
Therefore, we give this property 6 / 10. *Disclaimer: This is our option and does constitute a recommendation or financial advice. Do your own research. *
- Price
- 6
- Condition
- 5
- Location
- 7
- Land
- 8
- Bedrooms
- 3
- Bathrooms
- 1
The heatmap indicates the level of crime in the area. The color of the heatmap indicates the crime severity and recency.
Metrics Year-on-Year
- Average area value
- 383,738.00 £Increased by 2.70 %
- Average area rental value
- 1,072.00 £/moDecreased by 26.27 %
- Est rental Yield
- 3.35 %Decreased by 28.27 %
- Crime Rate
- 10.00 %Unchanged by 0.00 %
Agent Activity
Anthony James Properties created the listing.
Nearby Schools
| Name | Type | Ofsted | Distance |
|---|---|---|---|
| Orchard Junior School | Community School | Good | 0.22 KM |
| Orchard Infant School | Community School | Outstanding | 0.22 KM |
| Noadswood School | Academy Converter | Good | 0.73 KM |
| Wildground Infant School | Community School | Good | 0.79 KM |
| Wildground Junior School | Community School | Good | 0.85 KM |
Images
Nearby Streets
| Name | Average Price | Average Sqft | Distance |
|---|---|---|---|
| Marlborough Court | £ 0 | 0 | 0.00 KM |
| Midway | £ 0 | 0 | 0.00 KM |
| Pine Close | £ 0 | 0 | 0.00 KM |
| Whitewater Rise | £ 333,317 | 0 | 0.00 KM |
| Armitage Avenue | £ 0 | 0 | 0.00 KM |
Nearby Transport
| Name | NLC | TLC | Distance |
|---|---|---|---|
| Southampton Central | 5932 | SOU | 5.25 KM |
| Woolston | 5925 | WLS | 5.70 KM |
| Millbrook (Hants) | 5909 | MBK | 6.23 KM |
| Sholing | 5930 | SHO | 6.51 KM |
| St Denys | 5914 | SDN | 7.35 KM |
Nearby Listings
| Address | Price | Type | Score | Distance |
|---|---|---|---|---|
| Orchard Way, Dibden Purlieu, SO45 | £ 500,000 | BUY | 6 / 10 | 0.00 KM |
| Orchard Way, Dibden Purlieu | £ 450,000 | BUY | 7 / 10 | 0.04 KM |
| Orchard Way, Dibden Purlieu, SO45 | £ 599,950 | BUY | 7 / 10 | 0.05 KM |
| The Wicket, Hythe, Southampton, SO45 5AU | £ 225,000 | BUY | 5 / 10 | 0.08 KM |
| Orchard Way, Dibden Purlieu, Southampton, SO45 | £ 475,000 | BUY | 5 / 10 | 0.10 KM |
Nearby Properties
| Address | Price | Distance |
|---|---|---|
| 13 The Wicket | £ 180,000 | 0.07 KM |
| 16 The Wicket | £ 150,300 | 0.07 KM |
| 14 The Wicket | £ 265,000 | 0.07 KM |
| 5 The Wicket | £ 115,000 | 0.07 KM |
| 19 The Wicket | £ 205,000 | 0.07 KM |