Foxtons says ..
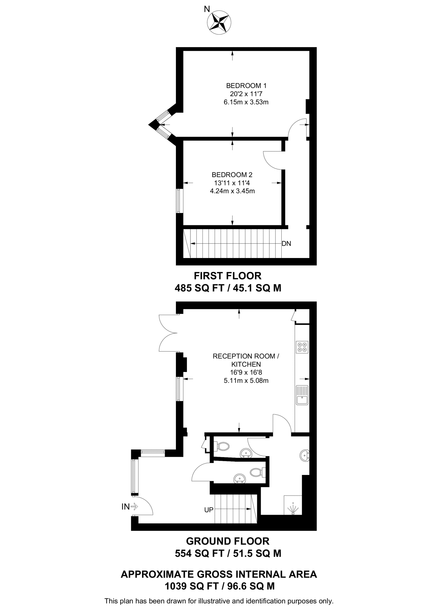
Well presented throughout, this amazing 2 bedroom house boast a bright and spacious reception room with open-plan kitchen and generously sized double bedrooms.
Property Oracle says ..
Therefore, we give this property 6 / 10. *Disclaimer: This is our option and does constitute a recommendation or financial advice. Do your own research. *
- Price
- 8
- Condition
- 7
- Location
- 7
- Land
- 3
- Bedrooms
- 2
- Bathrooms
- 2
- Sqft (est)
- 1,039.79
The heatmap indicates the level of crime in the area. The color of the heatmap indicates the crime severity and recency.
Metrics Year-on-Year
- Average area value
- 299,286.00 £Decreased by 12.95 %
- Est sale value
- 449,189.28 £Increased by 3.60 %
- Average area rental value
- 1,709.00 £/moDecreased by 4.68 %
- Est letting value
- 2,079.58 £/moUnchanged by 0.00 %
- Est rental Yield
- 6.85 %Increased by 9.42 %
- Crime Rate
- 5.00 %Unchanged by 0.00 %
from 343,794.00 £
from 433,592.43 £
from 1,793.00 £/mo
from 2,079.58 £/mo
from 6.26 %
from 5.00 %
Agent Activity
Foxtons created the listing.
Nearby Schools
| Name | Type | Ofsted | Distance |
|---|---|---|---|
| Harris Primary Academy Croydon | Academy Sponsor Led | 0.50 KM | |
| Addington Valley Academy | Free Schools Special | 0.55 KM | |
| Broad Green Sure Start | Children's Centre Linked Site | 0.57 KM | |
| Chestnut Park Primary School | Academy Sponsor Led | Outstanding | 0.89 KM |
| Elmwood Infant School | Community School | Good | 0.90 KM |
Images
Nearby Streets
| Name | Average Price | Average Sqft | Distance |
|---|---|---|---|
| York Road | £ 0 | 0 | 0.00 KM |
| York Road | £ 0 | 0 | 0.00 KM |
| Campbell Road | £ 0 | 0 | 0.00 KM |
| Allen Road | £ 0 | 0 | 0.00 KM |
| Fairmead Road | £ 0 | 0 | 0.00 KM |
Nearby Transport
| Name | NLC | TLC | Distance |
|---|---|---|---|
| West Croydon | 5411 | WCY | 1.23 KM |
| Waddon | 5392 | WDO | 1.73 KM |
| Thornton Heath | 5388 | TTH | 2.31 KM |
| East Croydon | 5355 | ECR | 2.36 KM |
| Selhurst | 5434 | SRS | 2.93 KM |
Nearby Listings
| Address | Price | Type | Score | Distance |
|---|---|---|---|---|
| Churchill Mews, Croydon, CR0 | £ 350,000 | BUY | 6 / 10 | 0.00 KM |
| Churchill Mews, Croydon, CR0 | £ 210,000 | BUY | Unknown | 0.00 KM |
| Dennett Road, Croydon | £ 425,000 | BUY | 5 / 10 | 0.02 KM |
| Dennett Road, Croydon | £ 200,000 | BUY | 6 / 10 | 0.03 KM |
| Churchill Mews, Dennett Road, Croydon | £ 200,000 | BUY | Unknown | 0.03 KM |
Nearby Properties
| Address | Price | Distance |
|---|---|---|
| 107 Dennett Road | £ 262,000 | 0.02 KM |
| 155 Dennett Road | £ 160,000 | 0.02 KM |
| 157 Dennett Road | £ 367,500 | 0.02 KM |
| 147 Dennett Road | £ 194,950 | 0.02 KM |
| 151 Dennett Road | £ 243,000 | 0.02 KM |