Fairfield Gardens, Glastonbury
By holland & odam
£ 280,000
Reviews
3 out of 5 stars
holland & odam says ..
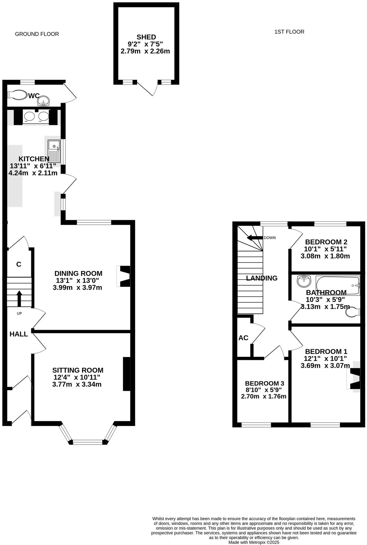
This charming mid-terrace townhouse, is ideally situated within a short level walk of the High Street. Available with no onward chain, the property offers three bedrooms, two reception rooms, kitchen, and bathroom, together with a good-sized enclosed rear garden. There is also the added benefit o...
Property Oracle says ..
This is a three-bedroom terraced house located in Glastonbury, Somerset. The property is in need of some updating, but offers a good opportunity for buyers looking to put their own stamp on a home. The location is convenient, with schools and local amenities nearby. The property also benefits from a garden with a shed. The asking price is competitive for the area, making it an attractive option for first-time buyers or investors.
Therefore, we give this property 6 / 10. *Disclaimer: This is our option and does constitute a recommendation or financial advice. Do your own research. *
- Price
- 7
- Condition
- 5
- Location
- 7
- Land
- 6
- Bedrooms
- 3
- Bathrooms
- 0
- Sqft (est)
- 807.29
The heatmap indicates the level of crime in the area. The color of the heatmap indicates the crime severity and recency.
Metrics Year-on-Year
- Average area value
- 312,574.00 £Increased by 1.14 %
- Est sale value
- 271,249.44 £Decreased by 47.34 %
- Average area rental value
- 1,096.00 £/moIncreased by 18.74 %
- Est letting value
- 807.29 £/moUnchanged by 0.00 %
- Est rental Yield
- 4.21 %Increased by 17.60 %
- Crime Rate
- 30.00 %Unchanged by 0.00 %
Agent Activity
holland & odam created the listing.
Nearby Schools
| Name | Type | Ofsted | Distance |
|---|---|---|---|
| St Benedict'S Church Of England Voluntary Aided Junior School | Voluntary Aided School | Good | 0.22 KM |
| Mendip West | Children's Centre | 0.31 KM | |
| St John'S Church Of England Voluntary Controlled Infants School | Voluntary Controlled School | Good | 0.63 KM |
| St Dunstan'S School | Academy Converter | Good | 0.90 KM |
| Tor School | Pupil Referral Unit | Good | 1.10 KM |
Images
Nearby Streets
| Name | Average Price | Average Sqft | Distance |
|---|---|---|---|
| Garvins Road | £ 545,000 | 0 | 0.00 KM |
| Monmouth Close | £ 0 | 0 | 0.00 KM |
| Pound Close | £ 0 | 0 | 0.00 KM |
| Fisher's Hill | £ 0 | 0 | 0.00 KM |
| Saint John's Square | £ 0 | 0 | 0.00 KM |
Nearby Listings
| Address | Price | Type | Score | Distance |
|---|---|---|---|---|
| Fairfield Gardens, Glastonbury | £ 280,000 | BUY | 6 / 10 | 0.00 KM |
| Fairfield Gardens, Glastonbury | £ 325,000 | BUY | 7 / 10 | 0.03 KM |
| Benedict Street, Glastonbury, BA6 | £ 285,000 | BUY | 7 / 10 | 0.06 KM |
| HOUSE | UPDATING | GLASTONBURY | £ 195,000 | BUY | Unknown | 0.07 KM |
| Palmers Road, Glastonbury, BA6 | £ 279,950 | BUY | 6 / 10 | 0.07 KM |
Nearby Properties
| Address | Price | Distance |
|---|---|---|
| 16 Fairfield Gardens | £ 190,000 | 0.05 KM |
| 23 Fairfield Gardens | £ 170,000 | 0.05 KM |
| 2 Fairfield Gardens | £ 160,000 | 0.05 KM |
| 5 Chalice Way | £ 159,000 | 0.05 KM |
| 18 Fairfield Gardens | £ 145,000 | 0.05 KM |