Harper & Woods says ..
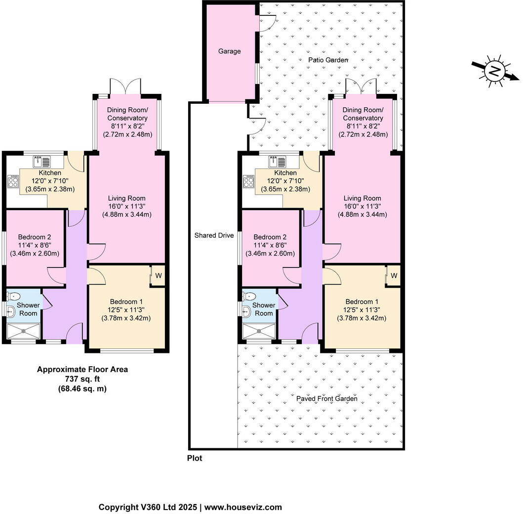
What a fantastic home! This two bedroom semi detached bungalow has the benefit of a conservatory, shared driveway and garage too! Being sold with no chain, you need to be quick to arrange your viewing. Set in a quiet cul-de-sac in Wallasey Village, just a short walk to the nearby services and ...
Property Oracle says ..
This two-bedroom semi-detached bungalow in Wallasey, Wirral, is presented for sale at £215,000. The property benefits from a convenient location near Wallasey Village, offering access to local shops, amenities, and transport links via Merseyrail stations. Several schools are within walking distance, making it potentially attractive to families. However, the Ofsted ratings of the nearby schools are mixed, ranging from ‘Good’ to ‘Requires Improvement’.
The property itself appears habitable but requires some modernisation and updating. The photographs reveal a dated interior, with some areas needing repair, such as the walls in at least one bedroom. The kitchen and bathroom are functional but would benefit from refurbishment to enhance their aesthetic appeal and potentially increase the property’s value. The small paved rear garden provides limited outdoor space, suitable for basic seating but not extensive gardening.
The price of £215,000 seems in line with other properties on Longacre Close and in the surrounding area, though a precise comparison is difficult due to a lack of consistent square footage data in the provided nearby listings. The property’s condition requires consideration; potential buyers should factor in the cost of renovations and updates into their budget. Overall, this property presents a reasonable opportunity for a buyer willing to undertake some refurbishment work.
Therefore, we give this property 5 / 10. *Disclaimer: This is our option and does constitute a recommendation or financial advice. Do your own research. *
- Price
- 7
- Condition
- 5
- Location
- 7
- Land
- 3
- Bedrooms
- 2
- Bathrooms
- 1
- Sqft (est)
- 736.90
The heatmap indicates the level of crime in the area. The color of the heatmap indicates the crime severity and recency.
Metrics Year-on-Year
- Average area value
- 283,568.00 £Increased by 1.75 %
- Est sale value
- 163,591.80 £Increased by 2.30 %
- Average area rental value
- 825.00 £/moDecreased by 19.67 %
- Est letting value
- 0.00 £/mo
- Est rental Yield
- 3.49 %Decreased by 21.04 %
- Crime Rate
- 12.00 %Unchanged by 0.00 %
Agent Activity
Harper & Woods created the listing.
Nearby Schools
| Name | Type | Ofsted | Distance |
|---|---|---|---|
| The Mosslands School | Community School | Requires improvement | 0.62 KM |
| Greenleas Primary School | Community School | Good | 0.78 KM |
| St Mary'S Catholic College, A Voluntary Academy | Academy Sponsor Led | Requires improvement | 0.81 KM |
| St George'S Primary School | Community School | Good | 1.05 KM |
| Weatherhead High School | Academy Converter | Outstanding | 1.76 KM |
Images
Nearby Streets
| Name | Average Price | Average Sqft | Distance |
|---|---|---|---|
| Southcroft Road | £ 0 | 0 | 0.00 KM |
| Cross Lane | £ 0 | 0 | 0.00 KM |
| Somerset Road | £ 0 | 0 | 0.00 KM |
| Bangor Road | £ 380,000 | 0 | 0.00 KM |
| Wood Lane | £ 0 | 0 | 0.00 KM |
Nearby Transport
| Name | NLC | TLC | Distance |
|---|---|---|---|
| Wallasey Village | 2265 | WLV | 0.34 KM |
| Wallasey Grove Road | 2154 | WLG | 0.79 KM |
| Bidston | 2136 | BID | 1.54 KM |
| Birkenhead North | 2145 | BKN | 2.43 KM |
| New Brighton | 2152 | NBN | 3.19 KM |
Nearby Listings
| Address | Price | Type | Score | Distance |
|---|---|---|---|---|
| Longacre Close, Wallasey | £ 215,000 | BUY | 5 / 10 | 0.00 KM |
| Longacre Close, Wallasey, Wirral | £ 220,000 | BUY | 7 / 10 | 0.06 KM |
| Southbourne Road, Wallasey, Wirral | £ 300,000 | BUY | Unknown | 0.08 KM |
| Southbourne Road, Wallasey | £ 289,995 | BUY | Unknown | 0.08 KM |
| Leasowe Road, Wallasey | £ 230,000 | BUY | 7 / 10 | 0.12 KM |
Nearby Properties
| Address | Price | Distance |
|---|---|---|
| 18 Longacre Close | £ 125,000 | 0.01 KM |
| 24 Longacre Close | £ 140,000 | 0.01 KM |
| 26 Longacre Close | £ 135,000 | 0.01 KM |
| 20 Longacre Close | £ 120,000 | 0.01 KM |
| 12 Longacre Close | £ 112,000 | 0.01 KM |