Sandringham Road, Newton Abbot, TQ12 4HB
By Complete
£ 255,000
Reviews
3 out of 5 stars
Complete says ..
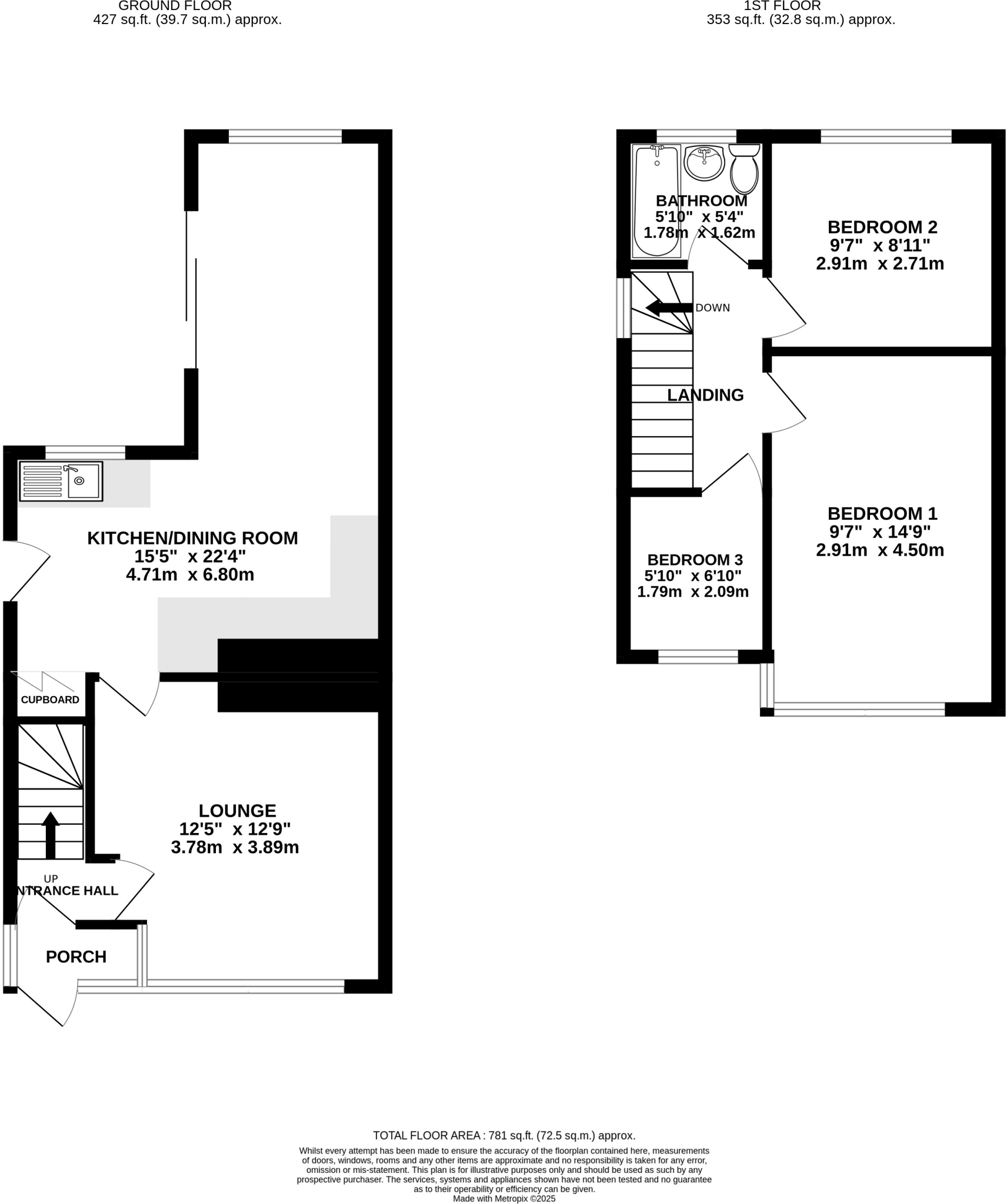
CHECK OUT this 3 Bedroom Semi-Detached Home with an entrance Porch way, Living Room, Kitchen/Breakfast with Extended Dining Room, Bathroom, Off-Road Parking & Rear Enclosed Garden. Located in the popular market town of Newton Abbot, with easy access to the A380 to Torbay, Exeter and the M5.
Property Oracle says ..
This 3-bedroom semi-detached house in Newton Abbot is listed at £255,000. The property appears to be in good condition, having undergone some recent modernisation, as shown in the photos. It benefits from a good-sized garden, a valuable asset in a competitive market. The location is convenient, with nearby schools and a train station. However, the average house price in the area is significantly higher (£324,283), and the property’s square footage (780 sqft) is considerably smaller than the average (1125 sqft). Considering the smaller size and lower price compared to local averages, the asking price may represent reasonable value, although further investigation into comparable properties in the immediate vicinity would be beneficial to confirm this. The property is described as having excellent family accommodation.
Therefore, we give this property 7 / 10. *Disclaimer: This is our option and does constitute a recommendation or financial advice. Do your own research. *
- Price
- 6
- Condition
- 8
- Location
- 7
- Land
- 7
- Bedrooms
- 3
- Bathrooms
- 1
- Sqft (est)
- 780.38
The heatmap indicates the level of crime in the area. The color of the heatmap indicates the crime severity and recency.
Metrics Year-on-Year
- Average area value
- 317,000.00 £Increased by 3.88 %
- Est sale value
- 255,964.64 £Increased by 13.10 %
- Average area rental value
- 938.00 £/moDecreased by 8.49 %
- Est letting value
- 0.00 £/mo
- Est rental Yield
- 3.55 %Decreased by 11.91 %
- Crime Rate
- 2.00 %Unchanged by 0.00 %
Agent Activity
Complete created the listing.
Nearby Schools
| Name | Type | Ofsted | Distance |
|---|---|---|---|
| Haytor View Community Primary School | Community School | Good | 0.34 KM |
| Glendinning Academy | Free Schools Special | 0.36 KM | |
| Sunshine Childrens Centre Newton Abbot And District 2 | Children's Centre | 0.36 KM | |
| Decoy Primary School | Community School | Good | 1.24 KM |
| All Saints Marsh Cofe Academy | Academy Converter | Good | 1.36 KM |
Images
Nearby Streets
| Name | Average Price | Average Sqft | Distance |
|---|---|---|---|
| Grenville Close | £ 185,000 | 0 | 0.00 KM |
| Brunel Road | £ 0 | 0 | 0.00 KM |
| Ridgeway Close | £ 0 | 0 | 0.00 KM |
| Osborne Street | £ 200,000 | 0 | 0.00 KM |
| Hewett Close | £ 0 | 0 | 0.00 KM |
Nearby Transport
| Name | NLC | TLC | Distance |
|---|---|---|---|
| Newton Abbot | 3426 | NTA | 0.95 KM |
| Torre | 3432 | TRR | 7.88 KM |
| Torquay | 3434 | TQY | 9.17 KM |
Nearby Listings
| Address | Price | Type | Score | Distance |
|---|---|---|---|---|
| Sandringham Road, Newton Abbot, TQ12 4HB | £ 255,000 | BUY | 7 / 10 | 0.00 KM |
| Sandringham Road, Buckland, Newton Abbot, Devon. | £ 200,000 | BUY | 5 / 10 | 0.00 KM |
| Sandringham Road, Newton Abbot, Devon, TQ12 | £ 200,000 | BUY | 6 / 10 | 0.12 KM |
| Queensway, Newton Abbot | £ 225,000 | BUY | 7 / 10 | 0.17 KM |
| Gilbert Road, Newton Abbot | £ 270,000 | BUY | 7 / 10 | 0.18 KM |
Nearby Properties
| Address | Price | Distance |
|---|---|---|
| 23 Sandringham Road | £ 131,000 | 0.00 KM |
| 25 Sandringham Road | £ 125,000 | 0.00 KM |
| 3 Sandringham Road | £ 235,000 | 0.00 KM |
| 27 Sandringham Road | £ 122,000 | 0.00 KM |
| 23 Gilbert Road | £ 59,250 | 0.18 KM |