Orchard Gardens, Dawlish, EX7
By Dart & Partners
£ 350,000
Reviews
3 out of 5 stars
Dart & Partners says ..
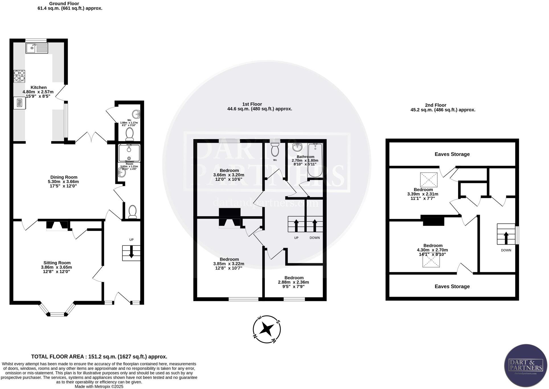
A wonderful opportunity to purchase this fantastic five bedroom semi detached family home in the heart of Dawlish, close to all local amenities train station and beaches. Flexible family accommodation briefly comprising. Reception hall, living room, dining room, kitchen, ground floor shower room,...
Property Oracle says ..
This property is a 5 bedroom, 2 bathroom semi-detached house located in Dawlish, Devon. The property is well presented and benefits from a modern kitchen and a good-sized garden. The location is convenient, with nearby schools and transportation links. The list price is slightly above the average price per square foot for the area, but this is likely due to the property’s size and features. Overall, this is a desirable property in a good location.
Therefore, we give this property 7 / 10. *Disclaimer: This is our option and does constitute a recommendation or financial advice. Do your own research. *
- Price
- 7
- Condition
- 8
- Location
- 8
- Land
- 7
- Bedrooms
- 5
- Bathrooms
- 2
- Sqft (est)
- 968.75
- Lot (est)
- 1,627.50
The heatmap indicates the level of crime in the area. The color of the heatmap indicates the crime severity and recency.
Metrics Year-on-Year
- Average area value
- 384,500.00 £Increased by 11.80 %
- Est sale value
- 382,656.25 £Increased by 39.08 %
- Average area rental value
- 1,125.00 £/moIncreased by 0.45 %
- Est letting value
- 968.75 £/mo
- Est rental Yield
- 3.51 %Decreased by 10.23 %
- Crime Rate
- 48.00 %Unchanged by 0.00 %
Agent Activity
Dart & Partners created the listing.
Nearby Schools
| Name | Type | Ofsted | Distance |
|---|---|---|---|
| Oakwood Court College (Phoenix Learning Care Ltd) | Special Post 16 Institution | Good | 0.59 KM |
| Education And Care (Devon) Ltd At 7-9 Oak Park Villas | Miscellaneous | 0.60 KM | |
| Westcliff Primary Academy | Academy Sponsor Led | Good | 0.84 KM |
| Gatehouse Primary Academy | Academy Sponsor Led | Serious Weaknesses | 0.84 KM |
| Dawlish College | Academy Converter | 1.00 KM |
Images
Nearby Streets
| Name | Average Price | Average Sqft | Distance |
|---|---|---|---|
| Orchard Close | £ 300,000 | 0 | 0.00 KM |
| Priory Road | £ 500,000 | 0 | 0.00 KM |
| Sutton Close | £ 390,000 | 0 | 0.00 KM |
| Wallace Avenue | £ 425,000 | 0 | 0.00 KM |
| Brunswick Place | £ 0 | 0 | 0.00 KM |
Nearby Transport
| Name | NLC | TLC | Distance |
|---|---|---|---|
| Dawlish | 3408 | DWL | 0.71 KM |
| Dawlish Warren | 3409 | DWW | 3.53 KM |
| Teignmouth | 3430 | TGM | 4.63 KM |
| Starcross | 3413 | SCS | 5.67 KM |
| Exmouth | 5756 | EXM | 7.57 KM |
Nearby Listings
| Address | Price | Type | Score | Distance |
|---|---|---|---|---|
| Orchard Gardens, Dawlish, EX7 | £ 350,000 | BUY | 7 / 10 | 0.00 KM |
| Priory Park Road, Dawlish, EX7 | £ 249,950 | BUY | 7 / 10 | 0.07 KM |
| High Street, Dawlish, EX7 | £ 230,000 | BUY | 7 / 10 | 0.07 KM |
| 3 The Old Brewery, 45 High Street, EX7 9FF | £ 155,000 | BUY | 5 / 10 | 0.07 KM |
| High Street, Dawlish | £ 165,000 | BUY | 6 / 10 | 0.07 KM |
Nearby Properties
| Address | Price | Distance |
|---|---|---|
| 13 Orchard Gardens | £ 228,000 | 0.04 KM |
| 16 Orchard Gardens | £ 66,000 | 0.04 KM |
| 15 Orchard Gardens | £ 154,000 | 0.04 KM |
| 14 Orchard Gardens | £ 268,000 | 0.04 KM |
| 12 Orchard Gardens | £ 185,000 | 0.04 KM |