Sireen Apartments, 83 Richard Tress Way, Bow, London, E3
By Keatons
£ 640,000
Reviews
3 out of 5 stars
Keatons says ..
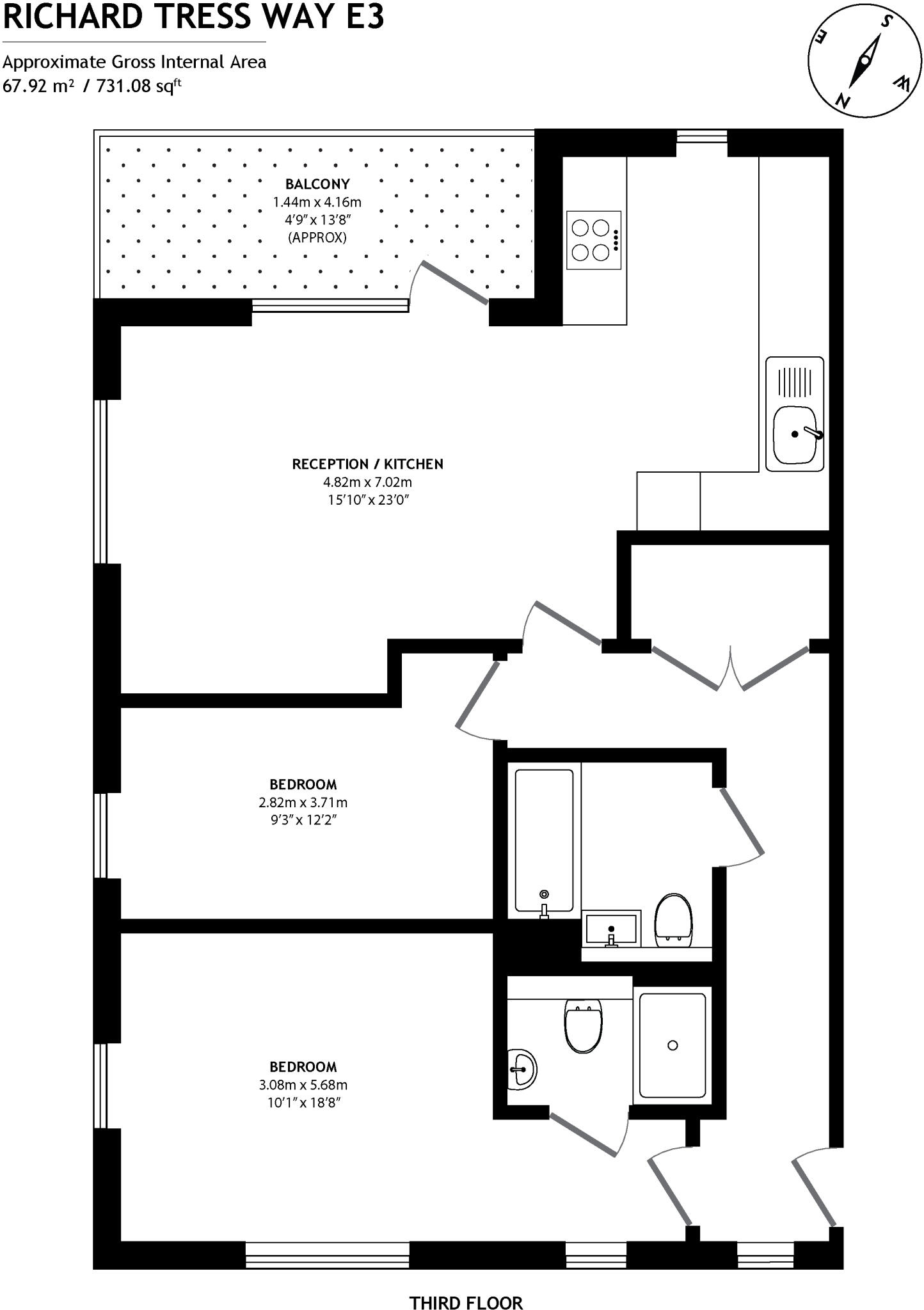
This extraordinary two-bedroom apartment is set within the sought-after St Clements development. The apartment is set on the top floor of this purpose-built block with the added benefit of having a tranquil setting overlooking stunning woodland. There is a real sense of size, natural light and vo...
Property Oracle says ..
This is a modern two-bedroom, two-bathroom flat located in Bow, London. The property appears to be in excellent condition, with a modern kitchen and bathrooms. While it lacks a private garden, it does feature a balcony. The location is well-connected, with several schools nearby. The price is slightly above the average for the area. Overall, it presents a solid opportunity for buyers looking for a modern flat in a convenient location.
Therefore, we give this property 6 / 10. *Disclaimer: This is our option and does constitute a recommendation or financial advice. Do your own research. *
- Price
- 6
- Condition
- 9
- Location
- 7
- Land
- 5
- Bedrooms
- 2
- Bathrooms
- 2
The heatmap indicates the level of crime in the area. The color of the heatmap indicates the crime severity and recency.
Metrics Year-on-Year
- Average area value
- 374,250.00 £Decreased by 7.52 %
- Average area rental value
- 2,248.00 £/moIncreased by 6.84 %
- Est rental Yield
- 7.21 %Increased by 15.54 %
- Crime Rate
- 3.00 %Unchanged by 0.00 %
Agent Activity
Keatons created the listing.
Nearby Schools
| Name | Type | Ofsted | Distance |
|---|---|---|---|
| Beatrice Tate School | Community Special School | Outstanding | 0.26 KM |
| Central Foundation Girls' School | Voluntary Aided School | Good | 0.34 KM |
| Phoenix School | Community Special School | Outstanding | 0.39 KM |
| Phoenix Autism Trust | Special Post 16 Institution | 0.40 KM | |
| Malmesbury Primary School | Community School | Good | 0.42 KM |
Images
Nearby Streets
| Name | Average Price | Average Sqft | Distance |
|---|---|---|---|
| Cantrell Road | £ 600,000 | 0 | 0.00 KM |
| Matching Court | £ 0 | 0 | 0.00 KM |
| Coborn Mews | £ 0 | 0 | 0.00 KM |
| Nailsea Square | £ 0 | 0 | 0.00 KM |
| Robeson Street | £ 0 | 0 | 0.00 KM |
Nearby Transport
| Name | NLC | TLC | Distance |
|---|---|---|---|
| Limehouse | 7491 | LHS | 1.84 KM |
| Hackney Wick | 6978 | HKW | 2.15 KM |
| Homerton | 6979 | HMN | 2.97 KM |
| Stratford International | 7222 | SFA | 3.13 KM |
| Cambridge Heath | 6962 | CBH | 3.33 KM |
Nearby Listings
| Address | Price | Type | Score | Distance |
|---|---|---|---|---|
| Richard Tress Way, London, E3 | £ 400,000 | BUY | 6 / 10 | 0.00 KM |
| Sireen Apartments, 83 Richard Tress Way, Bow, London, E3 | £ 640,000 | BUY | 6 / 10 | 0.00 KM |
| Hemp Apartments, Richard Tress Way, London, E3 | £ 675,000 | BUY | 5 / 10 | 0.04 KM |
| Richard Tress Way, Bow | £ 640,000 | BUY | 7 / 10 | 0.05 KM |
| Sireen Apartments, St. Clements, E3 | £ 625,000 | BUY | 6 / 10 | 0.06 KM |
Nearby Properties
| Address | Price | Distance |
|---|---|---|
| 40 Brokesley Street | £ 400,000 | 0.23 KM |
| 61 Brokesley Street | £ 532,000 | 0.23 KM |
| 73 Brokesley Street | £ 70,000 | 0.23 KM |
| 48 Brokesley Street | £ 470,000 | 0.23 KM |
| 68 Brokesley Street | £ 830,000 | 0.23 KM |