AS
Falconer Street, York
By Ashtons Estate Agents
£ 230,000
Reviews
2 out of 5 stars
Ashtons Estate Agents says ..
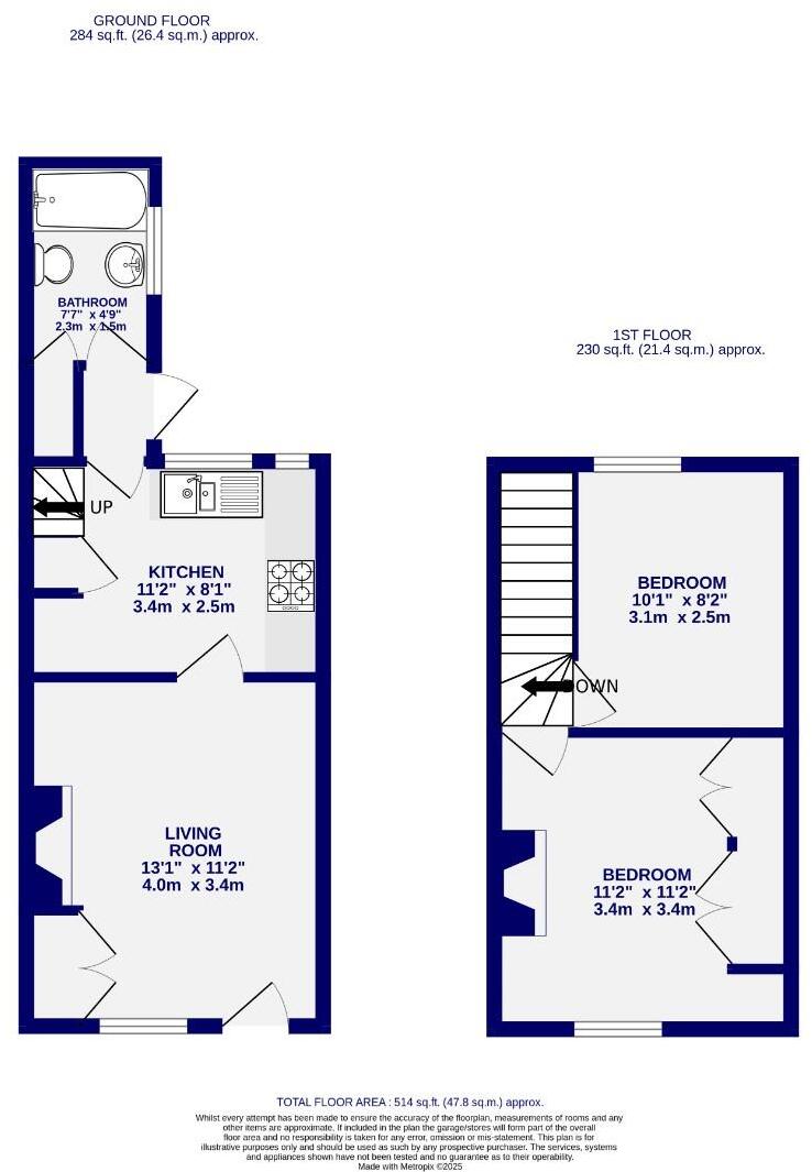
Located in the ever popular residential area of Holgate, just a short walk from York train station and the city centre, is this much loved period terrace home. With two double bedrooms, original features throughout, and a private west facing courtyard, the property is offered with no onward chain...
Property Oracle says ..
Therefore, we give this property 4 / 10. *Disclaimer: This is our option and does constitute a recommendation or financial advice. Do your own research. *
- Price
- 4
- Condition
- 6
- Location
- 7
- Land
- 1
- Bedrooms
- 2
- Bathrooms
- 1
- Sqft (est)
- 482.87
The heatmap indicates the level of crime in the area. The color of the heatmap indicates the crime severity and recency.
Metrics Year-on-Year
- Average area value
- 205,714.00 £Decreased by 35.49 %
- Est sale value
- 160,795.71 £Decreased by 12.14 %
- Average area rental value
- 1,183.00 £/moIncreased by 12.03 %
- Est letting value
- 482.87 £/moUnchanged by 0.00 %
- Est rental Yield
- 6.90 %Increased by 73.80 %
- Crime Rate
- 14.00 %Unchanged by 0.00 %
from 318,893.00 £
from 183,007.73 £
from 1,056.00 £/mo
from 482.87 £/mo
from 3.97 %
from 14.00 %
Agent Activity
Ashtons Estate Agents created the listing.
Nearby Schools
| Name | Type | Ofsted | Distance |
|---|---|---|---|
| Our Lady Queen Of Martyrs Catholic Primary School - A Catholic Voluntary Academy | Academy Converter | 0.32 KM | |
| St Paul'S Nursery School | Local Authority Nursery School | Good | 0.77 KM |
| St Paul'S Church Of England Voluntary Controlled Primary School | Voluntary Controlled School | Good | 0.85 KM |
| Acomb Primary School | Academy Converter | 0.90 KM | |
| The Mount School (York) | Other Independent School | 1.10 KM |
Images
Nearby Streets
| Name | Average Price | Average Sqft | Distance |
|---|---|---|---|
| Barrett Avenue | £ 0 | 0 | 0.00 KM |
| Thompson Place | £ 0 | 0 | 0.00 KM |
| Barnabas Court | £ 0 | 0 | 0.00 KM |
| Allanson Grove | £ 0 | 0 | 0.00 KM |
| Knavesmire Road | £ 350,000 | 0 | 0.00 KM |
Nearby Transport
| Name | NLC | TLC | Distance |
|---|---|---|---|
| York | 8263 | YRK | 1.59 KM |
| Poppleton | 8254 | POP | 5.13 KM |
Nearby Listings
| Address | Price | Type | Score | Distance |
|---|---|---|---|---|
| Falconer Street, York | £ 230,000 | BUY | 4 / 10 | 0.00 KM |
| Falconer Street, York | £ 220,000 | BUY | 7 / 10 | 0.03 KM |
| Falconer Street, Holgate, York | £ 230,000 | BUY | 6 / 10 | 0.04 KM |
| Acomb Road, Acomb, York, YO24 | £ 200,000 | BUY | 5 / 10 | 0.05 KM |
| Maxwell House, Acomb Road, York YO24 4HD | £ 210,000 | BUY | 5 / 10 | 0.07 KM |
Nearby Properties
| Address | Price | Distance |
|---|---|---|
| 7 Acomb Road | £ 250,000 | 0.03 KM |
| 3a Acomb Road | £ 115,000 | 0.03 KM |
| 3 Acomb Road | £ 125,000 | 0.03 KM |
| 11 Falconer Street | £ 70,000 | 0.04 KM |
| 22 Falconer Street | £ 160,000 | 0.04 KM |