Verney Road, Royton, OL2 6AZ
YI

Verney Road, Royton, OL2 6AZ

By yieldit

£ 260,000

Reviews

2 out of 5 stars

yieldit says ..

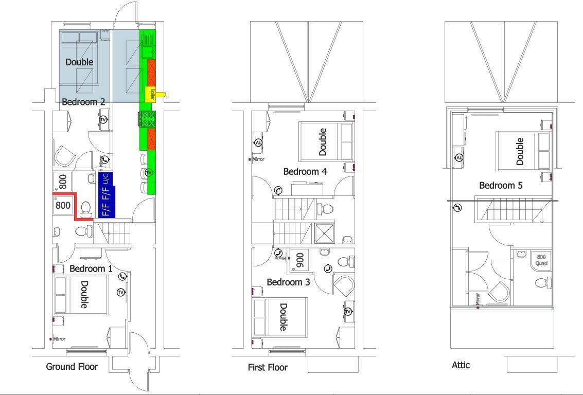
EXCELLENT INVESTMENT OPPORTUNITY - MODERN 5 BEDROOM HMO - 7.14% NET RETURN WITH GOOD SCOPE TO INCREASE! Fully furnished and occupied, ideally situated in Royton with excellent transport links.

Property Oracle says ..

This property in Royton, Oldham, is a substantial terraced house with five bedrooms and five bathrooms, covering a significant internal area of 10,763 square feet. Its location offers close proximity to several schools rated ‘Good’ by Ofsted, making it potentially attractive to families. Access to public transport is also relatively convenient, with several train stations within a reasonable distance. However, the condition of the property presents a mixed picture. Some areas, notably the kitchen and some bathrooms, display modern fixtures and fittings, suggesting recent renovations. However, other rooms show signs of wear and tear, uncleanliness, and clutter, requiring attention to bring the property up to a higher standard. The lack of a garden or substantial outdoor space is a noteworthy factor. The pricing of £260,000 is competitive within the context of a property of this size and the number of bathrooms and bedrooms; however, further comparable data is required to provide a conclusive judgement on value. The property may require further investment to maximise its appeal or rental potential, given the uneven standard of condition visible in the photographs. In summary, the property has significant potential but requires thorough assessment of its condition, location-specific pricing comparables, and intended use before a final valuation can be reached.

Therefore, we give this property 4 / 10. *Disclaimer: This is our option and does constitute a recommendation or financial advice. Do your own research. *

Price
6
Condition
5
Location
7
Land
1
Bedrooms
5
Bathrooms
5
Sqft (est)
10,763.91

The heatmap indicates the level of crime in the area. The color of the heatmap indicates the crime severity and recency.

Metrics Year-on-Year

Average area value
179,279.00 £
Decreased by 22.29 %
from 230,696.00 £
Est sale value
2,701,741.41 £
Decreased by 0.79 %
from 2,723,269.23 £
Average area rental value
1,050.00 £/mo
Decreased by 1.04 %
from 1,061.00 £/mo
Est letting value
10,763.91 £/mo
Unchanged by 0.00 %
from 10,763.91 £/mo
Est rental Yield
7.03 %
Increased by 27.36 %
from 5.52 %
Crime Rate
0.00 %
from 0.00 %

Agent Activity

  • yieldit created the listing.

Nearby Schools

NameTypeOfstedDistance
St Anne'S Cofe (Aided) Primary SchoolVoluntary Aided SchoolGood0.54 KM
Ss Aidan And Oswald'S Roman Catholic Primary SchoolVoluntary Aided SchoolGood0.81 KM
Elland House SchoolOther Independent Special SchoolGood0.88 KM
The Oldham Academy NorthAcademy Sponsor LedGood0.89 KM
Royton Hall Primary SchoolCommunity SchoolGood1.14 KM

Images

45VerneyRoadimage00003_edited.jpg 45VerneyRoadimage00027.jpg 45VerneyRoadimage00038.jpg 45VerneyRoadimage00037.jpg 45VerneyRoadimage00035.jpg 45VerneyRoadimage00020.jpg 45VerneyRoadimage00021.jpg 45VerneyRoadimage00032.jpg 45VerneyRoadimage00031.jpg 45VerneyRoadimage00029.jpg 45VerneyRoadimage00025.jpg 45VerneyRoadimage00019.jpg 45VerneyRoadimage00024.jpg 45VerneyRoadimage00018.jpg 45VerneyRoadimage00015.jpg 45VerneyRoadimage00014.jpg 45VerneyRoadimage00012.jpg 45VerneyRoadimage00007.jpg 45VerneyRoadimage00011.jpg 45VerneyRoadimage00005.jpg

Nearby Streets

NameAverage PriceAverage SqftDistance
Edge Hill Road £ 264,92500.00 KM
Manor Drive £ 349,95000.00 KM
Booth Hill Lane £ 000.00 KM
Arlington Close £ 269,95000.00 KM
Plumpton Close £ 000.00 KM

Nearby Transport

NameNLCTLCDistance
Mills Hill (Manchester)2920MIH6.01 KM
Rochdale2924RCD7.05 KM
Moston2973MSO7.05 KM
Castleton (Manchester)2919CAS7.69 KM
Ashton-Under-Lyne2790AHN7.86 KM

Nearby Listings

AddressPriceTypeScoreDistance
Verney Road, Royton, OL2 6AZ £ 260,000BUY4 / 100.00 KM
Verney Road, Royton, Oldham, Greater Manchester, OL2 £ 190,000BUY6 / 100.02 KM
Verney Road, Royton, Oldham, Greater Manchester, OL2 £ 189,950BUY7 / 100.02 KM
Marlborough Road, Royton £ 220,000BUY6 / 100.12 KM
Marlborough Road, Royton £ 270,000BUY7 / 100.12 KM

Nearby Properties

AddressPriceDistance
41 Verney Road £ 85,0000.02 KM
45 Verney Road £ 245,0000.02 KM
3 Verney Road £ 92,0000.02 KM
33 Verney Road £ 75,0000.02 KM
23 Verney Road £ 145,0000.02 KM