Ann Street, Ipswich, Suffolk, IP1
By Fenn Wright
£ 165,000
Reviews
2 out of 5 stars
Fenn Wright says ..
Situated in a town centre location, withi walking distance of Christchurch Park and close to local amenities and Ipswich Mainline Railway Station, is this two bedroom terrace property that is being sold with no onward chain.
Property Oracle says ..
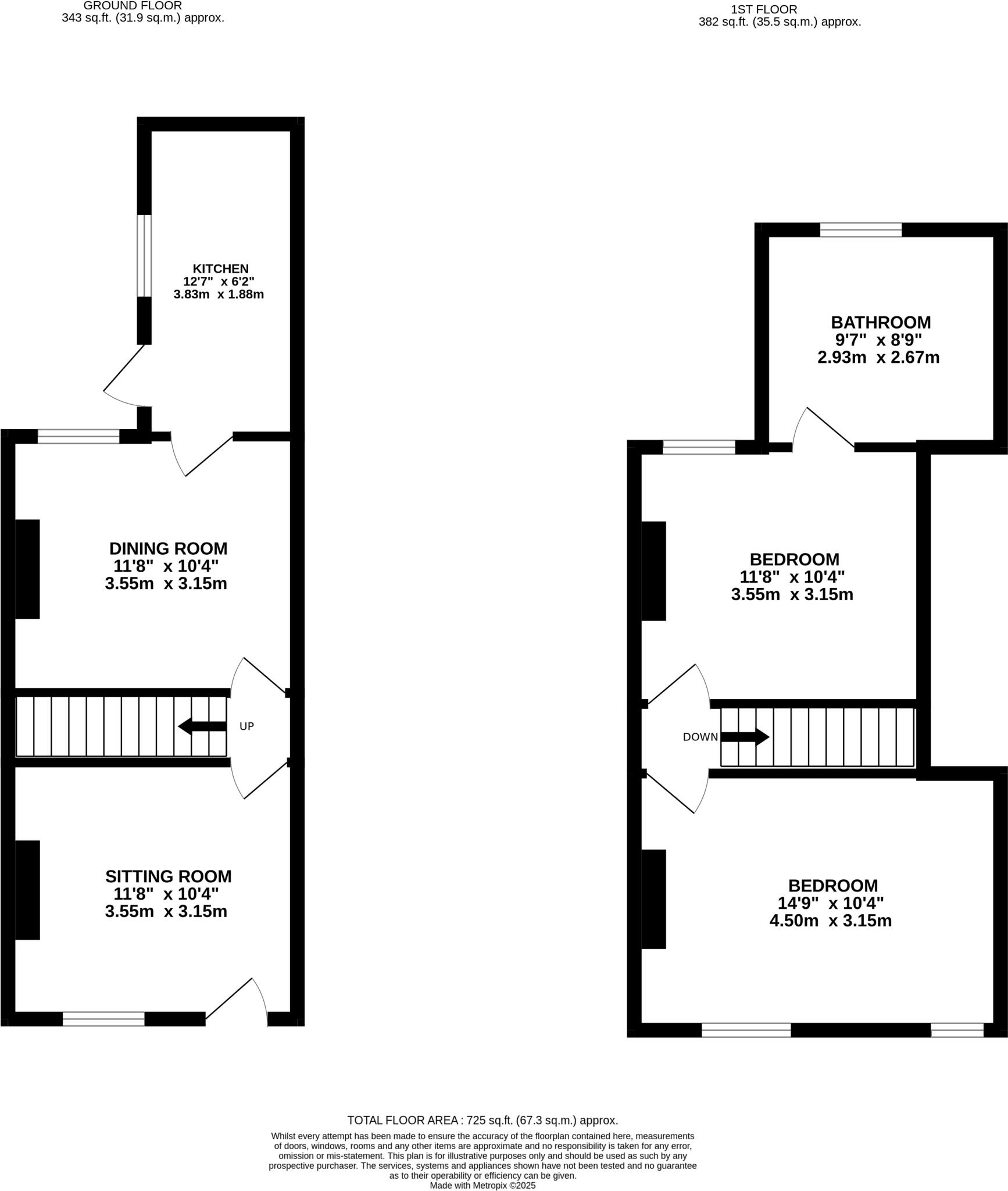
This property is a 2-bedroom, 1-bathroom terraced house located on Ann Street in Ipswich, Suffolk. The property is listed at £165,000 and has a plot size of 0.00 sqft. The average price for properties in the area is £258,798, with an average price per sqft of £296.00. Based on the provided images, the property appears to be in need of some modernisation and updating. The kitchen and bathroom are particularly dated. The property does benefit from having a small rear garden. Given the condition of the property, the relatively small size (725 sqft), and the lack of significant plot size, the list price of £165,000 seems somewhat high when compared to the average price per sqft in the area. However, the location in Ipswich, close to local amenities and transport links, could justify a slightly higher price. The presence of a garden is a positive feature, though its size is limited. Nearby comparable properties on Ann Street range from £120,000 to £175,000, suggesting a price point within this range could be more competitive.
Therefore, we give this property 4 / 10. *Disclaimer: This is our option and does constitute a recommendation or financial advice. Do your own research. *
- Price
- 5
- Condition
- 4
- Location
- 7
- Land
- 3
- Bedrooms
- 2
- Bathrooms
- 1
- Sqft (est)
- 725.00
The heatmap indicates the level of crime in the area. The color of the heatmap indicates the crime severity and recency.
Metrics Year-on-Year
- Average area value
- 222,854.00 £Decreased by 15.77 %
- Est sale value
- 208,800.00 £Decreased by 6.19 %
- Average area rental value
- 1,201.00 £/moIncreased by 7.91 %
- Est letting value
- 725.00 £/moUnchanged by 0.00 %
- Est rental Yield
- 6.47 %Increased by 28.12 %
- Crime Rate
- 11.00 %Unchanged by 0.00 %
Agent Activity
Fenn Wright created the listing.
Nearby Schools
| Name | Type | Ofsted | Distance |
|---|---|---|---|
| Westbridge Academy | Academy Alternative Provision Converter | Good | 0.30 KM |
| St Matthew'S Church Of England Primary School, Ipswich | Academy Converter | 0.48 KM | |
| Wellington Children'S Centre | Children's Centre | 0.63 KM | |
| Meredith Children'S Centre | Children's Centre | 0.63 KM | |
| West Lodge School | Other Independent Special School | Requires improvement | 0.64 KM |
Images
Nearby Streets
| Name | Average Price | Average Sqft | Distance |
|---|---|---|---|
| Wellington Street | £ 850,000 | 0 | 0.00 KM |
| Norwich Road | £ 0 | 0 | 0.00 KM |
| Mountbatten Court | £ 0 | 0 | 0.00 KM |
| Providence Lane | £ 0 | 0 | 0.00 KM |
| Black Horse Lane | £ 0 | 0 | 0.00 KM |
Nearby Transport
| Name | NLC | TLC | Distance |
|---|---|---|---|
| Ipswich | 7217 | IPS | 1.29 KM |
| Westerfield | 7226 | WFI | 3.19 KM |
| Derby Road (Ipswich) | 7212 | DBR | 4.45 KM |
Nearby Listings
| Address | Price | Type | Score | Distance |
|---|---|---|---|---|
| Ann Street, Ipswich, Suffolk, IP1 | £ 165,000 | BUY | 4 / 10 | 0.00 KM |
| Ann Street, Ipswich, Suffolk, IP1 | £ 250,000 | BUY | 6 / 10 | 0.01 KM |
| Ann Street, Ipswich | £ 205,000 | BUY | 6 / 10 | 0.01 KM |
| 37 Alpe Street, Ipswich | £ 345,000 | BUY | 7 / 10 | 0.03 KM |
| Alpe Street, Ipswich, Suffolk, IP1 | £ 300,000 | BUY | 6 / 10 | 0.03 KM |
Nearby Properties
| Address | Price | Distance |
|---|---|---|
| 29 Ann Street | £ 138,000 | 0.01 KM |
| 66a Ann Street | £ 90,000 | 0.01 KM |
| 64 Ann Street | £ 135,000 | 0.01 KM |
| 44 Ann Street | £ 125,000 | 0.01 KM |
| 4 Ann Street | £ 280,000 | 0.01 KM |