Beaconsfield Road, Seven Sisters, N15
By Tilson & Spencer
£ 390,000
Reviews
3 out of 5 stars
Tilson & Spencer says ..
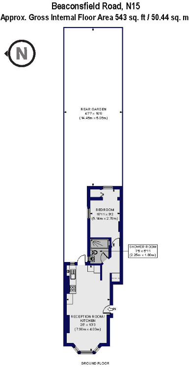
Tilson and Spencer present this beautifully appointed one bedroom, ground-floor garden flat, ideally situated near Seven Sisters Underground Station, Downhills Park, and a vibrant selection of local social venues.
Property Oracle says ..
This one-bedroom ground-floor flat on Beaconsfield Road, Seven Sisters, is presented in excellent condition following what appears to be a recent refurbishment. The property benefits from a modern, well-equipped kitchen and bathroom, and stylish interior design choices. A key feature is the inclusion of a garden, which is a rarity for flats in this area, providing valuable outdoor space. The location is convenient, being close to Seven Sisters underground station, offering good transport links. However, potential buyers should research the specific area of Seven Sisters to assess the local environment and amenities fully. While the property’s condition and the inclusion of the garden are significant positives, more information on the exact plot size and a detailed breakdown of local square footage prices would provide more context for accurate price analysis.
Therefore, we give this property 7 / 10. *Disclaimer: This is our option and does constitute a recommendation or financial advice. Do your own research. *
- Price
- 7
- Condition
- 9
- Location
- 7
- Land
- 6
- Bedrooms
- 1
- Bathrooms
- 1
- Sqft (est)
- 542.93
The heatmap indicates the level of crime in the area. The color of the heatmap indicates the crime severity and recency.
Metrics Year-on-Year
- Average area value
- 789,000.00 £Increased by 13.27 %
- Est sale value
- 630,884.66 £Increased by 105.66 %
- Average area rental value
- 2,233.00 £/moIncreased by 4.05 %
- Est letting value
- 1,628.79 £/moIncreased by 200.00 %
- Est rental Yield
- 3.40 %Decreased by 8.11 %
- Crime Rate
- 3.00 %Unchanged by 0.00 %
Agent Activity
Tilson & Spencer created the listing.
Nearby Schools
| Name | Type | Ofsted | Distance |
|---|---|---|---|
| Ambitious College | Special Post 16 Institution | Good | 0.35 KM |
| The Triangle Centre | Children's Centre | 0.80 KM | |
| Earlsmead Primary School | Community School | Good | 0.83 KM |
| Earlsmead Children'S Centre | Children's Centre | 0.83 KM | |
| Seven Sisters Primary School | Community School | Good | 0.83 KM |
Images
Nearby Streets
| Name | Average Price | Average Sqft | Distance |
|---|---|---|---|
| Portland Place | £ 325,000 | 0 | 0.00 KM |
| Houghton Road | £ 0 | 0 | 0.00 KM |
| A10 | £ 0 | 0 | 0.00 KM |
| Lawrence Road | £ 471,875 | 0 | 0.00 KM |
| Fairweather Close | £ 0 | 0 | 0.00 KM |
Nearby Transport
| Name | NLC | TLC | Distance |
|---|---|---|---|
| Seven Sisters | 6931 | SVS | 0.43 KM |
| South Tottenham | 7404 | STO | 0.75 KM |
| Bruce Grove | 6958 | BCV | 1.08 KM |
| Stamford Hill | 6968 | SMH | 1.30 KM |
| Tottenham Hale | 6951 | TOM | 1.75 KM |
Nearby Listings
| Address | Price | Type | Score | Distance |
|---|---|---|---|---|
| Beaconsfield Road, Seven Sisters, N15 | £ 380,000 | BUY | 7 / 10 | 0.00 KM |
| Beaconsfield Road, London, N15 | £ 700,000 | BUY | Unknown | 0.00 KM |
| Beaconsfield Road, London | £ 349,950 | BUY | 7 / 10 | 0.01 KM |
| Beaconsfield Road, London, N15 | £ 950,000 | BUY | Unknown | 0.01 KM |
| Beaconsfield Road, London | £ 649,950 | BUY | 6 / 10 | 0.05 KM |
Nearby Properties
| Address | Price | Distance |
|---|---|---|
| 85 Beaconsfield Road | £ 250,000 | 0.00 KM |
| 61 Beaconsfield Road | £ 342,000 | 0.00 KM |
| 67 Beaconsfield Road | £ 545,000 | 0.00 KM |
| 21 Beaconsfield Road | £ 505,000 | 0.00 KM |
| 75 Beaconsfield Road | £ 585,000 | 0.00 KM |