Winkworth says ..
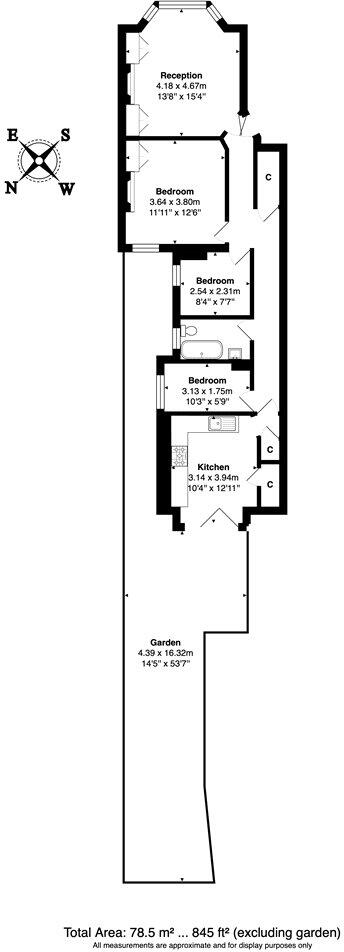
A stunning three bedroom garden flat in this ever popular street close to Elmwood Tennis Club and the amenities of College Road.
Property Oracle says ..
Therefore, we give this property 7 / 10. *Disclaimer: This is our option and does constitute a recommendation or financial advice. Do your own research. *
- Price
- 8
- Condition
- 8
- Location
- 8
- Land
- 7
- Bedrooms
- 3
- Bathrooms
- 1
- Sqft (est)
- 844.97
The heatmap indicates the level of crime in the area. The color of the heatmap indicates the crime severity and recency.
Metrics Year-on-Year
- Average area value
- 745,000.00 £Decreased by 11.71 %
- Est sale value
- 646,402.05 £Decreased by 15.09 %
- Average area rental value
- 2,378.00 £/moIncreased by 14.49 %
- Est letting value
- 1,689.94 £/moUnchanged by 0.00 %
- Est rental Yield
- 3.83 %Increased by 29.83 %
- Crime Rate
- 3.00 %Unchanged by 0.00 %
from 843,775.00 £
from 761,317.97 £
from 2,077.00 £/mo
from 1,689.94 £/mo
from 2.95 %
from 3.00 %
Agent Activity
Winkworth created the listing.
Nearby Schools
| Name | Type | Ofsted | Distance |
|---|---|---|---|
| Kenmont Primary School | Community School | Good | 0.41 KM |
| Capital City Academy | Academy Sponsor Led | Good | 0.42 KM |
| Furness Primary School | Academy Converter | Good | 0.42 KM |
| Newman Catholic College | Voluntary Aided School | Good | 0.49 KM |
| Treetops Children'S Centre | Children's Centre | 0.50 KM |
Images
Nearby Streets
| Name | Average Price | Average Sqft | Distance |
|---|---|---|---|
| Wrottesley Road | £ 0 | 0 | 0.00 KM |
| Wrottesley Road | £ 0 | 0 | 0.00 KM |
| Wrottesley Road | £ 0 | 0 | 0.00 KM |
| Wrottesley Road | £ 0 | 0 | 0.00 KM |
| Wrottesley Road | £ 0 | 0 | 0.00 KM |
Nearby Transport
| Name | NLC | TLC | Distance |
|---|---|---|---|
| Willesden Junction | 1457 | WIJ | 1.07 KM |
| Kensal Green | 1447 | KNL | 1.26 KM |
| Kensal Rise | 1448 | KNR | 1.71 KM |
| Harlesden | 1521 | HDN | 2.47 KM |
| Brondesbury Park | 1438 | BSP | 2.85 KM |
Nearby Listings
| Address | Price | Type | Score | Distance |
|---|---|---|---|---|
| Monson Road, London, NW10 | £ 825,000 | BUY | Unknown | 0.00 KM |
| Monson Road, London, NW10 | £ 699,950 | BUY | 7 / 10 | 0.00 KM |
| Furness Road, London, NW10 | £ 1,850,000 | BUY | 8 / 10 | 0.05 KM |
| Monson Road, London, NW10 | £ 639,950 | BUY | 6 / 10 | 0.07 KM |
| Furness Road, Kensal Rise, NW10 | £ 650,000 | BUY | 8 / 10 | 0.08 KM |
Nearby Properties
| Address | Price | Distance |
|---|---|---|
| 22a Monson Road | £ 610,000 | 0.01 KM |
| 40 Monson Road | £ 850,000 | 0.01 KM |
| 30b Monson Road | £ 685,000 | 0.01 KM |
| 30a Monson Road | £ 610,000 | 0.01 KM |
| 30 Monson Road | £ 220,000 | 0.01 KM |