Cooks Lane, West Cranmore, Shepton Mallet, Somerset, BA4
By McAllisters
£ 275,000
Reviews
3 out of 5 stars
McAllisters says ..
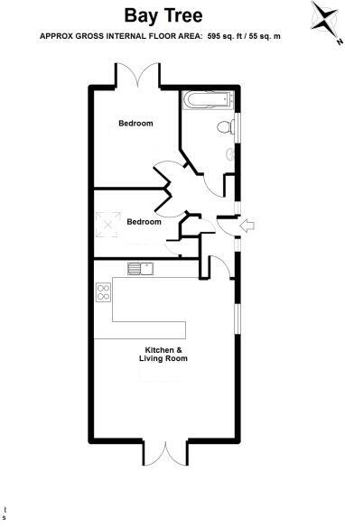
*A stylish, single-storey two-bedroom property* Large lounge/dining/kitchen with French doors onto an enclosed patio garden*Off-road parking*No onward chain.
Property Oracle says ..
This property is located in West Cranmore, a village near Shepton Mallet, Somerset. The area benefits from nearby schools such as Oakfield Academy and Trinity Church of England First School, and is within reach of Frome train station, providing transport links. While the property itself is small (595 sqft) and has a small plot size, the images suggest it is in good condition and has a modern feel. The list price of £275,000 is significantly lower than the average house price in the area (£419,163), and also lower than many nearby properties. However, the lack of information on the property type and the small size should be taken into account when considering value for money. The property seems to benefit from a small garden.
Therefore, we give this property 6 / 10. *Disclaimer: This is our option and does constitute a recommendation or financial advice. Do your own research. *
- Price
- 7
- Condition
- 8
- Location
- 7
- Land
- 3
- Bedrooms
- 0
- Bathrooms
- 0
- Sqft (est)
- 595.00
The heatmap indicates the level of crime in the area. The color of the heatmap indicates the crime severity and recency.
Metrics Year-on-Year
- Average area value
- 356,500.00 £Decreased by 7.90 %
- Est sale value
- 261,205.00 £Increased by 48.31 %
- Average area rental value
- 795.00 £/moDecreased by 21.44 %
- Est letting value
- 0.00 £/mo
- Est rental Yield
- 2.68 %Decreased by 14.65 %
- Crime Rate
- 5.00 %Unchanged by 0.00 %
Agent Activity
McAllisters created the listing.
Nearby Schools
| Name | Type | Ofsted | Distance |
|---|---|---|---|
| Oakfield Academy | Academy Converter | Requires improvement | 1.11 KM |
| Trinity Church Of England First School | Voluntary Controlled School | Good | 1.12 KM |
| Critchill Special School | Academy Special Converter | 1.13 KM | |
| Wessex Lodge School | Other Independent Special School | Good | 1.18 KM |
| Avanti Park School | Free Schools | 1.22 KM |
Images
Nearby Streets
| Name | Average Price | Average Sqft | Distance |
|---|---|---|---|
| Marston Road | £ 785,000 | 0 | 0.00 KM |
| Whitemill Lane | £ 0 | 0 | 0.00 KM |
| Oakfield Road | £ 0 | 0 | 0.00 KM |
| St Aldhelm's Close | £ 0 | 0 | 0.00 KM |
| Mount Pleasant | £ 450,000 | 0 | 0.00 KM |
Nearby Transport
| Name | NLC | TLC | Distance |
|---|---|---|---|
| Frome | 5707 | FRO | 2.61 KM |
Nearby Listings
| Address | Price | Type | Score | Distance |
|---|---|---|---|---|
| Cooks Lane, West Cranmore, Shepton Mallet, Somerset, BA4 | £ 275,000 | BUY | 6 / 10 | 0.00 KM |
| Cranmore View, Frome, Somerset, BA11 | £ 287,500 | BUY | 6 / 10 | 0.04 KM |
| Marston Mead, Frome | £ 300,000 | BUY | 7 / 10 | 0.11 KM |
| Marston Lane, Frome | £ 280,000 | BUY | 6 / 10 | 0.12 KM |
| Georgian Court, Frome, BA11 | £ 365,000 | BUY | 6 / 10 | 0.13 KM |
Nearby Properties
| Address | Price | Distance |
|---|---|---|
| 31 Cranmore View | £ 215,000 | 0.00 KM |
| 28 Cranmore View | £ 165,000 | 0.00 KM |
| Cerney House | £ 377,500 | 0.00 KM |
| 6 Cranmore View | £ 147,760 | 0.00 KM |
| 33 Cranmore View | £ 200,000 | 0.00 KM |