Henry Adams says ..
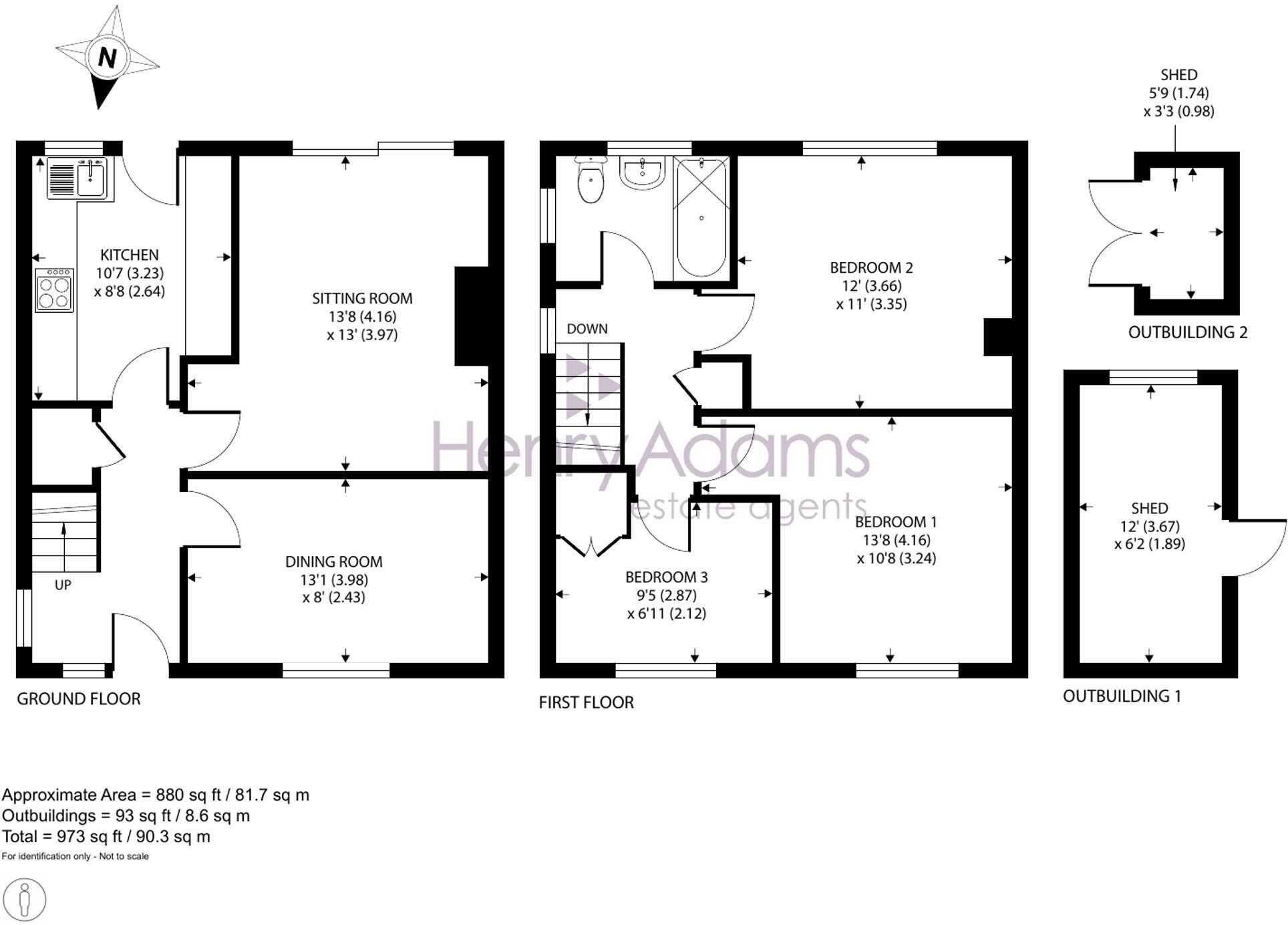
END OF TERRACE HOUSE situated in a popular and convenient location. Sitting room, dining room, fitted kitchen, THREE BEDROOMS, bathroom. SOUTH FACING rear garden. NO ONWARD CHAIN. EPC-C
Property Oracle says ..
Therefore, we give this property 7 / 10. *Disclaimer: This is our option and does constitute a recommendation or financial advice. Do your own research. *
- Price
- 8
- Condition
- 6
- Location
- 8
- Land
- 7
- Bedrooms
- 3
- Bathrooms
- 1
- Sqft (est)
- 720.97
The heatmap indicates the level of crime in the area. The color of the heatmap indicates the crime severity and recency.
Metrics Year-on-Year
- Average area value
- 357,500.00 £Decreased by 26.13 %
- Est sale value
- 551,542.05 £Increased by 88.42 %
- Average area rental value
- 1,429.00 £/moDecreased by 5.74 %
- Est letting value
- 2,162.91 £/moIncreased by 200.00 %
- Est rental Yield
- 4.80 %Increased by 27.66 %
- Crime Rate
- 1.00 %Unchanged by 0.00 %
from 483,936.00 £
from 292,713.82 £
from 1,516.00 £/mo
from 720.97 £/mo
from 3.76 %
from 1.00 %
Agent Activity
Henry Adams created the listing.
Nearby Schools
| Name | Type | Ofsted | Distance |
|---|---|---|---|
| St Anthony'S School | Community Special School | Outstanding | 0.43 KM |
| Jessie Younghusband Primary School | Community School | Good | 0.46 KM |
| St. Joseph'S Infant School | Academy Converter | 0.47 KM | |
| St. Joseph'S Cofe Junior School | Academy Sponsor Led | Requires improvement | 0.57 KM |
| Parklands Community Primary School | Community School | Good | 0.62 KM |
Images
Nearby Streets
| Name | Average Price | Average Sqft | Distance |
|---|---|---|---|
| Parchment Street | £ 0 | 0 | 0.00 KM |
| High Street | £ 0 | 0 | 0.00 KM |
| Exeter Road | £ 0 | 0 | 0.00 KM |
| Saint Paul's Road | £ 275,000 | 0 | 0.00 KM |
| Joy Lane | £ 0 | 0 | 0.00 KM |
Nearby Transport
| Name | NLC | TLC | Distance |
|---|---|---|---|
| Chichester | 5255 | CCH | 1.37 KM |
| Fishbourne (Sussex) | 5261 | FSB | 3.21 KM |
| Bosham | 5254 | BOH | 6.75 KM |
Nearby Listings
| Address | Price | Type | Score | Distance |
|---|---|---|---|---|
| Duncan Road, Chichester, PO19 | £ 395,000 | BUY | 7 / 10 | 0.00 KM |
| Cedar Drive, Chichester, West Sussex, PO19 | £ 565,000 | BUY | 7 / 10 | 0.09 KM |
| St. Pauls Road, Chichester, PO19 | £ 550,000 | BUY | 7 / 10 | 0.14 KM |
| Walnut Avenue, Chichester | £ 450,000 | BUY | 6 / 10 | 0.15 KM |
| Walnut Avenue, Chichester | £ 550,000 | BUY | 7 / 10 | 0.17 KM |
Nearby Properties
| Address | Price | Distance |
|---|---|---|
| 21 Duncan Road | £ 217,500 | 0.10 KM |
| 59 Duncan Road | £ 249,950 | 0.10 KM |
| 63 Duncan Road | £ 210,000 | 0.10 KM |
| 65 Duncan Road | £ 185,000 | 0.10 KM |
| 35 Duncan Road | £ 271,000 | 0.10 KM |