Greenbank Road, Darlington, County Durham, DL3
By Everbest Properties
£ 190,000
Reviews
3 out of 5 stars
Everbest Properties says ..
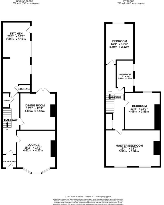
Beautiful 3 bedroom terraced house with two reception rooms , guest WC and rear yard. Contact us now to arrange your viewing!
Property Oracle says ..
This is a three-bedroom terraced property located in Pierremont, Darlington. The property benefits from a modern kitchen and bathroom, but some rooms show signs of wear and tear, indicating a need for some renovation. It has a garden, although the size is not specified. The location offers reasonable access to local amenities, schools, and transportation. The asking price of £190,000 seems a bit high compared to the average property price in the area, but the property’s features and recent upgrades may justify the premium.
Therefore, we give this property 6 / 10. *Disclaimer: This is our option and does constitute a recommendation or financial advice. Do your own research. *
- Price
- 6
- Condition
- 6
- Location
- 7
- Land
- 5
- Bedrooms
- 3
- Bathrooms
- 1
The heatmap indicates the level of crime in the area. The color of the heatmap indicates the crime severity and recency.
Metrics Year-on-Year
- Average area value
- 102,000.00 £Decreased by 27.66 %
- Average area rental value
- 759.00 £/moIncreased by 11.45 %
- Est rental Yield
- 8.93 %Increased by 53.97 %
- Crime Rate
- 6.00 %Unchanged by 0.00 %
Agent Activity
Everbest Properties created the listing.
Nearby Schools
| Name | Type | Ofsted | Distance |
|---|---|---|---|
| George Dent Nursery School | Local Authority Nursery School | Outstanding | 0.27 KM |
| Reid Street Primary School | Academy Converter | Good | 0.28 KM |
| Queen Elizabeth Sixth Form College | Further Education | Good | 0.68 KM |
| Corporation Road Community Primary School | Academy Sponsor Led | Requires improvement | 0.70 KM |
| Mcnay Street Sure Start Children'S Centre | Children's Centre | 1.00 KM |
Images
Nearby Streets
| Name | Average Price | Average Sqft | Distance |
|---|---|---|---|
| Warren Street | £ 0 | 0 | 0.00 KM |
| Rosebery Street | £ 77,475 | 0 | 0.00 KM |
| Mercia Court | £ 0 | 0 | 0.00 KM |
| Barlby Drive | £ 0 | 0 | 0.00 KM |
| West Powlett Street | £ 0 | 0 | 0.00 KM |
Nearby Transport
| Name | NLC | TLC | Distance |
|---|---|---|---|
| North Road (Darlington) | 7895 | NRD | 1.11 KM |
| Darlington | 7877 | DAR | 2.08 KM |
| Heighington | 7887 | HEI | 7.61 KM |
| Newton Aycliffe | 7834 | NAY | 9.64 KM |
Nearby Listings
| Address | Price | Type | Score | Distance |
|---|---|---|---|---|
| Greenbank Road, Darlington, County Durham, DL3 | £ 190,000 | BUY | 6 / 10 | 0.00 KM |
| Greenbank Road, Darlington | £ 149,000 | BUY | Unknown | 0.04 KM |
| Greenbank Road, Darlington | £ 150,000 | BUY | 5 / 10 | 0.06 KM |
| Greenbank Road, Darlington | £ 120,000 | BUY | 6 / 10 | 0.06 KM |
| Greenbank Road, Darlington | £ 110,000 | BUY | 6 / 10 | 0.12 KM |
Nearby Properties
| Address | Price | Distance |
|---|---|---|
| 171 Greenbank Road | £ 78,500 | 0.09 KM |
| 161 Greenbank Road | £ 118,000 | 0.09 KM |
| 157 Greenbank Road | £ 124,999 | 0.09 KM |
| 175 Greenbank Road | £ 124,999 | 0.09 KM |
| 159 Greenbank Road | £ 104,000 | 0.09 KM |