KE
Sovereign Close, Ruislip, HA4
By Kearns Residential
£ 950,000
Reviews
3 out of 5 stars
Kearns Residential says ..
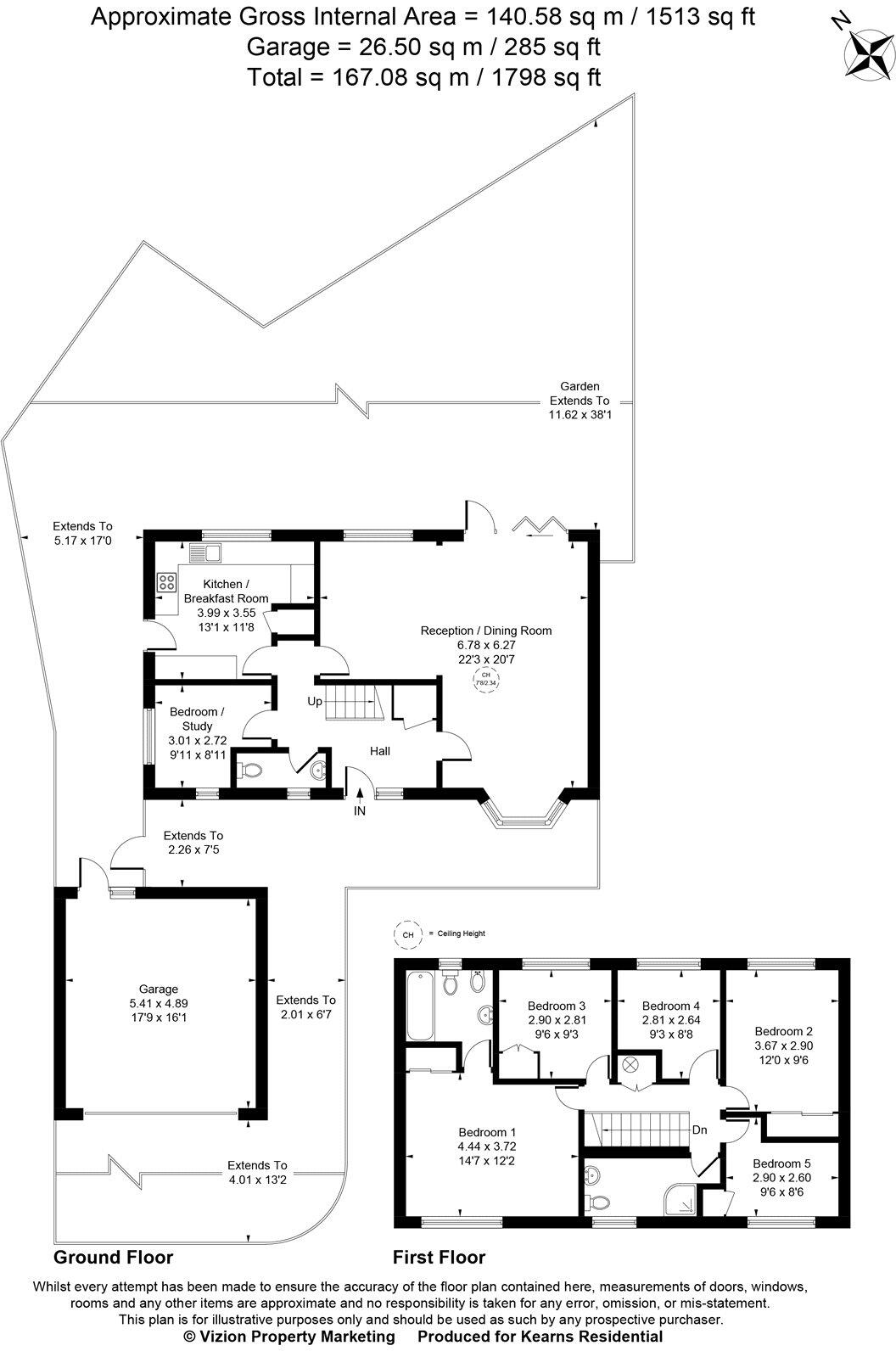
Kearns Residential proudly present this five-bedroom detached home right in the heart of Ruislip at Sovereign Close. Located in a quiet and established residential area, this property offers a perfect balance of suburban peace with easy access to local amenities, schools, and transport links. Ide...
Property Oracle says ..
Therefore, we give this property 7 / 10. *Disclaimer: This is our option and does constitute a recommendation or financial advice. Do your own research. *
- Price
- 6
- Condition
- 8
- Location
- 7
- Land
- 7
- Bedrooms
- 5
- Bathrooms
- 2
- Sqft (est)
- 1,798.00
The heatmap indicates the level of crime in the area. The color of the heatmap indicates the crime severity and recency.
Metrics Year-on-Year
- Average area value
- 610,000.00 £Decreased by 0.91 %
- Est sale value
- 945,748.00 £Increased by 8.23 %
- Average area rental value
- 1,871.00 £/moIncreased by 2.13 %
- Est letting value
- 1,798.00 £/moUnchanged by 0.00 %
- Est rental Yield
- 3.68 %Increased by 3.08 %
- Crime Rate
- 39.00 %Unchanged by 0.00 %
from 615,577.00 £
from 873,828.00 £
from 1,832.00 £/mo
from 1,798.00 £/mo
from 3.57 %
from 39.00 %
Agent Activity
Kearns Residential created the listing.
Nearby Schools
| Name | Type | Ofsted | Distance |
|---|---|---|---|
| Sacred Heart Catholic Primary School | Voluntary Aided School | Outstanding | 0.57 KM |
| Bishop Winnington-Ingram Cofe Primary School | Voluntary Aided School | Good | 1.17 KM |
| Warrender Primary School | Community School | Good | 1.29 KM |
| Ruislip Gardens Primary School | Community School | Good | 1.35 KM |
| Pentland Field School | Free Schools Special | Good | 1.71 KM |
Images
Nearby Streets
| Name | Average Price | Average Sqft | Distance |
|---|---|---|---|
| Pond Green | £ 614,990 | 981 | 0.00 KM |
| Glenalla Road | £ 800,000 | 0 | 0.00 KM |
| Pembroke Road | £ 314,000 | 0 | 0.00 KM |
| Vicarage Close | £ 1,100,000 | 0 | 0.00 KM |
| Windmill Hill | £ 0 | 0 | 0.00 KM |
Nearby Transport
| Name | NLC | TLC | Distance |
|---|---|---|---|
| West Ruislip | 3059 | WRU | 1.43 KM |
| South Ruislip | 3057 | SRU | 3.38 KM |
| Northolt Park | 1478 | NLT | 7.47 KM |
| Hatch End | 1398 | HTE | 7.47 KM |
| Carpenders Park | 1442 | CPK | 7.55 KM |
Nearby Listings
| Address | Price | Type | Score | Distance |
|---|---|---|---|---|
| Sovereign Close, Ruislip, HA4 | £ 950,000 | BUY | 7 / 10 | 0.00 KM |
| Sovereign Close, Ruislip, HA4 | £ 950,000 | BUY | Unknown | 0.02 KM |
| Poplars Close, Ruislip, Middlesex | £ 1,100,000 | BUY | Unknown | 0.08 KM |
| Kingsend, Ruislip | £ 1,100,000 | BUY | Unknown | 0.09 KM |
| Regency Drive | £ 350,000 | BUY | Unknown | 0.09 KM |
Nearby Properties
| Address | Price | Distance |
|---|---|---|
| 5 Poplars Close | £ 825,000 | 0.08 KM |
| 4 Poplars Close | £ 595,000 | 0.08 KM |
| 14 Poplars Close | £ 220,000 | 0.08 KM |
| 1 Poplars Close | £ 635,000 | 0.08 KM |
| 12 Poplars Close | £ 220,000 | 0.08 KM |