Asset Estates says ..
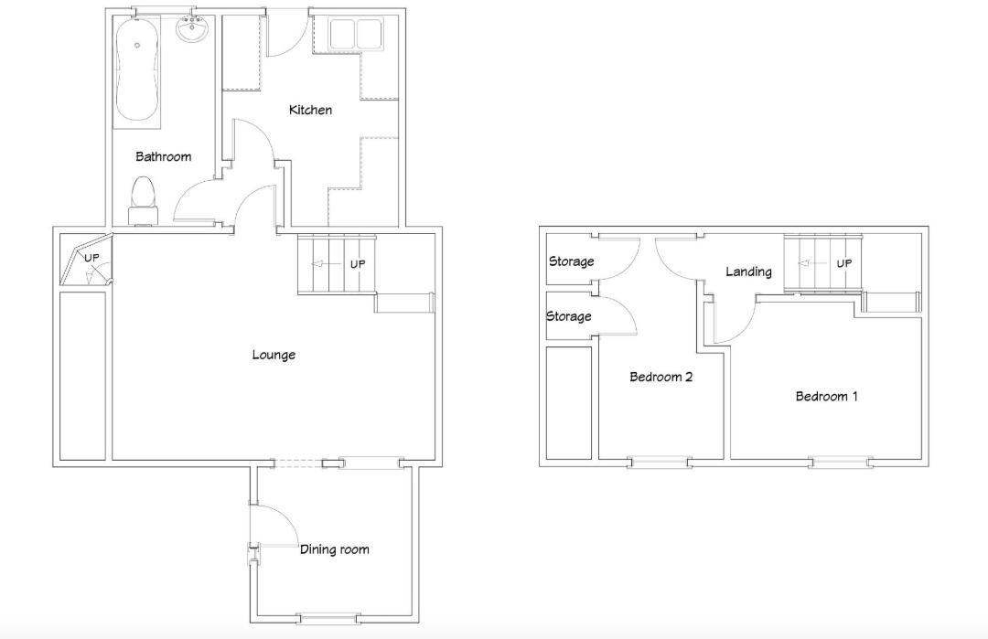
** VIDEO TOUR ** EPC: D ** We are pleased to advertise for sale this recently renovated quirky cottage situated on Parrot Row, a cul-de-sac located within Blaina. This impressive property briefly comprises; dining room with oak parquet flooring, open living room, newly fitt...
Property Oracle says ..
Therefore, we give this property 7 / 10. *Disclaimer: This is our option and does constitute a recommendation or financial advice. Do your own research. *
- Price
- 8
- Condition
- 8
- Location
- 7
- Land
- 6
- Bedrooms
- 2
- Bathrooms
- 1
- Sqft (est)
- 700.00
The heatmap indicates the level of crime in the area. The color of the heatmap indicates the crime severity and recency.
Metrics Year-on-Year
- Average area value
- 300,000.00 £Decreased by 22.28 %
- Est sale value
- 296,100.00 £Decreased by 3.86 %
- Average area rental value
- 1,073.00 £/moDecreased by 13.47 %
- Est letting value
- 700.00 £/moUnchanged by 0.00 %
- Est rental Yield
- 4.29 %Increased by 11.43 %
- Crime Rate
- 9.00 %Unchanged by 0.00 %
from 386,017.00 £
from 308,000.00 £
from 1,240.00 £/mo
from 700.00 £/mo
from 3.85 %
from 9.00 %
Agent Activity
Asset Estates marked this listing as sold.
Asset Estates created the listing.
Nearby Schools
| Name | Type | Ofsted | Distance |
|---|---|---|---|
| Coed -Y- Garn Primary School | Welsh Establishment | 0.02 KM | |
| Ystruth Primary | Welsh Establishment | 1.50 KM | |
| St Illtyd'S | Welsh Establishment | 1.89 KM | |
| Blaen-Y-Cwm C.P. School | Welsh Establishment | 2.26 KM | |
| St Mary'S Roman Catholic - Brynmawr | Welsh Establishment | 2.43 KM |
Images
Nearby Streets
| Name | Average Price | Average Sqft | Distance |
|---|---|---|---|
| Highfield Cottages | £ 0 | 0 | 0.00 KM |
| Attlee Road | £ 0 | 0 | 0.00 KM |
| Coalbrook Valecourt | £ 159,995 | 0 | 0.00 KM |
| Attlee Road | £ 100,000 | 0 | 0.00 KM |
| Caddick's Row | £ 0 | 0 | 0.00 KM |
Nearby Transport
| Name | NLC | TLC | Distance |
|---|---|---|---|
| Ebbw Vale Parkway | 9915 | EBV | 4.21 KM |
| Ebbw Vale Town | 3628 | EBB | 4.30 KM |
| Llanhilleth | 9916 | LTH | 9.08 KM |
Nearby Listings
| Address | Price | Type | Score | Distance |
|---|---|---|---|---|
| Parrot Row, Abertillery | £ 145,950 | BUY | 7 / 10 | 0.00 KM |
| Bethel Place, Nantyglo, NP23 | £ 430,000 | BUY | 8 / 10 | 0.15 KM |
| Lower Coedcae, Nantyglo, NP23 | £ 425,000 | BUY | 8 / 10 | 0.17 KM |
| Bethel Place, Ebbw Vale | £ 270,000 | BUY | 7 / 10 | 0.18 KM |
| Queen Street, Ebbw Vale, NP23 | £ 230,000 | BUY | 6 / 10 | 0.23 KM |
Nearby Properties
| Address | Price | Distance |
|---|---|---|
| 11 Parrot Row | £ 119,000 | 0.02 KM |
| 5 Parrot Row | £ 22,000 | 0.02 KM |
| 10 Parrot Row | £ 105,000 | 0.02 KM |
| 166 High Street | £ 55,000 | 0.20 KM |
| Ty Heulog | £ 285,000 | 0.20 KM |