Ocean says ..
A sweet two-bedroom terraced home located in the BS3 area is offered to the market with no onward chain.
Property Oracle says ..
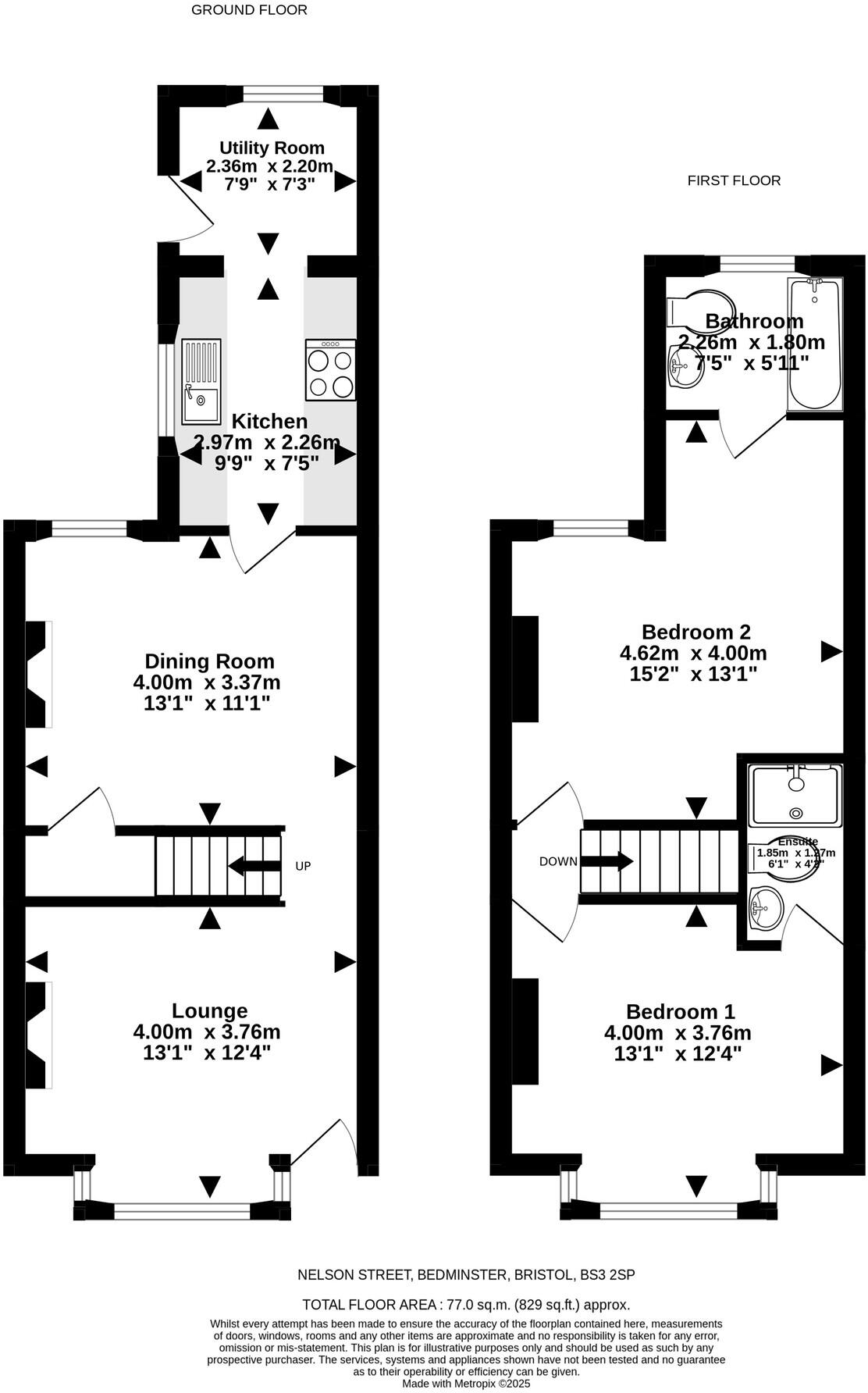
This property is a 2 bedroom, 2 bathroom house located on Nelson Street in Bedminster, Bristol. The property is listed at £335,000 and has a plot size of 0.00 sqft. The average price for properties in the area is £373,364 with an average price per sqft of £443.00. The property appears to be in reasonable condition, needing some cosmetic updates but no major renovations. It benefits from a small rear garden. The location is convenient, with Parson Street train station within walking distance and several primary schools nearby. Given the condition, location, and lack of significant land, the list price appears to be in line with the market average, though slightly below.
Therefore, we give this property 6 / 10. *Disclaimer: This is our option and does constitute a recommendation or financial advice. Do your own research. *
- Price
- 7
- Condition
- 7
- Location
- 8
- Land
- 3
- Bedrooms
- 2
- Bathrooms
- 2
- Sqft (est)
- 828.82
The heatmap indicates the level of crime in the area. The color of the heatmap indicates the crime severity and recency.
Metrics Year-on-Year
- Average area value
- 331,250.00 £Decreased by 14.00 %
- Est sale value
- 426,842.30 £Increased by 22.91 %
- Average area rental value
- 1,534.00 £/moDecreased by 7.03 %
- Est letting value
- 1,657.64 £/moIncreased by 100.00 %
- Est rental Yield
- 5.56 %Increased by 8.17 %
- Crime Rate
- 4.00 %Unchanged by 0.00 %
Agent Activity
Ocean created the listing.
Nearby Schools
| Name | Type | Ofsted | Distance |
|---|---|---|---|
| Luckwell Primary School | Academy Sponsor Led | 0.60 KM | |
| Parson Street Primary School | Academy Converter | Requires improvement | 0.89 KM |
| Cheddar Grove Primary School | Academy Converter | 0.91 KM | |
| Compass Point: South Street School & Children'S Centre | Children's Centre | 1.06 KM | |
| Compass Point Primary School | Academy Converter | 1.06 KM |
Images
Nearby Streets
| Name | Average Price | Average Sqft | Distance |
|---|---|---|---|
| Old School Lane | £ 308,333 | 0 | 0.00 KM |
| Trafalgar Terrace | £ 335,000 | 0 | 0.00 KM |
| Longmoor Road | £ 500,000 | 0 | 0.00 KM |
| Greenmarsh Lane | £ 0 | 0 | 0.00 KM |
| Kingdom View | £ 0 | 0 | 0.00 KM |
Nearby Transport
| Name | NLC | TLC | Distance |
|---|---|---|---|
| Parson Street | 3246 | PSN | 0.62 KM |
| Bedminster | 3245 | BMT | 2.29 KM |
| Clifton Down | 3202 | CFN | 3.62 KM |
| Bristol Temple Meads | 3231 | BRI | 4.01 KM |
| Redland | 3247 | RDA | 4.33 KM |
Nearby Listings
| Address | Price | Type | Score | Distance |
|---|---|---|---|---|
| Nelson Street, Bedminster, BS3 2SP | £ 325,000 | BUY | 6 / 10 | 0.00 KM |
| Nelson Street, Bedminster, Bristol | £ 350,000 | BUY | 6 / 10 | 0.02 KM |
| South Liberty Lane, Bedminster, Bristol, BS3 | £ 210,000 | BUY | 5 / 10 | 0.05 KM |
| South Liberty Lane, Bedminster, Bristol | £ 335,000 | BUY | Unknown | 0.06 KM |
| Hedgers Close, Bristol, BS3 | £ 260,000 | BUY | 5 / 10 | 0.06 KM |
Nearby Properties
| Address | Price | Distance |
|---|---|---|
| 5 Nelson Street | £ 169,000 | 0.03 KM |
| 26 Nelson Street | £ 180,000 | 0.03 KM |
| 28 Nelson Street | £ 279,000 | 0.03 KM |
| 31 Nelson Street | £ 272,000 | 0.03 KM |
| 30 Nelson Street | £ 188,000 | 0.03 KM |