Caroline Street, Preston
By Attain Properties
£ 110,000
Reviews
3 out of 5 stars
Attain Properties says ..
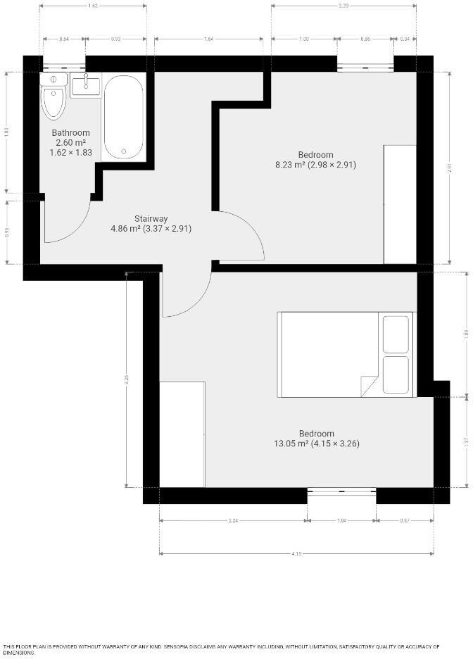
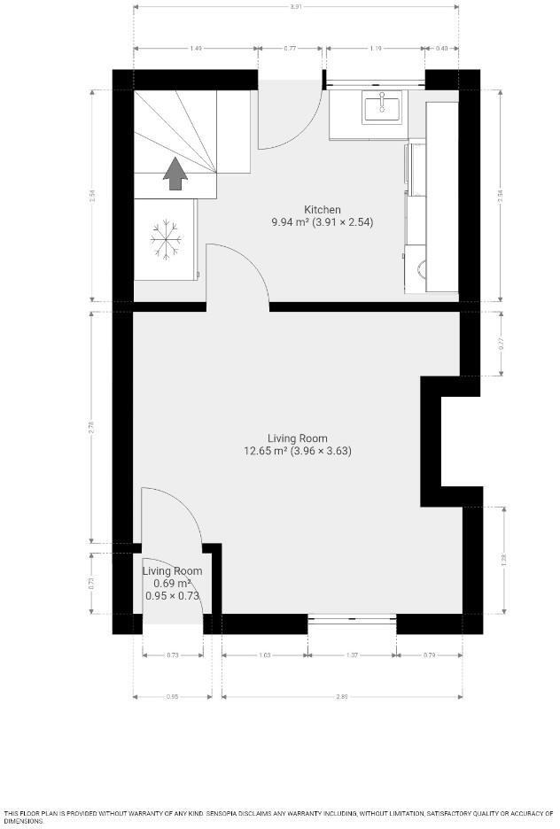
Nestled in the heart of Preston on Caroline Street, this charming end-terrace house presents an excellent opportunity for investors seeking a property with a strong rental yield. Spanning 559 square feet, the home features a welcoming reception room, two well-proportioned bedrooms, and a modern b...
Property Oracle says ..
This is a two-bedroom end-of-terrace property located in the St Matthew’s area of Preston. The property benefits from its proximity to local schools and transportation links. While the property appears to be in generally good condition, some minor cosmetic improvements could be beneficial. It includes a small rear garden. The asking price of £110,000 appears reasonable when compared to the average property price in the area, although the property is significantly smaller than average.
Therefore, we give this property 6 / 10. *Disclaimer: This is our option and does constitute a recommendation or financial advice. Do your own research. *
- Price
- 8
- Condition
- 6
- Location
- 6
- Land
- 5
- Bedrooms
- 2
- Bathrooms
- 1
- Sqft (est)
- 250.58
The heatmap indicates the level of crime in the area. The color of the heatmap indicates the crime severity and recency.
Metrics Year-on-Year
- Average area value
- 308,182.00 £Increased by 29.01 %
- Est sale value
- 89,457.06 £Increased by 74.15 %
- Average area rental value
- 811.00 £/moDecreased by 5.59 %
- Est letting value
- 0.00 £/mo
- Est rental Yield
- 3.16 %Decreased by 26.85 %
- Crime Rate
- 18.00 %Unchanged by 0.00 %
Agent Activity
Attain Properties created the listing.
Nearby Schools
| Name | Type | Ofsted | Distance |
|---|---|---|---|
| St Joseph'S Catholic Primary School, Preston | Voluntary Aided School | Good | 0.20 KM |
| Ribbleton Avenue Infant School | Community School | Outstanding | 0.64 KM |
| Ribbleton Avenue Methodist Junior School | Voluntary Controlled School | Good | 0.68 KM |
| Olive School, Preston | Free Schools | Outstanding | 0.92 KM |
| Eden Boys' School, Preston | Free Schools | Outstanding | 0.92 KM |
Images
Nearby Streets
| Name | Average Price | Average Sqft | Distance |
|---|---|---|---|
| Cuttle Street | £ 120,000 | 0 | 0.00 KM |
| Lonsdale Road | £ 0 | 0 | 0.00 KM |
| Salisbury Street | £ 0 | 0 | 0.00 KM |
| St Mary's Close | £ 45,000 | 0 | 0.00 KM |
| Poynter Street | £ 0 | 0 | 0.00 KM |
Nearby Transport
| Name | NLC | TLC | Distance |
|---|---|---|---|
| Preston (Lancs) | 2753 | PRE | 3.49 KM |
| Bamber Bridge | 2561 | BMB | 4.46 KM |
| Lostock Hall | 2689 | LOH | 4.50 KM |
| Leyland | 2710 | LEY | 7.26 KM |
Nearby Listings
| Address | Price | Type | Score | Distance |
|---|---|---|---|---|
| Caroline Street, Preston | £ 110,000 | BUY | 6 / 10 | 0.00 KM |
| 5 Skeffington Road, Preston, Lancashire, PR1 5UP | £ 75,000 | BUY | 5 / 10 | 0.10 KM |
| Scotforth Road, Preston | £ 100,000 | BUY | 4 / 10 | 0.18 KM |
| Great Townley Street, Preston, Lancashire, PR1 | £ 110,000 | BUY | 5 / 10 | 0.18 KM |
| Rutland Street, Preston | £ 120,000 | BUY | 5 / 10 | 0.19 KM |
Nearby Properties
| Address | Price | Distance |
|---|---|---|
| 9 Rigby Street | £ 50,000 | 0.00 KM |
| 21 Rigby Street | £ 41,000 | 0.00 KM |
| 10 Rigby Street | £ 51,000 | 0.00 KM |
| 22 Rigby Street | £ 81,000 | 0.00 KM |
| 4 Rigby Street | £ 70,000 | 0.00 KM |