Marriott Vernon says ..
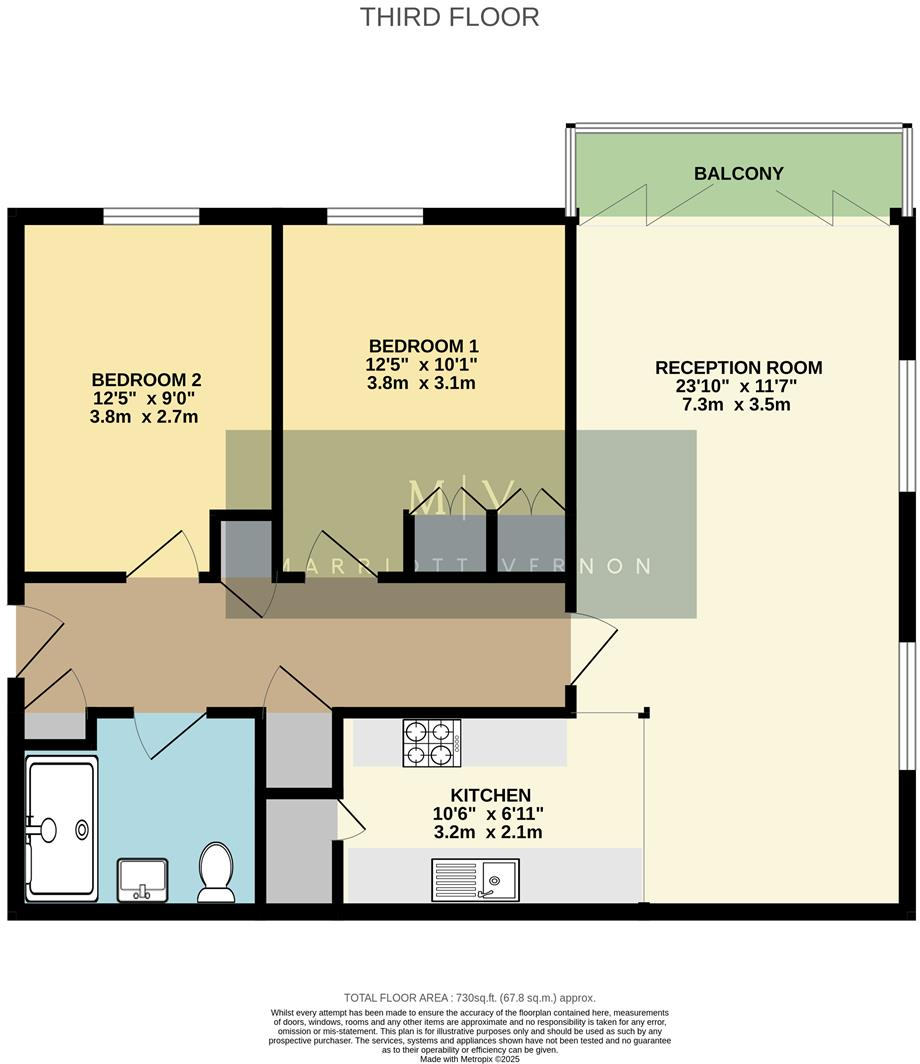
***Guide Price £300,000-£325,000*** Marriott Vernon present to the market this stunning two bedroom third floor apartment with private balcony, allocated parking and communal gardens, superbly situated on the highly sought after Park Hill development just a short walk from East Croydon stat...
Property Oracle says ..
Therefore, we give this property 6 / 10. *Disclaimer: This is our option and does constitute a recommendation or financial advice. Do your own research. *
- Price
- 7
- Condition
- 8
- Location
- 7
- Land
- 3
- Bedrooms
- 2
- Bathrooms
- 1
- Sqft (est)
- 729.79
The heatmap indicates the level of crime in the area. The color of the heatmap indicates the crime severity and recency.
Metrics Year-on-Year
- Average area value
- 375,625.00 £Decreased by 1.02 %
- Est sale value
- 329,135.29 £Increased by 1.58 %
- Average area rental value
- 1,910.00 £/moIncreased by 8.65 %
- Est letting value
- 1,459.58 £/moUnchanged by 0.00 %
- Est rental Yield
- 6.10 %Increased by 9.71 %
- Crime Rate
- 2.00 %Unchanged by 0.00 %
from 379,478.00 £
from 324,026.76 £
from 1,758.00 £/mo
from 1,459.58 £/mo
from 5.56 %
from 2.00 %
Agent Activity
Marriott Vernon created the listing.
Nearby Schools
| Name | Type | Ofsted | Distance |
|---|---|---|---|
| Tunstall Nursery School And Children Centre | Children's Centre Linked Site | 0.54 KM | |
| Park Hill Infant School | Community School | Outstanding | 0.56 KM |
| Tunstall Nursery School | Local Authority Nursery School | Outstanding | 0.56 KM |
| Archbishop Tenison'S Cofe High School | Voluntary Aided School | Good | 0.58 KM |
| Park Hill Junior School | Academy Converter | Good | 0.59 KM |
Images
Nearby Streets
| Name | Average Price | Average Sqft | Distance |
|---|---|---|---|
| Siskin Court | £ 0 | 0 | 0.00 KM |
| Leafy Way | £ 325,000 | 0 | 0.00 KM |
| Blake Road | £ 0 | 0 | 0.00 KM |
| East India Way | £ 0 | 0 | 0.00 KM |
| Hunters Way | £ 0 | 0 | 0.00 KM |
Nearby Transport
| Name | NLC | TLC | Distance |
|---|---|---|---|
| East Croydon | 5355 | ECR | 0.88 KM |
| South Croydon | 5410 | SCY | 1.51 KM |
| West Croydon | 5411 | WCY | 2.01 KM |
| Selhurst | 5434 | SRS | 2.06 KM |
| Norwood Junction | 5376 | NWD | 2.81 KM |
Nearby Listings
| Address | Price | Type | Score | Distance |
|---|---|---|---|---|
| Turnpike Link, Croydon | £ 300,000 | BUY | 6 / 10 | 0.00 KM |
| Turnpike Link, Croydon | £ 350,000 | BUY | 5 / 10 | 0.00 KM |
| Turnpike Link, East Croydon, CR0 | £ 290,000 | BUY | 5 / 10 | 0.01 KM |
| Turnpike Link, Croydon, CR0 5NY | £ 575,000 | BUY | 6 / 10 | 0.03 KM |
| Turnpike Link, Addiscombe | £ 250,000 | BUY | Unknown | 0.04 KM |
Nearby Properties
| Address | Price | Distance |
|---|---|---|
| 177 Turnpike Link | £ 175,000 | 0.05 KM |
| 217 Turnpike Link | £ 470,000 | 0.05 KM |
| 221 Turnpike Link | £ 450,000 | 0.05 KM |
| 185 Turnpike Link | £ 210,500 | 0.05 KM |
| 191 Turnpike Link | £ 213,000 | 0.05 KM |