Old Penygarn, Pontypool, NP4
By Number One Real Estate
£ 250,000
Reviews
3 out of 5 stars
Number One Real Estate says ..
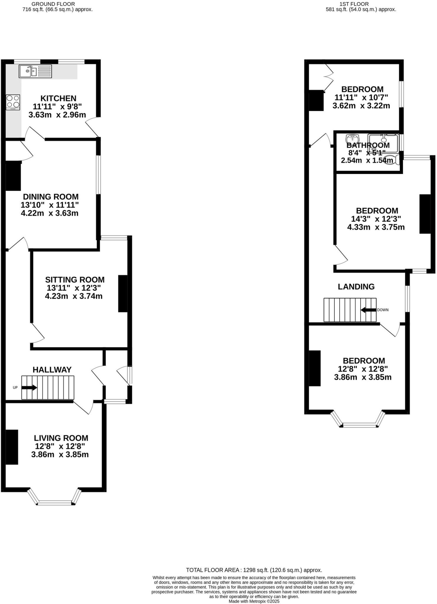
**NO CHAIN**SEMI-DETACHED PROPERTY**THREE DOUBLE BEDROOMS**THREE LARGE RECEPTION ROOMS**KITCHEN**BATHROOM**REAR GARDEN**LOVELY VIEWS TO FRONT**
Property Oracle says ..
The property is located in Old Penygarn, Pontypool, which is in the Torfaen area of Wales. It’s a semi-detached house with three bedrooms and one bathroom, and a total area of 1,298.13 square feet. The list price is £250,000.
The area has an average house price of £305,948, with an average price per square foot of £364. This property is slightly below the average price for the area, but considering its size, it’s priced competitively. Nearby properties show a range of prices, suggesting some variability within the immediate vicinity. The presence of several primary and secondary schools within a short distance is a positive aspect for families. The proximity to Pontypool and New Inn train station provides convenient access to public transportation.
Based on the provided images, the property appears to be in relatively good condition, although some modernisation might enhance its appeal. The kitchen and bathrooms show signs of age, but are functional. The property benefits from a small rear garden, which adds to its overall value. The garden is adequately sized for a property of this type.
Considering the property’s location, condition, and the size of the land, the list price of £250,000 appears reasonable in the context of the local market. The property offers a good balance of features and amenities for its price point. While some updating might be considered, the overall condition is acceptable. The presence of a garden is a definite advantage.
Therefore, we give this property 6 / 10. *Disclaimer: This is our option and does constitute a recommendation or financial advice. Do your own research. *
- Price
- 7
- Condition
- 7
- Location
- 7
- Land
- 4
- Bedrooms
- 3
- Bathrooms
- 1
- Sqft (est)
- 1,298.13
The heatmap indicates the level of crime in the area. The color of the heatmap indicates the crime severity and recency.
Metrics Year-on-Year
- Average area value
- 283,000.00 £Decreased by 21.70 %
- Est sale value
- 493,289.40 £Increased by 38.69 %
- Average area rental value
- 1,134.00 £/moIncreased by 19.24 %
- Est letting value
- 1,298.13 £/mo
- Est rental Yield
- 4.81 %Increased by 52.22 %
- Crime Rate
- 5.00 %Unchanged by 0.00 %
Agent Activity
Number One Real Estate created the listing.
Nearby Schools
| Name | Type | Ofsted | Distance |
|---|---|---|---|
| Penygarn Primary School | Welsh Establishment | 0.26 KM | |
| St Alban'S R.C. High School | Welsh Establishment | 0.62 KM | |
| Ysgol Gyfun Gwynllyw | Welsh Establishment | 0.79 KM | |
| George Street Primary School | Welsh Establishment | 1.02 KM | |
| West Monmouth Comprehensive School | Welsh Establishment | 1.28 KM |
Images
Nearby Streets
| Name | Average Price | Average Sqft | Distance |
|---|---|---|---|
| Old Penygarn | £ 250,000 | 0 | 0.00 KM |
| James Street | £ 0 | 0 | 0.00 KM |
| St David's Close | £ 0 | 0 | 0.00 KM |
| Saint David's Close | £ 256,667 | 0 | 0.00 KM |
| College Road | £ 240,000 | 0 | 0.00 KM |
Nearby Transport
| Name | NLC | TLC | Distance |
|---|---|---|---|
| Pontypool And New Inn | 3744 | PPL | 2.72 KM |
| Cwmbran | 3738 | CWM | 6.14 KM |
Nearby Listings
| Address | Price | Type | Score | Distance |
|---|---|---|---|---|
| Old Penygarn, Pontypool, NP4 | £ 250,000 | BUY | 6 / 10 | 0.00 KM |
| Penygarn Road, Penygarn, Pontypool | £ 300,000 | BUY | 7 / 10 | 0.05 KM |
| James Street, Penygarn, Pontypool | £ 175,000 | BUY | 6 / 10 | 0.14 KM |
| Chapel Walk, Penygarn, NP4 | £ 230,000 | BUY | 6 / 10 | 0.16 KM |
| Quarry Cottages, Penygarn Road, Penygarn, Pontypool | £ 120,000 | BUY | 7 / 10 | 0.19 KM |
Nearby Properties
| Address | Price | Distance |
|---|---|---|
| 2 Chapel Walk | £ 236,000 | 0.15 KM |
| 1 Chapel Walk | £ 275,000 | 0.15 KM |
| 16 Chapel Walk | £ 217,500 | 0.15 KM |
| 17 Chapel Walk | £ 142,000 | 0.15 KM |
| College Store House | £ 230,000 | 0.17 KM |