Leeds Road, Ilkley, LS29
By The Home Movement
£ 400,000
Reviews
3 out of 5 stars
The Home Movement says ..
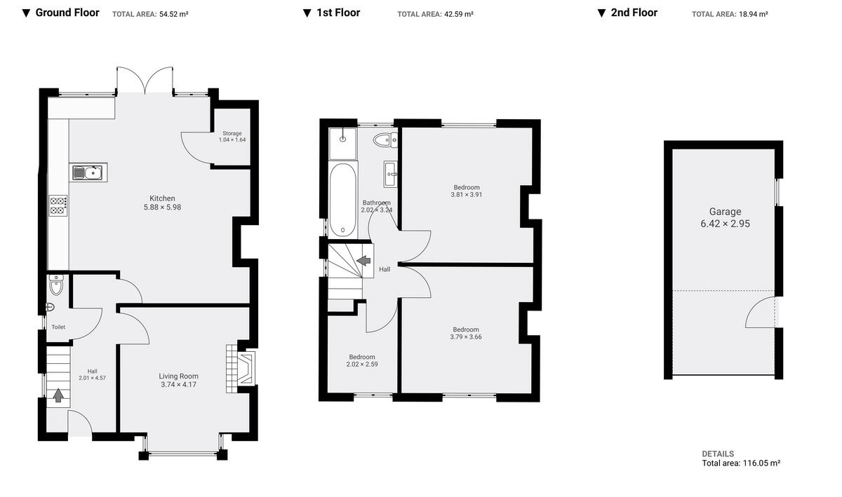
Launch day Sat 27/09 register to book your slot. A Modern EXENDED 3-Bedroom Family Home with South-Facing Garden, Garage & Driveway Parking
Property Oracle says ..
This is a three-bedroom semi-detached house on Leeds Road, Ilkley. The property benefits from its location, being close to schools and transport links. The house has a modern bathroom and a garden, making it suitable for families. While generally well-maintained, some areas could use updating. The asking price of £400,000 appears reasonable in comparison to local market values.
Therefore, we give this property 7 / 10. *Disclaimer: This is our option and does constitute a recommendation or financial advice. Do your own research. *
- Price
- 8
- Condition
- 7
- Location
- 7
- Land
- 6
- Bedrooms
- 3
- Bathrooms
- 1
The heatmap indicates the level of crime in the area. The color of the heatmap indicates the crime severity and recency.
Metrics Year-on-Year
- Average area value
- 368,177.00 £Decreased by 27.34 %
- Average area rental value
- 1,357.00 £/moIncreased by 21.27 %
- Est rental Yield
- 4.42 %Increased by 66.79 %
- Crime Rate
- 6.00 %Unchanged by 0.00 %
Agent Activity
The Home Movement created the listing.
Nearby Schools
| Name | Type | Ofsted | Distance |
|---|---|---|---|
| The Sacred Heart Catholic Primary School | Academy Converter | 0.54 KM | |
| Ben Rhydding Primary School | Community School | Good | 0.67 KM |
| Ashlands Primary School | Community School | Outstanding | 0.85 KM |
| Westville House School | Other Independent School | 1.09 KM | |
| Moorfield School | Other Independent School | 1.10 KM |
Images
Nearby Streets
| Name | Average Price | Average Sqft | Distance |
|---|---|---|---|
| Hampshire Close | £ 325,000 | 0 | 0.00 KM |
| Woodlands | £ 0 | 0 | 0.00 KM |
| Rombald's View | £ 0 | 0 | 0.00 KM |
| Ilkley201 | £ 0 | 0 | 0.00 KM |
| St Mary's Close | £ 225,000 | 0 | 0.00 KM |
Nearby Transport
| Name | NLC | TLC | Distance |
|---|---|---|---|
| Ben Rhydding | 8564 | BEY | 1.02 KM |
| Ilkley | 8568 | ILK | 1.84 KM |
| Burley-In-Wharfedale | 8565 | BUW | 6.27 KM |
| Menston | 8574 | MNN | 8.81 KM |
| Crossflatts | 8554 | CFL | 8.97 KM |
Nearby Listings
| Address | Price | Type | Score | Distance |
|---|---|---|---|---|
| Leeds Road, Ilkley, LS29 | £ 400,000 | BUY | 7 / 10 | 0.00 KM |
| Leeds Road, Ilkley | £ 680,000 | BUY | Unknown | 0.01 KM |
| Leeds Road, Ilkley | £ 635,000 | BUY | 8 / 10 | 0.08 KM |
| Sunset Drive, Ilkley | £ 525,000 | BUY | 7 / 10 | 0.08 KM |
| Low Beck, Ilkley | £ 379,950 | BUY | 6 / 10 | 0.17 KM |
Nearby Properties
| Address | Price | Distance |
|---|---|---|
| 287 Leeds Road | £ 232,500 | 0.06 KM |
| 261 Leeds Road | £ 312,500 | 0.06 KM |
| 251 Leeds Road | £ 467,500 | 0.06 KM |
| 277 Leeds Road | £ 345,000 | 0.06 KM |
| 271 Leeds Road | £ 376,100 | 0.06 KM |