MA
Church Road, Haywards Heath, RH16
By Mansell McTaggart
£ 225,000
Reviews
3 out of 5 stars
Mansell McTaggart says ..
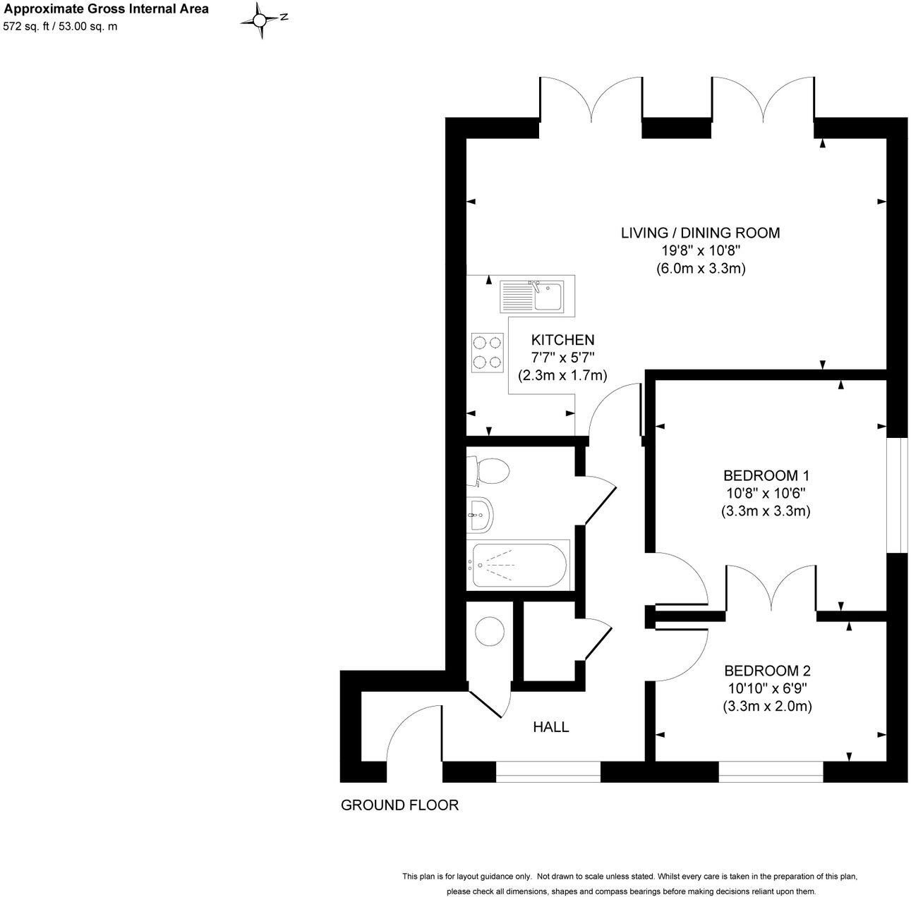
GUIDE PRICE ... £225,000-£250,000 A recently refurbished 2 Bedroom ground floor garden flat in this popular town centre retirement complex (residents need to be 55 or older) ideally placed within a few hundred yards of the Orchard shopping centre which is presented for sale in immaculate order th...
Property Oracle says ..
Therefore, we give this property 7 / 10. *Disclaimer: This is our option and does constitute a recommendation or financial advice. Do your own research. *
- Price
- 8
- Condition
- 8
- Location
- 8
- Land
- 7
- Bedrooms
- 1
- Bathrooms
- 1
- Sqft (est)
- 439.33
The heatmap indicates the level of crime in the area. The color of the heatmap indicates the crime severity and recency.
Metrics Year-on-Year
- Average area value
- 890,625.00 £Increased by 35.96 %
- Est sale value
- 250,418.10 £Increased by 58.77 %
- Average area rental value
- 1,412.00 £/moDecreased by 13.11 %
- Est letting value
- 0.00 £/mo
- Est rental Yield
- 1.90 %Decreased by 36.24 %
- Crime Rate
- 5.00 %Unchanged by 0.00 %
from 655,041.00 £
from 157,719.47 £
from 1,625.00 £/mo
from 0.00 £/mo
from 2.98 %
from 5.00 %
Agent Activity
Mansell McTaggart created the listing.
Nearby Schools
| Name | Type | Ofsted | Distance |
|---|---|---|---|
| St Joseph'S Catholic Primary School | Academy Converter | 0.35 KM | |
| Warden Park Primary Academy | Academy Sponsor Led | Good | 0.54 KM |
| Central Education Ltd | Other Independent Special School | Requires improvement | 0.68 KM |
| My Choice School - Oak House | Other Independent Special School | Requires improvement | 0.94 KM |
| St Wilfrid'S Cofe Primary School, Haywards Heath | Voluntary Aided School | Good | 1.21 KM |
Images
Nearby Streets
| Name | Average Price | Average Sqft | Distance |
|---|---|---|---|
| Perrymount Road | £ 0 | 0 | 0.00 KM |
| Church Road | £ 0 | 0 | 0.00 KM |
| Oakwood Road | £ 0 | 0 | 0.00 KM |
| Bankside | £ 0 | 0 | 0.00 KM |
| Nightingale Close | £ 750,000 | 0 | 0.00 KM |
Nearby Transport
| Name | NLC | TLC | Distance |
|---|---|---|---|
| Haywards Heath | 5490 | HHE | 0.72 KM |
| Wivelsfield | 5341 | WVF | 4.43 KM |
| Burgess Hill | 5483 | BUG | 5.82 KM |
| Balcombe | 5492 | BAB | 7.28 KM |
| Plumpton | 5332 | PMP | 9.19 KM |
Nearby Listings
| Address | Price | Type | Score | Distance |
|---|---|---|---|---|
| Church Road, Haywards Heath, RH16 | £ 225,000 | BUY | 7 / 10 | 0.00 KM |
| Church Road, Haywards Heath, West Sussex | £ 110,000 | BUY | 5 / 10 | 0.01 KM |
| Church Road, Haywards Heath, RH16 | £ 150,000 | BUY | 5 / 10 | 0.02 KM |
| Church Road, Haywards Heath, RH16 | £ 135,000 | BUY | 8 / 10 | 0.02 KM |
| Church Road, Haywards Heath, RH16 | £ 210,000 | BUY | Unknown | 0.06 KM |
Nearby Properties
| Address | Price | Distance |
|---|---|---|
| 24 Sharrow Close | £ 260,000 | 0.08 KM |
| 7 Sharrow Close | £ 221,250 | 0.08 KM |
| 11 Sharrow Close | £ 227,500 | 0.08 KM |
| 27 Sharrow Close | £ 243,000 | 0.08 KM |
| 19 Sharrow Close | £ 158,000 | 0.08 KM |