Allday & Miller says ..
This well-presented and spacious three-bedroom detached family home has been modernised throughout, offering a blend of contemporary design and comfort. The property is located in the sought area of Hayes End.
Property Oracle says ..
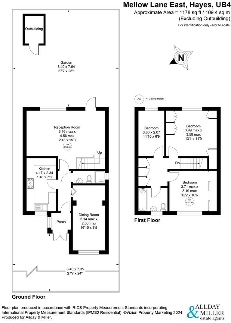
This three-bedroom, two-bathroom detached house in Hayes, UB4 8EL, presents as a well-maintained family home. The property has undergone some level of modernisation, with an interior design that prioritizes a modern aesthetic. High-quality interior photographs display updated bathrooms and modern living spaces. The kitchen and dining area appear to be well-integrated. The inclusion of built-in storage contributes to the overall functionality of the space. The house also boasts a rear garden space which appears to be easy to maintain. The exterior presents neatly; while there is a driveway, the exact size is not confirmed.
The location in Hayes offers proximity to several schools, providing families with schooling options although the distance and the actual quality of these schools would require further analysis. Transport links via TfL Rail and London Underground stations are noteworthy advantages, enhancing its appeal to commuters. Additional information regarding the property’s specific location in relation to neighborhood characteristics, such as noise levels or the general state of the surrounding houses would provide a clearer picture.
Despite the absence of crucial data such as the property’s square footage and plot size, a reasonable assessment can be made based on the listed price of £600,000 and comparable nearby properties. While many similar homes in the area are semi-detached and sell within a range from £520,000 to £575,000, this property’s detached nature, apparent modernisation, and the perceived higher quality of the renovation work arguably justifies the higher price. However, a more definitive valuation would necessitate more accurate quantitative data. Further due diligence is needed before drawing firm conclusions about the property’s value. A professional valuation would be necessary for the most accurate assessment of the property.
Therefore, we give this property 6 / 10. *Disclaimer: This is our option and does constitute a recommendation or financial advice. Do your own research. *
- Price
- 7
- Condition
- 8
- Location
- 7
- Land
- 4
- Bedrooms
- 3
- Bathrooms
- 2
The heatmap indicates the level of crime in the area. The color of the heatmap indicates the crime severity and recency.
Metrics Year-on-Year
- Average area value
- 412,273.00 £Increased by 8.72 %
- Average area rental value
- 1,245.00 £/moIncreased by 0.97 %
- Est rental Yield
- 3.62 %Decreased by 7.18 %
- Crime Rate
- 1.00 %Unchanged by 0.00 %
Agent Activity
Allday & Miller created the listing.
Nearby Schools
| Name | Type | Ofsted | Distance |
|---|---|---|---|
| De Salis Studio College | Studio Schools | Good | 0.59 KM |
| Hewens Primary School | Free Schools | Good | 0.59 KM |
| Hewens College | Academy Converter | Requires improvement | 0.59 KM |
| Charville Children'S Centre | Children's Centre | 0.98 KM | |
| Rosedale Primary School | Academy Sponsor Led | Good | 1.03 KM |
Images
Nearby Streets
| Name | Average Price | Average Sqft | Distance |
|---|---|---|---|
| Church Close | £ 460,000 | 0 | 0.00 KM |
| The Oaks | £ 0 | 0 | 0.00 KM |
| Kingswood Place | £ 250,000 | 0 | 0.00 KM |
| Blake Close | £ 0 | 0 | 0.00 KM |
| Victoria Close | £ 535,000 | 0 | 0.00 KM |
Nearby Transport
| Name | NLC | TLC | Distance |
|---|---|---|---|
| Hayes And Harlington | 3186 | HAY | 3.29 KM |
| West Ruislip | 3059 | WRU | 4.51 KM |
| West Drayton | 3174 | WDT | 4.71 KM |
| South Ruislip | 3057 | SRU | 4.94 KM |
| Southall | 3187 | STL | 6.69 KM |
Nearby Listings
| Address | Price | Type | Score | Distance |
|---|---|---|---|---|
| Mellow Lane East, Hayes | £ 600,000 | BUY | 6 / 10 | 0.00 KM |
| Mellow Lane East, Hayes | £ 575,000 | BUY | 6 / 10 | 0.04 KM |
| Mellow Lane East, Hayes | £ 550,000 | BUY | 6 / 10 | 0.04 KM |
| Hayes End Road, Hayes | £ 525,000 | BUY | 5 / 10 | 0.06 KM |
| Hayes End Road, Hayes | £ 450,000 | BUY | 4 / 10 | 0.08 KM |
Nearby Properties
| Address | Price | Distance |
|---|---|---|
| 78 Hayes End Drive | £ 275,000 | 0.09 KM |
| 68 Hayes End Drive | £ 460,000 | 0.09 KM |
| 60 Hayes End Drive | £ 205,000 | 0.09 KM |
| 82 Hayes End Drive | £ 274,000 | 0.09 KM |
| 83 Hayes End Drive | £ 465,000 | 0.09 KM |