Balgores says ..
* Guide Price £700,000 - £750,000 * •FOUR BEDROOMS •END OF TERRACE •OFF STREET PARKING FOR MULTIPLE CARS •GARAGE ATTACHED •LOFT ROOM WITH FITTED WARDROBES AND EAVES STORAGE •UNDERFLOOR HEATING IN MAIN BATHROOM O...
Property Oracle says ..
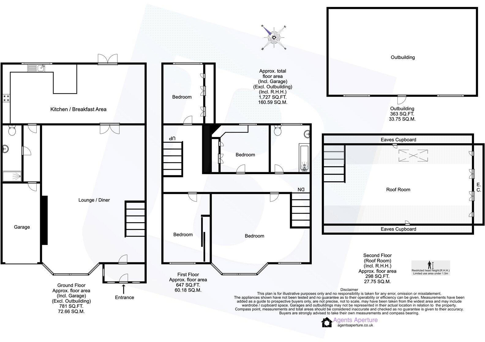
This is a four-bedroom end-of-terrace house located on Staines Road, Ilford. The property boasts two bathrooms and a spacious 1,728.58 sq ft of living space. It features a garden with an outbuilding, a garage, a modern kitchen and bathrooms. While generally well-maintained, some areas could benefit from cosmetic updates. The property is conveniently located near schools and transportation links, making it suitable for families and commuters. The asking price of £700,000 seems reasonable considering the size, location, and features of the property.
Therefore, we give this property 6 / 10. *Disclaimer: This is our option and does constitute a recommendation or financial advice. Do your own research. *
- Price
- 7
- Condition
- 7
- Location
- 7
- Land
- 6
- Bedrooms
- 4
- Bathrooms
- 2
- Sqft (est)
- 1,728.58
The heatmap indicates the level of crime in the area. The color of the heatmap indicates the crime severity and recency.
Metrics Year-on-Year
- Average area value
- 476,645.00 £Decreased by 53.76 %
- Est sale value
- 750,203.72 £Decreased by 50.57 %
- Average area rental value
- 1,675.00 £/moIncreased by 26.22 %
- Est letting value
- 1,728.58 £/moUnchanged by 0.00 %
- Est rental Yield
- 4.22 %Increased by 174.03 %
- Crime Rate
- 6.00 %Unchanged by 0.00 %
Agent Activity
Balgores created the listing.
Nearby Schools
| Name | Type | Ofsted | Distance |
|---|---|---|---|
| Loxford School | Academy Converter | 0.29 KM | |
| Gordon Primary School | Community School | Good | 0.61 KM |
| Woodlands Primary School | Community School | Good | 0.74 KM |
| Ss Peter And Paul'S Catholic Primary School | Academy Converter | 0.78 KM | |
| Oak House School | Other Independent Special School | Good | 0.81 KM |
Images
Nearby Streets
| Name | Average Price | Average Sqft | Distance |
|---|---|---|---|
| South Park Drive | £ 700,000 | 0 | 0.00 KM |
| Lawson Close | £ 0 | 0 | 0.00 KM |
| Blackthorn Road | £ 0 | 0 | 0.00 KM |
| Seaton Avenue | £ 625,000 | 0 | 0.00 KM |
| Melford Road | £ 0 | 0 | 0.00 KM |
Nearby Transport
| Name | NLC | TLC | Distance |
|---|---|---|---|
| Seven Kings | 6893 | SVK | 1.58 KM |
| Barking | 7492 | BKG | 1.69 KM |
| Ilford | 6881 | IFD | 2.39 KM |
| Goodmayes | 6878 | GMY | 2.78 KM |
| Chadwell Heath | 6874 | CTH | 4.68 KM |
Nearby Listings
| Address | Price | Type | Score | Distance |
|---|---|---|---|---|
| Staines Road, Ilford, IG1 | £ 700,000 | BUY | 6 / 10 | 0.00 KM |
| Harman Rise, Seven Kings, Essex, IG3 | £ 200,000 | BUY | 5 / 10 | 0.10 KM |
| South Park Road, Ilford, IG1 | £ 550,000 | BUY | 6 / 10 | 0.10 KM |
| South Park Road, Ilford | £ 570,000 | BUY | 6 / 10 | 0.10 KM |
| One-bedroom flat For Sale, Ilford, IG3 | £ 250,000 | BUY | 5 / 10 | 0.11 KM |
Nearby Properties
| Address | Price | Distance |
|---|---|---|
| 202 Staines Road | £ 278,000 | 0.01 KM |
| 242 Staines Road | £ 375,000 | 0.01 KM |
| 161 Staines Road | £ 215,000 | 0.01 KM |
| 228 Staines Road | £ 310,000 | 0.01 KM |
| 151 Staines Road | £ 365,000 | 0.01 KM |