Ivy Gate says ..
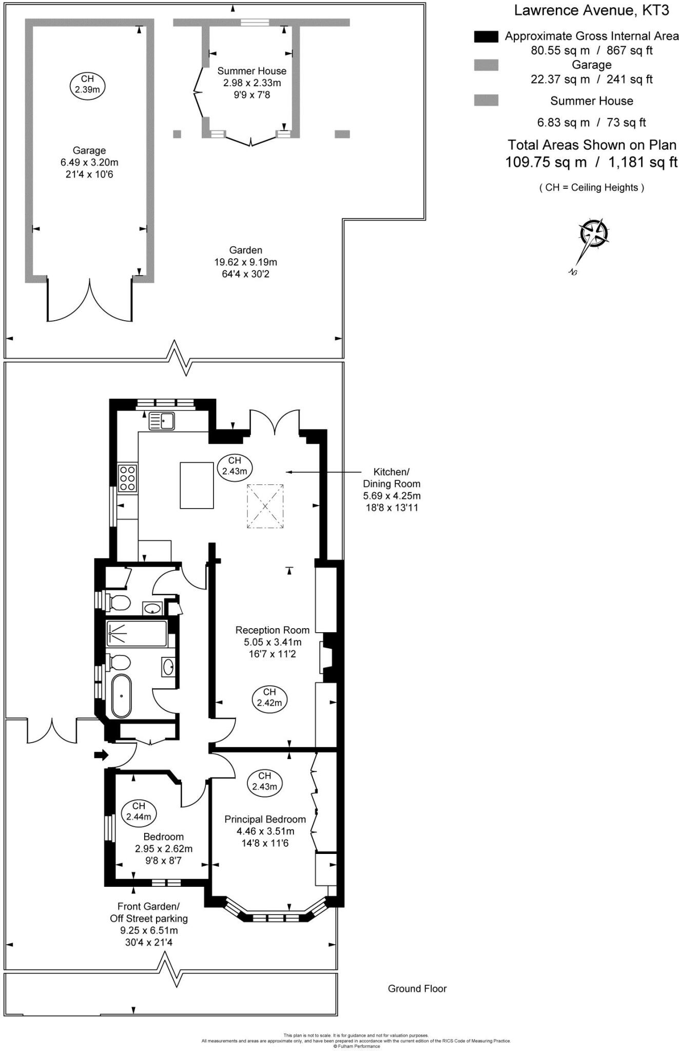
Ivy Gate are proud to be able to offer to the market this impressive and extremely well presented two bedroom semi-detached Bungalow situated in a desirable residential road on the borders of New Malden and Worcester Park, and close to a number of well regarded schools and convenient transport li...
Property Oracle says ..
Therefore, we give this property 7 / 10. *Disclaimer: This is our option and does constitute a recommendation or financial advice. Do your own research. *
- Price
- 5
- Condition
- 9
- Location
- 8
- Land
- 7
- Bedrooms
- 2
- Bathrooms
- 1
- Sqft (est)
- 995.98
The heatmap indicates the level of crime in the area. The color of the heatmap indicates the crime severity and recency.
Metrics Year-on-Year
- Average area value
- 376,667.00 £Decreased by 11.42 %
- Est sale value
- 297,798.02 £Decreased by 27.43 %
- Average area rental value
- 1,100.00 £/moIncreased by 18.92 %
- Est letting value
- 0.00 £/mo
- Est rental Yield
- 3.50 %Increased by 34.10 %
- Crime Rate
- 0.00 %
from 425,220.00 £
from 410,343.76 £
from 925.00 £/mo
from 0.00 £/mo
from 2.61 %
from 0.00 %
Agent Activity
Ivy Gate created the listing.
Nearby Schools
| Name | Type | Ofsted | Distance |
|---|---|---|---|
| Old Malden Children'S Centre | Children's Centre | 0.00 KM | |
| Malden Manor Primary And Nursery School | Community School | Good | 0.05 KM |
| Malden Parochial Cofe Primary School | Voluntary Aided School | Outstanding | 0.49 KM |
| Richard Challoner School | Academy Converter | 0.69 KM | |
| Tennis Avenue School | Other Independent School | 0.76 KM |
Images
Nearby Streets
| Name | Average Price | Average Sqft | Distance |
|---|---|---|---|
| Church Road | £ 892,000 | 0 | 0.00 KM |
| Yew Tree Close | £ 532,500 | 0 | 0.00 KM |
| Lyndhurst Drive | £ 0 | 0 | 0.00 KM |
| Turner Road | £ 771,667 | 0 | 0.00 KM |
| Vicarage Close | £ 0 | 0 | 0.00 KM |
Nearby Transport
| Name | NLC | TLC | Distance |
|---|---|---|---|
| Malden Manor | 5599 | MAL | 0.27 KM |
| Worcester Park | 5579 | WCP | 1.72 KM |
| New Malden | 5567 | NEM | 1.99 KM |
| Motspur Park | 5645 | MOT | 2.43 KM |
| Tolworth | 5573 | TOL | 2.44 KM |
Nearby Listings
| Address | Price | Type | Score | Distance |
|---|---|---|---|---|
| Lawrence Avenue, New Malden, KT3 | £ 765,000 | BUY | 7 / 10 | 0.00 KM |
| Lawrence Avenue, New Malden, KT3 | £ 900,000 | BUY | 6 / 10 | 0.10 KM |
| Sheephouse Way, New Malden | £ 545,000 | BUY | 6 / 10 | 0.12 KM |
| South Lane, New Malden, KT3 | £ 650,000 | BUY | Unknown | 0.19 KM |
| South Lane, New Malden, KT3 | £ 700,000 | BUY | 6 / 10 | 0.19 KM |
Nearby Properties
| Address | Price | Distance |
|---|---|---|
| 82 Lawrence Avenue | £ 616,000 | 0.01 KM |
| 96 Lawrence Avenue | £ 320,000 | 0.01 KM |
| 143 Lawrence Avenue | £ 437,000 | 0.01 KM |
| 137 Lawrence Avenue | £ 283,000 | 0.01 KM |
| 117 Lawrence Avenue | £ 107,500 | 0.01 KM |