Crockford Place, Binfield, Bracknell
RO

Crockford Place, Binfield, Bracknell

By Romans

£ 515,000

Reviews

3 out of 5 stars

Romans says ..

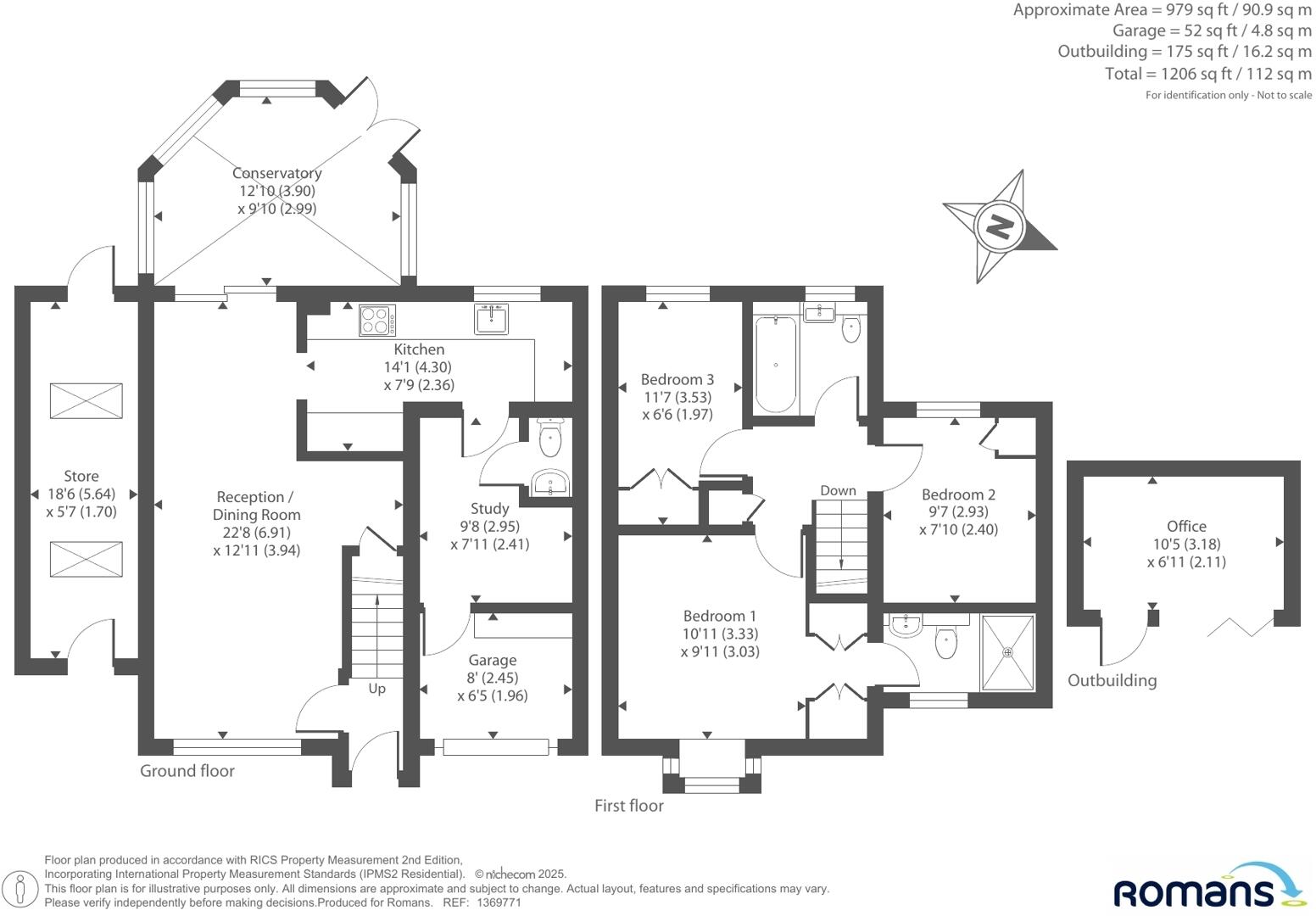
Romans are pleased to present this spacious three-bedroom semi-detached family home, ideally located in the popular Temple Park area. The property features a generous 22'8 lounge/diner leading into a large conservatory overlooking the private rear garden. The kitchen has been refitted ...

Property Oracle says ..

This is a well-presented semi-detached house in a sought-after location in Binfield, Bracknell. The property benefits from a modern kitchen, a conservatory, and a garden with an outbuilding. Its proximity to good schools and transport links makes it an attractive option for families and commuters. The price appears reasonable compared to other properties in the area, making it a potentially good investment.

Therefore, we give this property 7 / 10. *Disclaimer: This is our option and does constitute a recommendation or financial advice. Do your own research. *

Price
8
Condition
8
Location
7
Land
7
Bedrooms
3
Bathrooms
2
Sqft (est)
1,206.00

The heatmap indicates the level of crime in the area. The color of the heatmap indicates the crime severity and recency.

Metrics Year-on-Year

Average area value
561,863.00 £
Decreased by 2.75 %
from 577,775.00 £
Est sale value
812,844.00 £
Increased by 15.21 %
from 705,510.00 £
Average area rental value
3,222.00 £/mo
Increased by 22.09 %
from 2,639.00 £/mo
Est letting value
3,618.00 £/mo
Increased by 50.00 %
from 2,412.00 £/mo
Est rental Yield
6.88 %
Increased by 25.55 %
from 5.48 %
Crime Rate
3.00 %
Unchanged by 0.00 %
from 3.00 %

Agent Activity

  • Romans created the listing.

Nearby Schools

NameTypeOfstedDistance
Meadow Vale Primary SchoolCommunity SchoolGood0.21 KM
The Willows And Maples Children'S CentreChildren's Centre0.70 KM
King'S Academy BinfieldFree Schools1.00 KM
Kennel Lane SchoolCommunity Special SchoolGood1.46 KM
Newbold SchoolOther Independent SchoolGood1.75 KM

Images

1369771-23-68f0c3... 1369771-1-68f0c07... 1369771-4-68f0c0d... 1369771-6-68f0c0e... 1369771-21-68f0c3... 1369771-3-68f0c0d... 1369771-9-68f0c11... 1369771-14-68f0c3... 1369771-16-68f0c3... 1369771-18-68f0c3... 1369771-2-68f0c0c... 1369771-7-68f0c0f... 1369771-5-68f0c0e... 1369771-15-68f0c3... 1369771-17-68f0c3... 1369771-8-68f0c10... 1369771-19-68f0c3... 1369771-24-68f0c3... 1369771-12-68f0c3... 1369771-11-68f0c3...

Nearby Streets

NameAverage PriceAverage SqftDistance
Priestwood Court Road £ 000.00 KM
Manor Close £ 000.00 KM
Windmill Road £ 000.00 KM
Turnpike Road £ 000.00 KM
Heythorp Park £ 000.00 KM

Nearby Transport

NameNLCTLCDistance
Bracknell5693BCE2.31 KM
Martins Heron5692MAO5.30 KM
Wokingham5696WKM8.26 KM
Crowthorne5628CRN8.51 KM
Sandhurst (Berks)5646SND9.50 KM

Nearby Listings

AddressPriceTypeScoreDistance
Crockford Place, Binfield, Bracknell £ 515,000BUY7 / 100.00 KM
Crockford Place, Binfield, Bracknell, Berkshire, RG42 £ 500,000BUY7 / 100.00 KM
Moordale Avenue, Bracknell, Berkshire £ 410,000BUY7 / 100.21 KM
Matthews Chase, Binfield, Bracknell, Berkshire, RG42 £ 950,000BUY7 / 100.27 KM
Priestwood Avenue, Bracknell, Berkshire £ 450,000BUY6 / 100.27 KM

Nearby Properties

AddressPriceDistance
42 Crockford Place £ 325,0000.00 KM
46 Crockford Place £ 415,0000.00 KM
10 Crockford Place £ 430,0000.00 KM
14 Crockford Place £ 291,0000.00 KM
40 Crockford Place £ 335,0000.00 KM