LA
Barnfield Wood Road, Beckenham
By Langford Russell
£ 1,200,000
Reviews
3 out of 5 stars
Langford Russell says ..
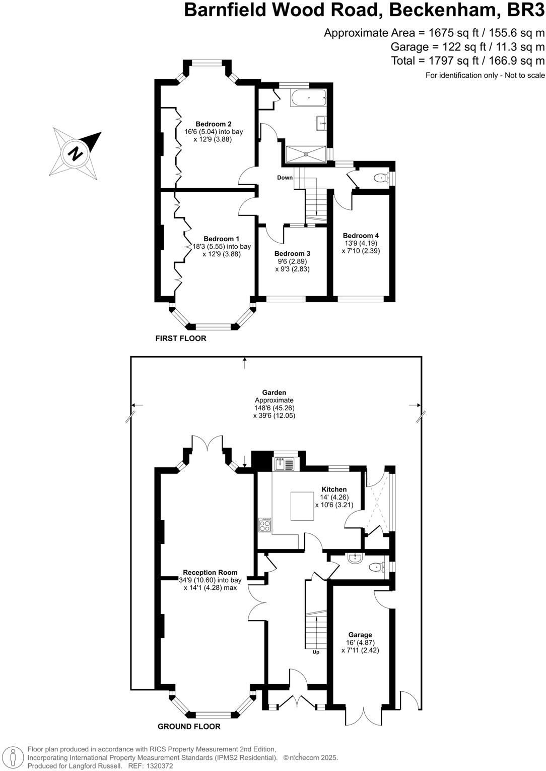
Langford Russell are pleased to present to the market this detached 4-bedroom house on the highly sought-after Barnfield Wood Road. Set behind a generous driveway, this substantial property boasts a welcoming entrance hall, a bright and airy reception room with a feature fireplace and ...
Property Oracle says ..
Therefore, we give this property 7 / 10. *Disclaimer: This is our option and does constitute a recommendation or financial advice. Do your own research. *
- Price
- 7
- Condition
- 7
- Location
- 8
- Land
- 8
- Bedrooms
- 4
- Bathrooms
- 1
- Sqft (est)
- 1,797.00
- Lot (est)
- 5,874.75
The heatmap indicates the level of crime in the area. The color of the heatmap indicates the crime severity and recency.
Metrics Year-on-Year
- Average area value
- 609,444.00 £Decreased by 16.08 %
- Est sale value
- 954,207.00 £Increased by 5.15 %
- Average area rental value
- 2,775.00 £/moIncreased by 29.01 %
- Est letting value
- 3,594.00 £/moIncreased by 100.00 %
- Est rental Yield
- 5.46 %Increased by 53.80 %
- Crime Rate
- 15.00 %Unchanged by 0.00 %
from 726,179.00 £
from 907,485.00 £
from 2,151.00 £/mo
from 1,797.00 £/mo
from 3.55 %
from 15.00 %
Agent Activity
Langford Russell created the listing.
Nearby Schools
| Name | Type | Ofsted | Distance |
|---|---|---|---|
| Highfield Junior School | Academy Converter | 1.06 KM | |
| Pickhurst Academy | Academy Converter | 1.22 KM | |
| Pickhurst Infant Academy | Academy Converter | 1.22 KM | |
| Highfield Infants' School | Academy Converter | 1.25 KM | |
| Langley Park Primary School | Free Schools | Good | 1.37 KM |
Images
Nearby Streets
| Name | Average Price | Average Sqft | Distance |
|---|---|---|---|
| West Way | £ 1,250,000 | 0 | 0.00 KM |
| Hawksbrook Lane | £ 0 | 0 | 0.00 KM |
| The Drive | £ 0 | 0 | 0.00 KM |
| Castle Close | £ 785,000 | 0 | 0.00 KM |
| Bramble Close | £ 0 | 0 | 0.00 KM |
Nearby Transport
| Name | NLC | TLC | Distance |
|---|---|---|---|
| West Wickham | 5054 | WWI | 1.38 KM |
| Shortlands | 5084 | SRT | 1.97 KM |
| Hayes | 5050 | HYS | 2.27 KM |
| Eden Park | 5056 | EDN | 2.35 KM |
| Bromley South | 5064 | BMS | 2.74 KM |
Nearby Listings
| Address | Price | Type | Score | Distance |
|---|---|---|---|---|
| Barnfield Wood Road, Beckenham | £ 1,200,000 | BUY | 7 / 10 | 0.00 KM |
| Barnfield Wood Road, Beckenham, BR3 | £ 825,000 | BUY | 6 / 10 | 0.07 KM |
| Bromley Road, Beckenham, BR3 | £ 575,000 | BUY | 5 / 10 | 0.09 KM |
| Bushey Way, Beckenham, BR3 | £ 1,000,000 | BUY | Unknown | 0.14 KM |
| Hayes Chase, West Wickham, BR4 | £ 825,000 | BUY | 6 / 10 | 0.18 KM |
Nearby Properties
| Address | Price | Distance |
|---|---|---|
| 75 Barnfield Wood Road | £ 1,075,000 | 0.06 KM |
| 51 Barnfield Wood Road | £ 1,160,000 | 0.06 KM |
| 71 Barnfield Wood Road | £ 570,000 | 0.06 KM |
| 69 Barnfield Wood Road | £ 973,000 | 0.06 KM |
| 73 Barnfield Wood Road | £ 980,000 | 0.06 KM |