Cosway Estates says ..
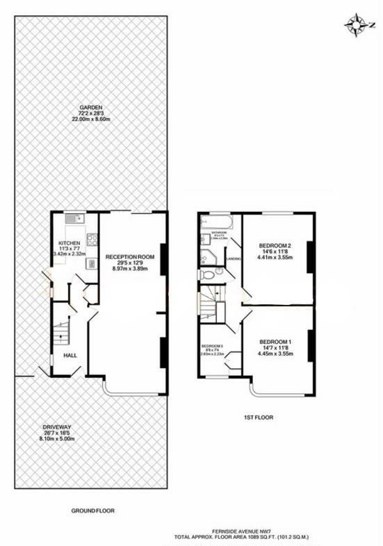
Nestled in the highly sought-after area of Mill Hill, this charming 3-bedroom, semi-detached family home is ideally located within walking distance of the vibrant Mill Hill Broadway, as well as an array of exceptional schools. Offering incredible potential for future development, with t...
Property Oracle says ..
This three-bedroom semi-detached house in Mill Hill, Barnet, offers a comfortable family home. Its location within walking distance of excellent primary and secondary schools, along with relatively easy access to transport (Mill Hill Broadway station at 1.49km) makes it highly attractive for families. The property features a good-sized rear garden providing outdoor space, a rarity in such a desirable location within Greater London. However, while the property appears habitable, the internal photos reveal a need for modernisation and some upgrading to kitchen and bathroom fixtures, which would enhance its overall appeal and value. The absence of key information, such as the total square footage and the plot size, makes a full and precise valuation difficult, but the pricing appears competitive when comparing to similar listed properties in the local area. Potential buyers should thoroughly inspect the property and undertake necessary due diligence before making an offer.
Therefore, we give this property 6 / 10. *Disclaimer: This is our option and does constitute a recommendation or financial advice. Do your own research. *
- Price
- 7
- Condition
- 5
- Location
- 7
- Land
- 6
- Bedrooms
- 3
- Bathrooms
- 1
The heatmap indicates the level of crime in the area. The color of the heatmap indicates the crime severity and recency.
Metrics Year-on-Year
- Average area value
- 758,663.00 £Increased by 3.95 %
- Average area rental value
- 2,364.00 £/moDecreased by 11.43 %
- Est rental Yield
- 3.74 %Decreased by 14.81 %
- Crime Rate
- 7.00 %Unchanged by 0.00 %
Agent Activity
Cosway Estates created the listing.
Nearby Schools
| Name | Type | Ofsted | Distance |
|---|---|---|---|
| Fairway Primary School And Children'S Centre | Community School | Good | 0.33 KM |
| Fairway Primary School And Children'S Centre | Children's Centre | 0.36 KM | |
| Northway School | Community Special School | Outstanding | 0.39 KM |
| Courtland School | Community School | Outstanding | 0.52 KM |
| Mathilda Marks-Kennedy Jewish Primary School | Voluntary Aided School | Outstanding | 0.99 KM |
Images
Nearby Streets
| Name | Average Price | Average Sqft | Distance |
|---|---|---|---|
| Manor Drive | £ 925,000 | 0 | 0.00 KM |
| Marsh Lane | £ 2,044,158 | 0 | 0.00 KM |
| Limes Avenue | £ 999,000 | 0 | 0.00 KM |
| Kenilworth Road | £ 595,000 | 0 | 0.00 KM |
| Station Road | £ 0 | 0 | 0.00 KM |
Nearby Transport
| Name | NLC | TLC | Distance |
|---|---|---|---|
| Mill Hill Broadway | 1527 | MIL | 1.49 KM |
| Elstree And Borehamwood | 1542 | ELS | 4.13 KM |
| Hendon | 1522 | HEN | 5.31 KM |
| Kenton | 1399 | KNT | 8.22 KM |
| South Kenton | 1453 | SOK | 8.35 KM |
Nearby Listings
| Address | Price | Type | Score | Distance |
|---|---|---|---|---|
| Fernside Avenue, London | £ 695,000 | BUY | 6 / 10 | 0.00 KM |
| Fernside Avenue, Mill Hill, NW7 | £ 799,950 | BUY | Unknown | 0.02 KM |
| Fernside Avenue, London, NW7 | £ 1,250,000 | BUY | 7 / 10 | 0.06 KM |
| Laurel Gardens, London, NW7 | £ 875,000 | BUY | 7 / 10 | 0.11 KM |
| Laurel Gardens, London | £ 850,000 | BUY | Unknown | 0.11 KM |
Nearby Properties
| Address | Price | Distance |
|---|---|---|
| 63 Fernside Avenue | £ 183,000 | 0.03 KM |
| 47 Fernside Avenue | £ 289,050 | 0.03 KM |
| 29 Fernside Avenue | £ 310,000 | 0.03 KM |
| 35 Fernside Avenue | £ 435,000 | 0.03 KM |
| 57 Fernside Avenue | £ 54,000 | 0.03 KM |