St. Marys Road, Ealing, London, W5
By Leslie & Co
£ 1,750,000
Reviews
4 out of 5 stars
Leslie & Co says ..
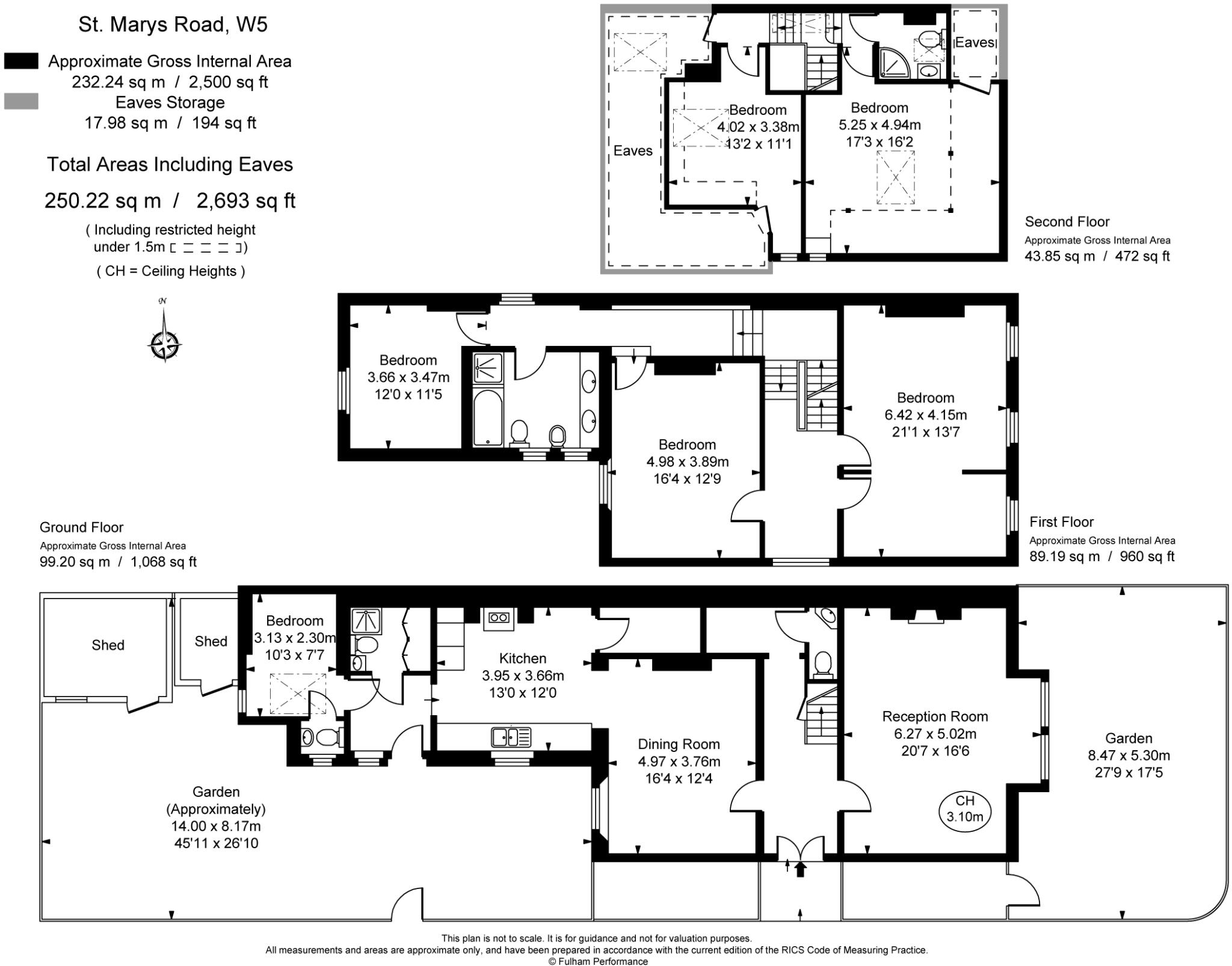
Situated on one of Ealing’s most sought-after roads, this detached five/six-bedroom home offers over 2,500 sq ft of accommodation — just moments from Walpole Park, Lammas Park, and the boutiques, cafés and restaurants of central Ealing.
Property Oracle says ..
This property is a 6 bedroom, 3 bathroom detached house located on St. Marys Road in Ealing, London. The property benefits from being close to Ealing Broadway station (0.91km) providing access to TfL Rail services. There are also several schools nearby including Grange Primary School (0.42km) which has a good Ofsted rating. The house itself appears to be in good condition, well-maintained and modernised while retaining some traditional character. It has a garden with a patio area and sheds. While the square footage is not provided, the list price of £1,750,000 seems reasonable considering the average house price in the area (£736,069) and comparable properties on St. Marys Road (e.g., £1,795,000 and £1,850,000). The plot size is 250.22 sqft.
Therefore, we give this property 8 / 10. *Disclaimer: This is our option and does constitute a recommendation or financial advice. Do your own research. *
- Price
- 8
- Condition
- 9
- Location
- 9
- Land
- 7
- Bedrooms
- 6
- Bathrooms
- 3
- Lot (est)
- 250.22
The heatmap indicates the level of crime in the area. The color of the heatmap indicates the crime severity and recency.
Metrics Year-on-Year
- Average area value
- 811,000.00 £Increased by 5.83 %
- Average area rental value
- 2,084.00 £/moDecreased by 2.53 %
- Est rental Yield
- 3.08 %Decreased by 8.06 %
- Crime Rate
- 4.00 %Unchanged by 0.00 %
Agent Activity
Leslie & Co created the listing.
Nearby Schools
| Name | Type | Ofsted | Distance |
|---|---|---|---|
| University Of West London | Higher Education Institutions | Good | 0.26 KM |
| Grange Children'S Centre | Children's Centre Linked Site | 0.41 KM | |
| Grange Primary School | Community School | Good | 0.42 KM |
| Clifton Lodge School | Other Independent School | 0.53 KM | |
| Ealing Independent College | Other Independent School | 0.58 KM |
Images
Nearby Streets
| Name | Average Price | Average Sqft | Distance |
|---|---|---|---|
| Liverpool Road | £ 700,000 | 0 | 0.00 KM |
| Grove Road | £ 450,000 | 0 | 0.00 KM |
| High Street | £ 0 | 0 | 0.00 KM |
| Centre Square | £ 0 | 0 | 0.00 KM |
| Roberts Alley | £ 0 | 0 | 0.00 KM |
Nearby Transport
| Name | NLC | TLC | Distance |
|---|---|---|---|
| Ealing Broadway | 3190 | EAL | 0.91 KM |
| West Ealing | 3188 | WEA | 1.74 KM |
| Brentford | 5552 | BFD | 2.28 KM |
| Kew Bridge | 5593 | KWB | 2.87 KM |
| Drayton Green | 3099 | DRG | 2.91 KM |
Nearby Listings
| Address | Price | Type | Score | Distance |
|---|---|---|---|---|
| St. Marys Road, Ealing, London, W5 | £ 1,750,000 | BUY | 8 / 10 | 0.00 KM |
| Ealing Court Mansions, Ealing W5 | £ 499,950 | BUY | 8 / 10 | 0.09 KM |
| St Marys Road, Ealing, W5 | £ 500,000 | BUY | 5 / 10 | 0.11 KM |
| The Park, Ealing | £ 1,499,900 | BUY | 7 / 10 | 0.14 KM |
| Ealing Court Mansions, Ealing, W5 | £ 375,000 | BUY | 7 / 10 | 0.14 KM |
Nearby Properties
| Address | Price | Distance |
|---|---|---|
| 10 St Marys Road | £ 660,000 | 0.03 KM |
| 8 St Marys Road | £ 1,795,000 | 0.03 KM |
| 4 St Marys Road | £ 390,000 | 0.03 KM |
| 6 St Marys Road | £ 1,850,000 | 0.03 KM |
| 18a St Marys Road | £ 209,000 | 0.03 KM |