Clark Street, Newmains, Wishaw
By Fred Estate Agents
£ 135,000
Reviews
3 out of 5 stars
Fred Estate Agents says ..
Nestled within a highly sought-after residential development, this beautifully appointed two bedroom end terraced property, offers a perfect blend of modern living and comfort.
Property Oracle says ..
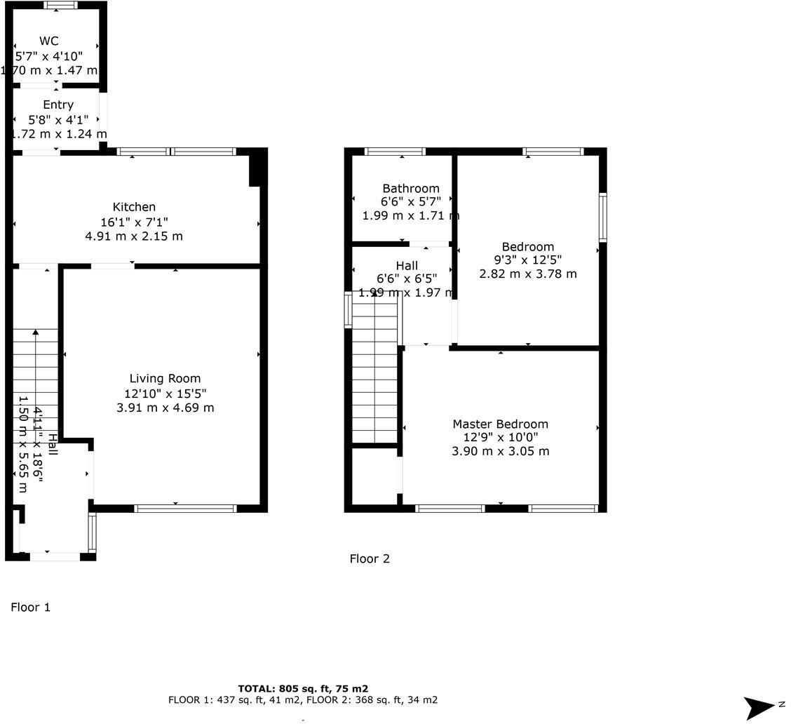
This property is a 2 bedroom, 2 bathroom house located in Newmains, Wishaw. Based on the images provided the property appears to be in excellent condition and has recently been renovated to a high standard. The property benefits from a good sized garden with a decked area and a garden shed/office. The location is close to several train stations, providing easy access to commuting routes. The average price per sqft in the area is £379.00, and this property is listed at £135,000. Considering the condition, location, and additional features such as the garden, this seems like a reasonable price.
Therefore, we give this property 7 / 10. *Disclaimer: This is our option and does constitute a recommendation or financial advice. Do your own research. *
- Price
- 8
- Condition
- 9
- Location
- 7
- Land
- 7
- Bedrooms
- 2
- Bathrooms
- 2
- Sqft (est)
- 807.29
The heatmap indicates the level of crime in the area. The color of the heatmap indicates the crime severity and recency.
Metrics Year-on-Year
- Average area value
- 925,000.00 £Increased by 139.51 %
- Est sale value
- 353,593.02 £Increased by 50.52 %
- Average area rental value
- 825.00 £/moDecreased by 10.71 %
- Est letting value
- 0.00 £/mo
- Est rental Yield
- 1.07 %Decreased by 62.72 %
- Crime Rate
- 0.00 %
Agent Activity
Fred Estate Agents marked this listing as sold.
Fred Estate Agents created the listing.
Images
Nearby Streets
| Name | Average Price | Average Sqft | Distance |
|---|---|---|---|
| Lawrie Street | £ 0 | 0 | 0.00 KM |
| King Street | £ 77,000 | 0 | 0.00 KM |
| Branchalmuir Crescent | £ 0 | 0 | 0.00 KM |
| Manse Mews | £ 0 | 0 | 0.00 KM |
| Westwood Road | £ 0 | 0 | 0.00 KM |
Nearby Transport
| Name | NLC | TLC | Distance |
|---|---|---|---|
| Cleland | 9718 | CEA | 3.48 KM |
| Wishaw | 9694 | WSH | 4.88 KM |
| Hartwood | 9246 | HTW | 5.74 KM |
| Carluke | 9702 | CLU | 7.29 KM |
| Shieldmuir | 9552 | SDM | 8.05 KM |
Nearby Listings
| Address | Price | Type | Score | Distance |
|---|---|---|---|---|
| Clark Street, Newmains, Wishaw | £ 135,000 | BUY | 7 / 10 | 0.00 KM |
| King Street, Newmains, Wishaw | £ 70,000 | BUY | Unknown | 0.22 KM |
| Branchalmuir Crescent, Newmains, Wishaw | £ 90,000 | BUY | 7 / 10 | 0.29 KM |
| Branchalmuir Crescent, Newmains | £ 82,500 | BUY | Unknown | 0.30 KM |
| West Place, Newmains | £ 73,000 | BUY | 6 / 10 | 0.33 KM |