CU
Greystones, Tollgate Road, Dorking, RH4
By Curchods Estate Agents
£ 725,000
Reviews
3 out of 5 stars
Curchods Estate Agents says ..
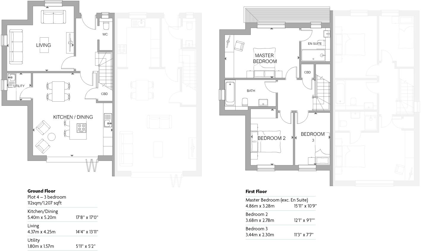
Plot 4 - A brand new 3-bedroom semi-detached house built by the award-winning Earlswood Homes , featuring private parking and a generous garden. One of four stylish homes off the Tollgate Road which is situated within a mile of the historic market town of Dorking, surrounded by the beautiful Surr...
Property Oracle says ..
Therefore, we give this property 7 / 10. *Disclaimer: This is our option and does constitute a recommendation or financial advice. Do your own research. *
- Price
- 6
- Condition
- 9
- Location
- 7
- Land
- 7
- Bedrooms
- 3
- Bathrooms
- 2
The heatmap indicates the level of crime in the area. The color of the heatmap indicates the crime severity and recency.
Metrics Year-on-Year
- Average area value
- 776,234.00 £Increased by 50.03 %
- Average area rental value
- 2,433.00 £/moIncreased by 24.77 %
- Est rental Yield
- 3.76 %Decreased by 16.81 %
- Crime Rate
- 4.00 %Unchanged by 0.00 %
from 517,371.00 £
from 1,950.00 £/mo
from 4.52 %
from 4.00 %
Agent Activity
Curchods Estate Agents created the listing.
Nearby Schools
| Name | Type | Ofsted | Distance |
|---|---|---|---|
| St John'S Church Of England Primary School | Academy Sponsor Led | Good | 0.37 KM |
| Dorking Rural Sure Start Children'S Centre | Children's Centre Linked Site | 0.37 KM | |
| St Paul'S Cofe (Aided) Primary School | Voluntary Aided School | Outstanding | 1.02 KM |
| St Joseph'S Catholic Primary School | Voluntary Aided School | Good | 1.36 KM |
| Dorking Nursery School | Local Authority Nursery School | Outstanding | 1.57 KM |
Images
Nearby Streets
| Name | Average Price | Average Sqft | Distance |
|---|---|---|---|
| Heathers Land | £ 0 | 0 | 0.00 KM |
| Howard Road | £ 0 | 0 | 0.00 KM |
| North Close | £ 0 | 0 | 0.00 KM |
| Pledges Yard | £ 375,000 | 0 | 0.00 KM |
| The Orchard | £ 0 | 0 | 0.00 KM |
Nearby Transport
| Name | NLC | TLC | Distance |
|---|---|---|---|
| Dorking (Deepdene) | 5412 | DPD | 2.25 KM |
| Dorking West | 5297 | DKT | 2.26 KM |
| Dorking | 5357 | DKG | 2.49 KM |
| Box Hill And Westhumble | 5403 | BXW | 3.89 KM |
| Holmwood | 5308 | HLM | 4.31 KM |
Nearby Listings
| Address | Price | Type | Score | Distance |
|---|---|---|---|---|
| Greystones, Tollgate Road, Dorking, RH4 | £ 725,000 | BUY | 7 / 10 | 0.00 KM |
| Greystones, Tollgate Road, Dorking, RH4 | £ 575,000 | BUY | 7 / 10 | 0.01 KM |
| Greystones, Tollgate Road, Dorking, RH4 | £ 525,000 | BUY | Unknown | 0.01 KM |
| HORSHAM ROAD, DORKING, RH4 | £ 635,000 | BUY | 6 / 10 | 0.02 KM |
| Martineau Drive, Dorking, Surrey | £ 900,000 | BUY | 7 / 10 | 0.11 KM |
Nearby Properties
| Address | Price | Distance |
|---|---|---|
| 1a Flint Hill | £ 305,000 | 0.08 KM |
| 3 Flint Hill | £ 333,000 | 0.08 KM |
| 4 Flint Hill | £ 426,050 | 0.10 KM |
| 5 Flint Hill | £ 214,000 | 0.10 KM |
| 6 Flint Hill | £ 179,950 | 0.10 KM |