SW
Shaftesbury Crescent, Laleham, Staines-upon-Thames,TW18
By Swans Estate Agents
£ 475,000
Reviews
3 out of 5 stars
Swans Estate Agents says ..
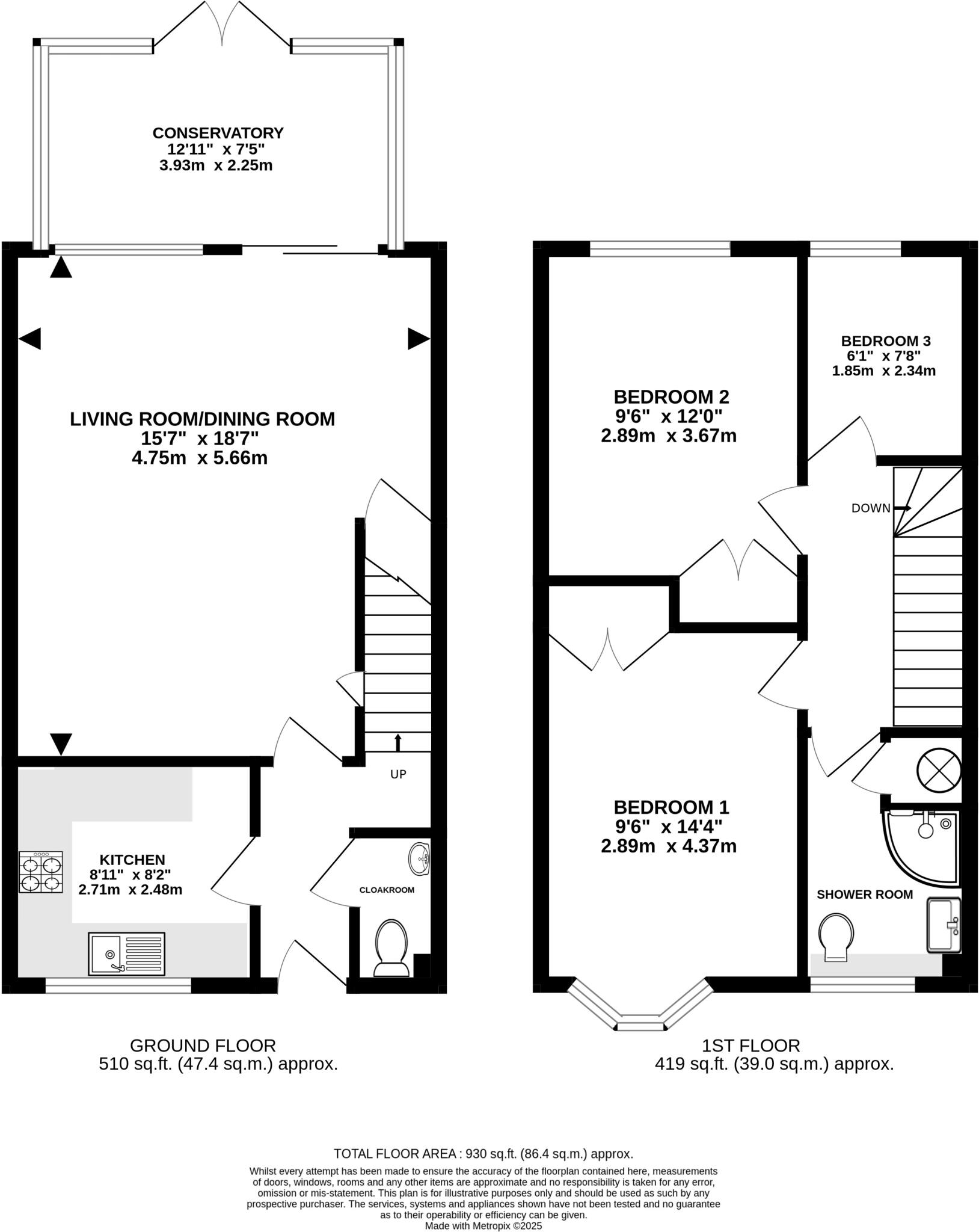
A very well presented and surprisingly spaciously planned three bedroom family house with conservatory addition, re-fitted kitchen, downstairs cloakroom, attractive gardens, private garage and an ever popular location close to excellent road links.
Property Oracle says ..
Therefore, we give this property 6 / 10. *Disclaimer: This is our option and does constitute a recommendation or financial advice. Do your own research. *
- Price
- 5
- Condition
- 6
- Location
- 7
- Land
- 7
- Bedrooms
- 3
- Bathrooms
- 1
- Sqft (est)
- 760.20
The heatmap indicates the level of crime in the area. The color of the heatmap indicates the crime severity and recency.
Metrics Year-on-Year
- Average area value
- 512,500.00 £Decreased by 7.89 %
- Est sale value
- 505,533.00 £Increased by 39.41 %
- Average area rental value
- 2,075.00 £/moIncreased by 3.18 %
- Est letting value
- 1,520.40 £/moIncreased by 100.00 %
- Est rental Yield
- 4.86 %Increased by 11.98 %
- Crime Rate
- 10.00 %Unchanged by 0.00 %
from 556,426.00 £
from 362,615.40 £
from 2,011.00 £/mo
from 760.20 £/mo
from 4.34 %
from 10.00 %
Agent Activity
Swans Estate Agents created the listing.
Nearby Schools
| Name | Type | Ofsted | Distance |
|---|---|---|---|
| Buckland Sure Start Children'S Centre | Children's Centre | 0.47 KM | |
| Buckland Primary School | Community School | Good | 0.53 KM |
| The Matthew Arnold School | Academy Converter | Good | 0.86 KM |
| Laleham Cofe Va Primary School | Voluntary Aided School | Good | 1.45 KM |
| Ashford Park Primary School | Community School | Good | 1.75 KM |
Images
Nearby Streets
| Name | Average Price | Average Sqft | Distance |
|---|---|---|---|
| Berryscroft Court | £ 131,667 | 0 | 0.00 KM |
| Ashford Road | £ 800,000 | 0 | 0.00 KM |
| Warwick Avenue | £ 0 | 0 | 0.00 KM |
| Strode's Crescent | £ 0 | 0 | 0.00 KM |
| Buxton Road | £ 0 | 0 | 0.00 KM |
Nearby Transport
| Name | NLC | TLC | Distance |
|---|---|---|---|
| Ashford (Surrey) | 5667 | AFS | 2.21 KM |
| Staines | 5670 | SNS | 2.67 KM |
| Shepperton | 5605 | SHP | 4.74 KM |
| Chertsey | 5553 | CHY | 4.94 KM |
| Addlestone | 5550 | ASN | 5.44 KM |
Nearby Listings
| Address | Price | Type | Score | Distance |
|---|---|---|---|---|
| Shaftesbury Crescent, Laleham, Staines-upon-Thames,TW18 | £ 475,000 | BUY | 6 / 10 | 0.00 KM |
| Shaftesbury Crescent, Laleham, Surrey, TW18 | £ 515,000 | BUY | 7 / 10 | 0.03 KM |
| Shaftesbury Crescent, Staines-upon-Thames, Surrey, TW18 | £ 450,000 | BUY | 7 / 10 | 0.04 KM |
| Shaftesbury Crescent, Staines-upon-Thames, TW18 | £ 500,000 | BUY | 8 / 10 | 0.04 KM |
| Shaftesbury Crescent, Staines-upon-Thames, Surrey, TW18 | £ 525,000 | BUY | 7 / 10 | 0.04 KM |
Nearby Properties
| Address | Price | Distance |
|---|---|---|
| 17 Shaftesbury Crescent | £ 375,000 | 0.04 KM |
| 31 Shaftesbury Crescent | £ 280,000 | 0.04 KM |
| 75 Shaftesbury Crescent | £ 402,500 | 0.04 KM |
| 77 Shaftesbury Crescent | £ 400,000 | 0.04 KM |
| 67 Shaftesbury Crescent | £ 442,500 | 0.04 KM |