GA
Silk Mill, Mill Road, Macclesfield
By Gascoigne Halman
£ 135,000
Reviews
3 out of 5 stars
Gascoigne Halman says ..
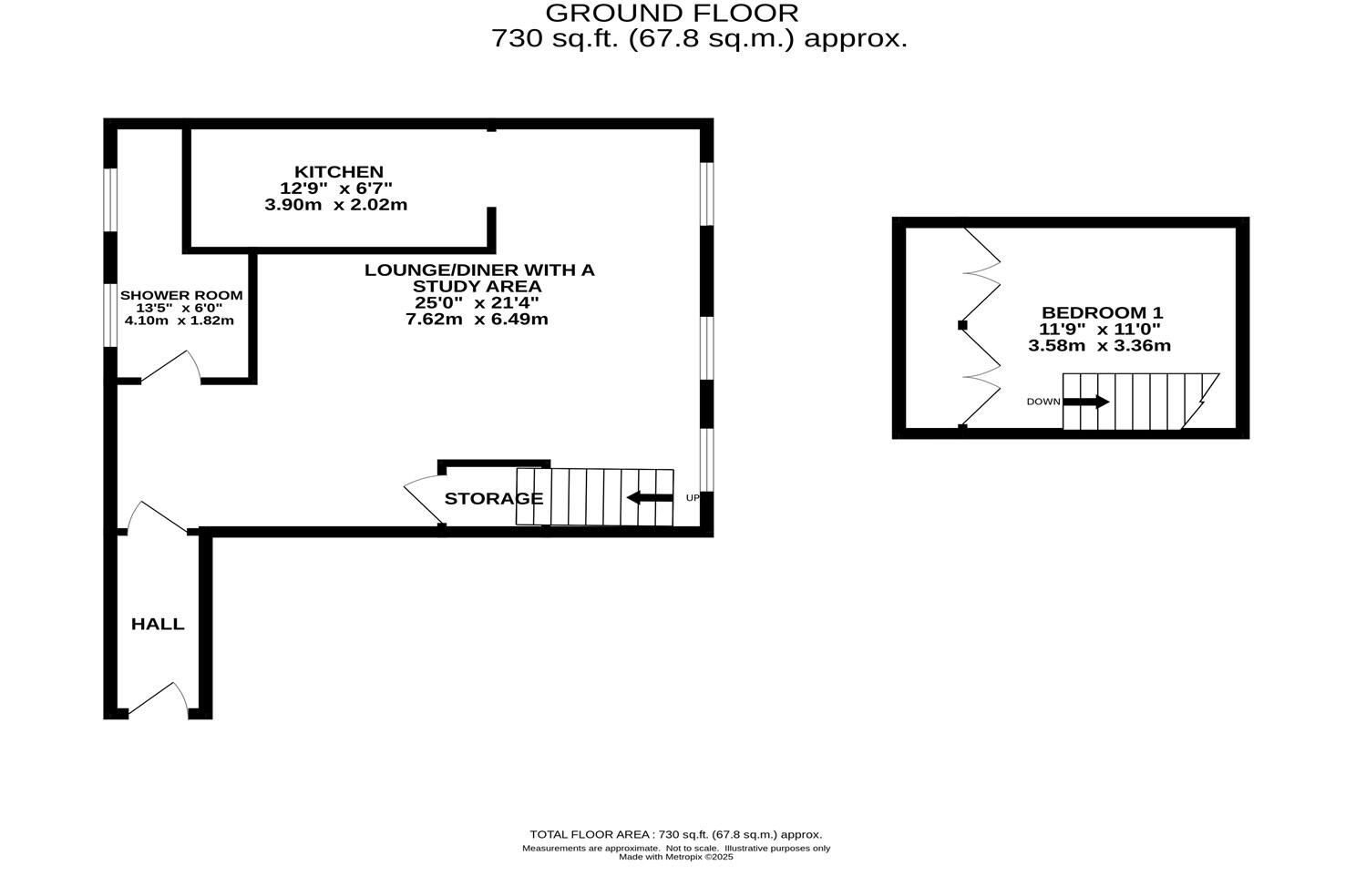
A fabulous, spacious one bedroom duplex apartment enjoying a top floor position in this lovely converted Grade 2 listed mill. Loads of great original features, parking space and being close to the Centre.
Property Oracle says ..
Therefore, we give this property 6 / 10. *Disclaimer: This is our option and does constitute a recommendation or financial advice. Do your own research. *
- Price
- 8
- Condition
- 8
- Location
- 7
- Land
- 1
- Bedrooms
- 1
- Bathrooms
- 1
- Sqft (est)
- 829.83
The heatmap indicates the level of crime in the area. The color of the heatmap indicates the crime severity and recency.
Metrics Year-on-Year
- Average area value
- 296,738.00 £Increased by 1.41 %
- Est sale value
- 307,037.10 £Increased by 42.31 %
- Average area rental value
- 988.00 £/moIncreased by 25.38 %
- Est letting value
- 829.83 £/mo
- Est rental Yield
- 4.00 %Increased by 23.84 %
- Crime Rate
- 15.00 %Unchanged by 0.00 %
from 292,600.00 £
from 215,755.80 £
from 788.00 £/mo
from 0.00 £/mo
from 3.23 %
from 15.00 %
Agent Activity
Gascoigne Halman created the listing.
Nearby Schools
| Name | Type | Ofsted | Distance |
|---|---|---|---|
| Christ The King Catholic And Church Of England Primary School | Academy Sponsor Led | 0.97 KM | |
| Ash Grove Children'S Centre | Children's Centre | 1.35 KM | |
| Ash Grove Academy | Academy Converter | 1.36 KM | |
| Puss Bank School And Nursery | Academy Converter | 1.40 KM | |
| Parkroyal Community School | Academy Converter | Good | 1.42 KM |
Images
Nearby Streets
| Name | Average Price | Average Sqft | Distance |
|---|---|---|---|
| Mill Road | £ 0 | 0 | 0.00 KM |
| Harpur Close | £ 0 | 0 | 0.00 KM |
| Smith Street | £ 0 | 0 | 0.00 KM |
| A536 | £ 0 | 0 | 0.00 KM |
| Grapes Street | £ 0 | 0 | 0.00 KM |
Nearby Transport
| Name | NLC | TLC | Distance |
|---|---|---|---|
| Macclesfield | 2871 | MAC | 0.80 KM |
| Prestbury | 2875 | PRB | 5.27 KM |
| Adlington (Cheshire) | 2939 | ADC | 7.61 KM |
Nearby Listings
| Address | Price | Type | Score | Distance |
|---|---|---|---|---|
| Silk Mill, Mill Road, Macclesfield | £ 135,000 | BUY | 6 / 10 | 0.00 KM |
| Lord Street, Macclesfield | £ 170,000 | BUY | 5 / 10 | 0.02 KM |
| Mill Road, Macclesfield | £ 125,000 | BUY | 5 / 10 | 0.04 KM |
| Mill Road, Macclesfield | £ 128,500 | BUY | 6 / 10 | 0.04 KM |
| Mill Road, Macclesfield, Cheshire, SK11 | £ 115,000 | BUY | 5 / 10 | 0.04 KM |
Nearby Properties
| Address | Price | Distance |
|---|---|---|
| 30 Cross Street | £ 46,000 | 0.07 KM |
| 8 Cross Street | £ 12,450 | 0.07 KM |
| 9 Cross Street | £ 693,425 | 0.07 KM |
| 22a Cross Mews | £ 122,000 | 0.07 KM |
| 15 Jackson Street | £ 155,000 | 0.07 KM |