Cherry Tree Lane, Ely, Soham
By Cheffins Residential
£ 165,000
Reviews
3 out of 5 stars
Cheffins Residential says ..
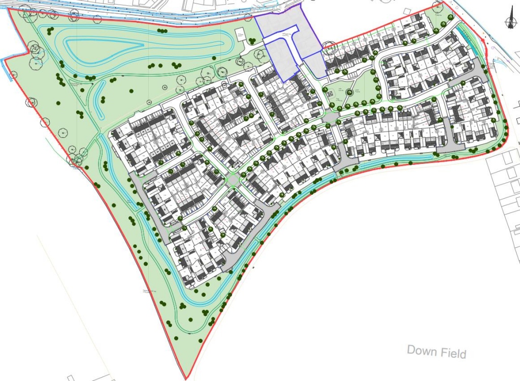
Fantastic opportunity to own one of just eleven Self-Build Plots ranging in size from 207 square metres to 511 square metres situated on the northern edge of the new development off Fordham Road, Soham. The Self-Build Plots are suitable for the construction of two storey detached houses rang...
Property Oracle says ..
The property is located in Soham South, Ely, Cambridgeshire. It is located 1.26 KM from St Andrew’S Cofe Primary School which has a good Ofsted rating. Soham Village College is also 1.34 KM away and also has a good Ofsted rating. Based on the images, the property appears to be in good condition. It looks to be a modern property that doesn’t require any immediate renovation. The plot size is not specified, however, based on the images, the property appears to have a small garden. The list price is 165,000. The average price in the area is 320,000. The average price per sqft is 386. The nearby listings are all more expensive than the list price.
Therefore, we give this property 6 / 10. *Disclaimer: This is our option and does constitute a recommendation or financial advice. Do your own research. *
- Price
- 8
- Condition
- 7
- Location
- 6
- Land
- 5
- Bedrooms
- 0
- Bathrooms
- 0
The heatmap indicates the level of crime in the area. The color of the heatmap indicates the crime severity and recency.
Metrics Year-on-Year
- Average area value
- 320,000.00 £Decreased by 9.25 %
- Average area rental value
- 1,225.00 £/moDecreased by 8.10 %
- Est rental Yield
- 4.59 %Increased by 1.10 %
- Crime Rate
- 4.00 %Unchanged by 0.00 %
Agent Activity
Cheffins Residential created the listing.
Nearby Schools
| Name | Type | Ofsted | Distance |
|---|---|---|---|
| St Andrew'S Cofe Primary School | Academy Converter | Good | 1.26 KM |
| Soham Village College | Academy Converter | Good | 1.34 KM |
| The Weatheralls Primary School | Academy Sponsor Led | Requires improvement | 1.84 KM |
| Soham Child And Family Zone | Children's Centre | 2.08 KM | |
| The Shade Primary School | Academy Sponsor Led | Good | 4.05 KM |
Images
Nearby Streets
| Name | Average Price | Average Sqft | Distance |
|---|---|---|---|
| The Crescent | £ 0 | 0 | 0.00 KM |
| Crucion Way | £ 0 | 0 | 0.00 KM |
| Perch Chase | £ 445,000 | 0 | 0.00 KM |
| Minnow Gardens | £ 0 | 0 | 0.00 KM |
| Windmill Close | £ 270,000 | 0 | 0.00 KM |
Nearby Listings
| Address | Price | Type | Score | Distance |
|---|---|---|---|---|
| Cherry Tree Lane, Ely, Soham | £ 165,000 | BUY | 6 / 10 | 0.00 KM |
| Cherry Tree Lane, Ely, Soham | £ 150,000 | BUY | 5 / 10 | 0.00 KM |
| Cherry Tree Lane, Ely, Soham | £ 150,000 | BUY | 6 / 10 | 0.00 KM |
| Cherry Tree Lane, Ely, Soham | £ 150,000 | BUY | 6 / 10 | 0.01 KM |
| Cherry Tree Lane, Ely, Soham | £ 160,000 | BUY | 6 / 10 | 0.01 KM |
Nearby Properties
| Address | Price | Distance |
|---|---|---|
| 64b Fordham Road | £ 485,000 | 0.36 KM |
| 38 Fordham Road | £ 307,850 | 0.36 KM |
| 62e Fordham Road | £ 219,000 | 0.36 KM |
| 58a Fordham Road | £ 330,000 | 0.36 KM |
| 60 Fordham Road | £ 377,500 | 0.36 KM |