YA
8 Park Circus Place, Park, G3
By Yates Hellier Ltd
£ 400,000
Reviews
2 out of 5 stars
Yates Hellier Ltd says ..
A remarkable three-bedroom conversion in the heart of Park Circus, offering elevated south-facing views, elegant proportions and private residents’ parking.Occupying a prominent position within one of Glasgow’s most prestigious crescents, this upper conversion at 8 Park Circus Place forms part of...
Property Oracle says ..
Therefore, we give this property 5 / 10. *Disclaimer: This is our option and does constitute a recommendation or financial advice. Do your own research. *
- Price
- 8
- Condition
- 6
- Location
- 8
- Land
- 1
- Bedrooms
- 3
- Bathrooms
- 2
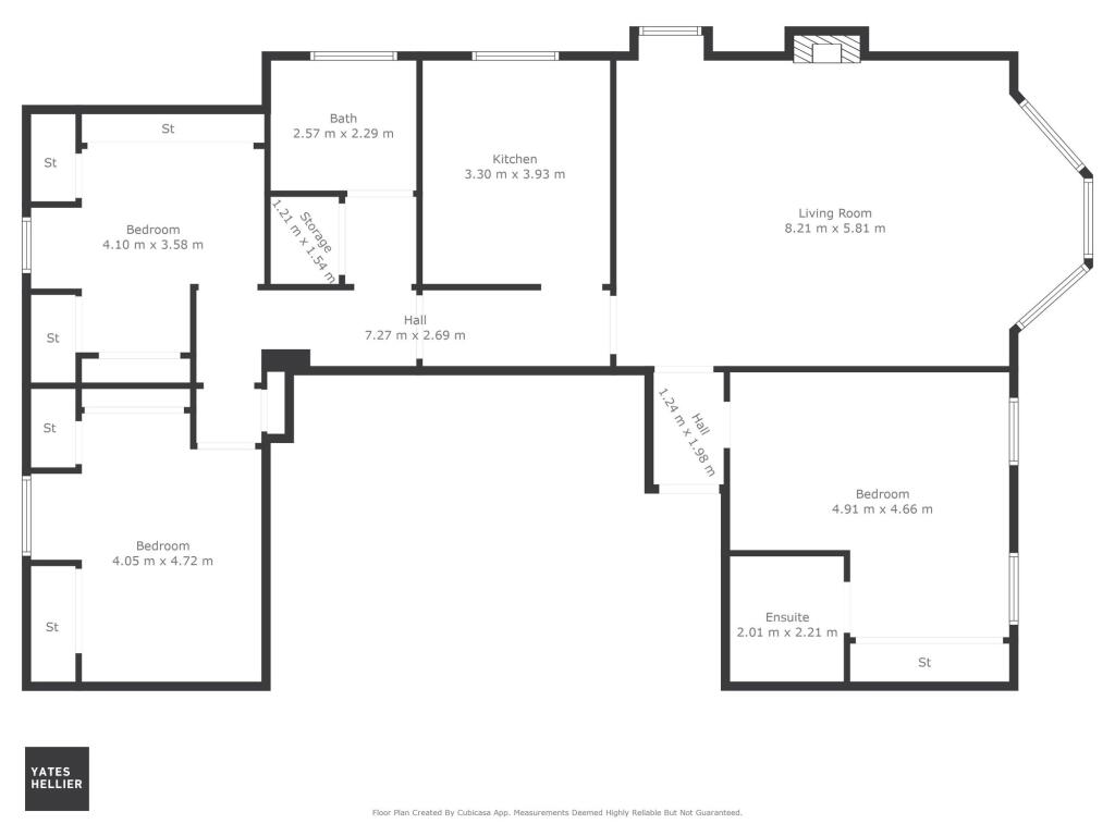
- Sqft (est)
- 1,630.74
The heatmap indicates the level of crime in the area. The color of the heatmap indicates the crime severity and recency.
Metrics Year-on-Year
- Average area value
- 235,300.00 £Decreased by 27.76 %
- Est sale value
- 489,222.00 £Decreased by 14.53 %
- Average area rental value
- 1,777.00 £/moDecreased by 8.12 %
- Est letting value
- 3,261.48 £/moUnchanged by 0.00 %
- Est rental Yield
- 9.06 %Increased by 27.07 %
- Crime Rate
- 0.00 %
from 325,723.00 £
from 572,389.74 £
from 1,934.00 £/mo
from 3,261.48 £/mo
from 7.13 %
from 0.00 %
Agent Activity
Yates Hellier Ltd created the listing.
Images
Nearby Streets
| Name | Average Price | Average Sqft | Distance |
|---|---|---|---|
| Claremont Pass | £ 0 | 0 | 0.00 KM |
| Somerset Place Meuse | £ 0 | 0 | 0.00 KM |
| Lynedoch Terrace | £ 0 | 0 | 0.00 KM |
| Woodside Terrace | £ 0 | 0 | 0.00 KM |
| Newton Terrace | £ 215,000 | 0 | 0.00 KM |
Nearby Transport
| Name | NLC | TLC | Distance |
|---|---|---|---|
| Charing Cross (Glasgow) | 9911 | CHC | 0.92 KM |
| Exhibition Centre (Glasgow) | 9914 | EXG | 1.05 KM |
| Anderston | 9965 | AND | 1.18 KM |
| Glasgow Central | 9813 | GLC | 2.37 KM |
| Glasgow Queen Street | 9950 | GLQ | 2.93 KM |
Nearby Listings
| Address | Price | Type | Score | Distance |
|---|---|---|---|---|
| 8 Park Circus Place, Park, G3 | £ 400,000 | BUY | 5 / 10 | 0.00 KM |
| Park Circus Place, Park, Glasgow | £ 765,000 | BUY | 8 / 10 | 0.00 KM |
| Park Circus Place, Flat 4/8, Park District, Glasgow, G3 6AN | £ 249,000 | BUY | 5 / 10 | 0.00 KM |
| Park Circus Place, Park, Glasgow | £ 235,000 | BUY | 7 / 10 | 0.00 KM |
| 10 Park Circus Place, Park, G3 | £ 350,000 | BUY | 5 / 10 | 0.00 KM |