Highfield Road, London, N21
By Equity Estate Agents
£ 700,000
Reviews
3 out of 5 stars
Equity Estate Agents says ..
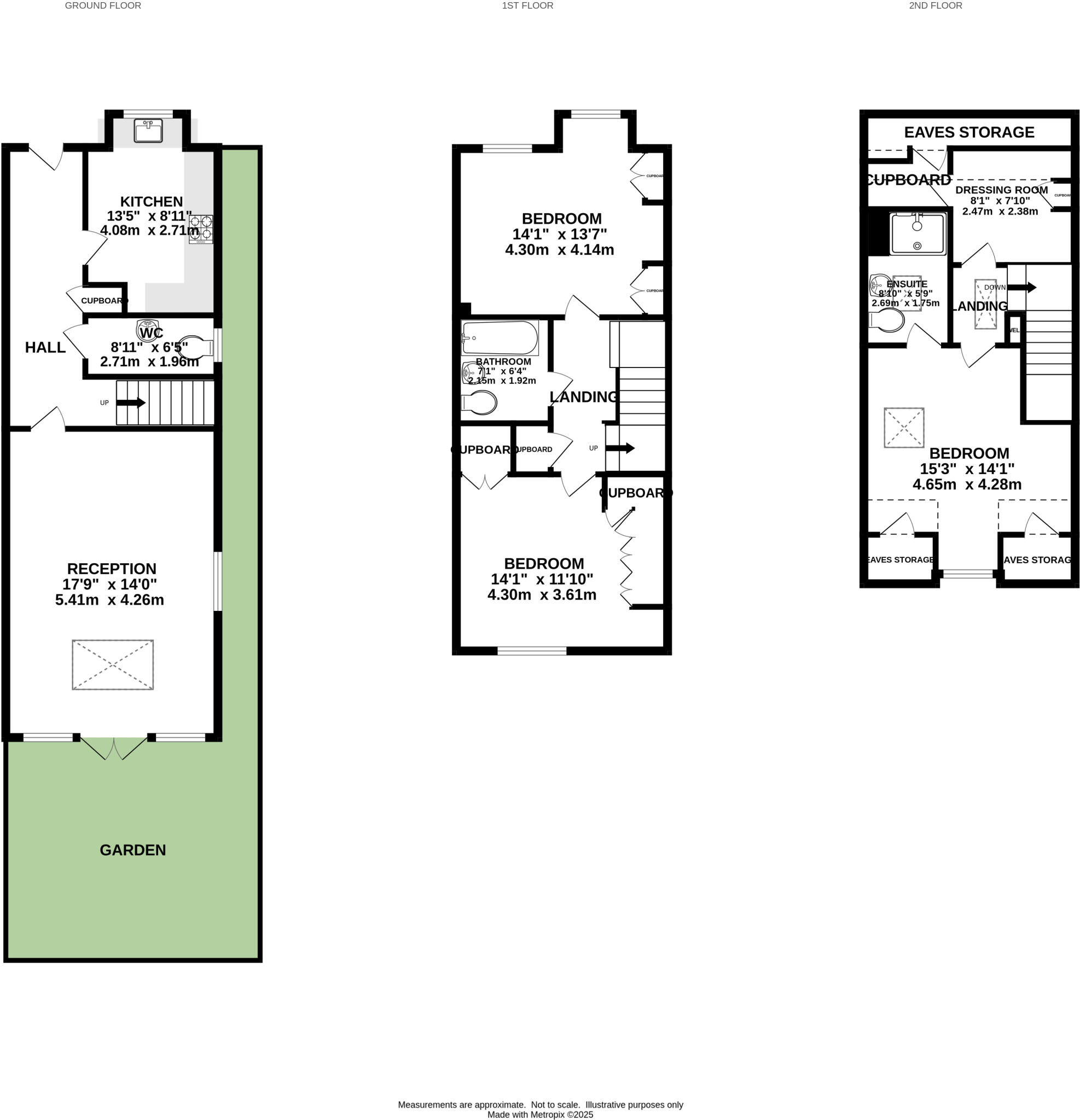
**GUIDE PRICE £700,000-£725,000** EQUITY ESTATE AGENTS are delighted to offer this WELL-PRESENTED and SPACIOUS Three-Bedroom SEMI-DETACHED Family Home. The property is located within walking distance of Ofsted Outstanding Highfield Primary and Winchmore Secondary, as well as the local...
Property Oracle says ..
Therefore, we give this property 7 / 10. *Disclaimer: This is our option and does constitute a recommendation or financial advice. Do your own research. *
- Price
- 7
- Condition
- 8
- Location
- 9
- Land
- 7
- Bedrooms
- 3
- Bathrooms
- 2
- Sqft (est)
- 1,104.38
The heatmap indicates the level of crime in the area. The color of the heatmap indicates the crime severity and recency.
Metrics Year-on-Year
- Average area value
- 462,500.00 £Decreased by 45.18 %
- Est sale value
- 784,109.80 £Increased by 12.52 %
- Average area rental value
- 2,156.00 £/moIncreased by 3.85 %
- Est letting value
- 3,313.14 £/moIncreased by 200.00 %
- Est rental Yield
- 5.59 %Increased by 89.49 %
- Crime Rate
- 3.00 %Unchanged by 0.00 %
from 843,704.00 £
from 696,863.78 £
from 2,076.00 £/mo
from 1,104.38 £/mo
from 2.95 %
from 3.00 %
Agent Activity
Equity Estate Agents created the listing.
Nearby Schools
| Name | Type | Ofsted | Distance |
|---|---|---|---|
| Highfield Primary School | Community School | Outstanding | 0.06 KM |
| Winchmore School | Community School | Good | 0.18 KM |
| St Paul'S Cofe Primary School | Voluntary Aided School | Outstanding | 0.89 KM |
| Grange Park Preparatory School | Other Independent School | 1.27 KM | |
| Palmers Green High School | Other Independent School | 1.28 KM |
Images
Nearby Streets
| Name | Average Price | Average Sqft | Distance |
|---|---|---|---|
| New River Path | £ 0 | 0 | 0.00 KM |
| Hyde Park Gardens | £ 775,000 | 0 | 0.00 KM |
| Haslemere Road | £ 817,134 | 0 | 0.00 KM |
| The Rowans | £ 0 | 0 | 0.00 KM |
| Kent Road | £ 825,000 | 0 | 0.00 KM |
Nearby Transport
| Name | NLC | TLC | Distance |
|---|---|---|---|
| Winchmore Hill | 6024 | WIH | 0.98 KM |
| Grange Park | 6029 | GPK | 1.52 KM |
| Palmers Green | 6021 | PAL | 2.28 KM |
| Enfield Chase | 6010 | ENC | 2.65 KM |
| Enfield Town | 6959 | ENF | 2.93 KM |
Nearby Listings
| Address | Price | Type | Score | Distance |
|---|---|---|---|---|
| Highfield Road, London, N21 | £ 700,000 | BUY | 7 / 10 | 0.00 KM |
| Farm Road, London, N21 | £ 700,000 | BUY | Unknown | 0.12 KM |
| Farm Road, N21 | £ 700,000 | BUY | Unknown | 0.13 KM |
| Laburnum Grove, London | £ 625,000 | BUY | 6 / 10 | 0.24 KM |
| Laburnum Grove, London, N21 | £ 635,000 | BUY | 6 / 10 | 0.25 KM |
Nearby Properties
| Address | Price | Distance |
|---|---|---|
| 71 Farm Road | £ 485,000 | 0.09 KM |
| 63 Farm Road | £ 135,700 | 0.09 KM |
| 53 Farm Road | £ 418,000 | 0.09 KM |
| 57 Farm Road | £ 610,000 | 0.09 KM |
| 59 Farm Road | £ 820,000 | 0.09 KM |