Ivanhoe Road, 12 Ivanhoe Road, L17
By North Wall
£ 220,000
Reviews
2 out of 5 stars
North Wall says ..
Discover this exquisite top floor, 2-bedroom split level apartment, perfectly situated in the highly desirable L17 area. Boasting an impressive blend of modern amenities and period charm, this loft-style living space offers a unique and inviting atmosphere.
Property Oracle says ..
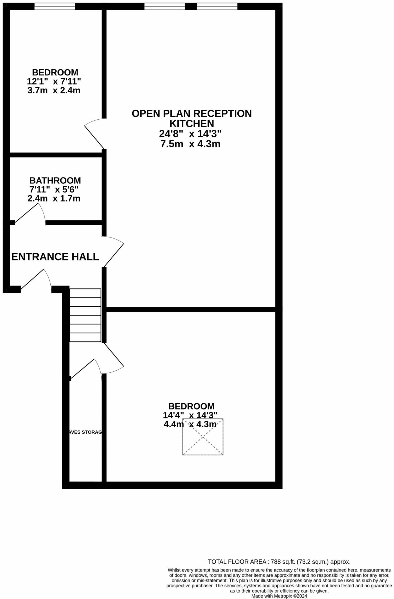
This 2-bedroom, 1-bathroom apartment located on Ivanhoe Road in Liverpool’s L17 postcode, is presented as a recently renovated property. The images show a modern, clean aesthetic with a contemporary kitchen and bathroom. The open-plan layout creates a spacious feel. The apartment is in a convenient location, relatively close to both Lark Lane and Sefton Park, areas offering various shops, restaurants, and green space. The proximity to several well-regarded schools adds to its family-friendly appeal. Public transport links seem easily accessible with St Michael’s station at under a kilometre’s distance. However, the lack of information about the size of the apartment, apart from the overall area mentioned, and the absence of a garden or outdoor space are notable factors. The price appears competitive with other similar apartments in the area, making it a potentially sound investment. Further information on any service charges or leasehold details would assist in a more thorough assessment. A viewing would be highly recommended to verify the condition and appraise the actual space and finish of the property.
Therefore, we give this property 5 / 10. *Disclaimer: This is our option and does constitute a recommendation or financial advice. Do your own research. *
- Price
- 7
- Condition
- 8
- Location
- 7
- Land
- 1
- Bedrooms
- 2
- Bathrooms
- 1
- Sqft (est)
- 787.92
The heatmap indicates the level of crime in the area. The color of the heatmap indicates the crime severity and recency.
Metrics Year-on-Year
- Average area value
- 234,977.00 £Increased by 10.88 %
- Est sale value
- 231,648.48 £Increased by 28.95 %
- Average area rental value
- 1,065.00 £/moDecreased by 1.11 %
- Est letting value
- 787.92 £/moUnchanged by 0.00 %
- Est rental Yield
- 5.44 %Decreased by 10.82 %
- Crime Rate
- 12.00 %Unchanged by 0.00 %
Agent Activity
North Wall created the listing.
Nearby Schools
| Name | Type | Ofsted | Distance |
|---|---|---|---|
| Auckland College | Other Independent School | Outstanding | 0.26 KM |
| Bellerive Fcj Catholic College | Academy Converter | Good | 0.56 KM |
| St Michael-In-The-Hamlet Community Primary School | Community School | Good | 0.59 KM |
| St Charles' Catholic Primary School | Voluntary Aided School | Good | 0.62 KM |
| The Belvedere Preparatory School | Other Independent School | 1.14 KM |
Images
Nearby Streets
| Name | Average Price | Average Sqft | Distance |
|---|---|---|---|
| Waverley Road | £ 256,667 | 0 | 0.00 KM |
| Parkfield Mews | £ 240,000 | 0 | 0.00 KM |
| Lucknow Street | £ 0 | 0 | 0.00 KM |
| Alexandra Park | £ 0 | 0 | 0.00 KM |
| Linnet House Driveway | £ 0 | 0 | 0.00 KM |
Nearby Transport
| Name | NLC | TLC | Distance |
|---|---|---|---|
| St Michaels | 2248 | STM | 0.89 KM |
| Edge Hill | 2169 | EDG | 2.36 KM |
| Aigburth | 2255 | AIG | 2.90 KM |
| Brunswick | 3623 | BRW | 3.20 KM |
| Mossley Hill | 2171 | MSH | 3.52 KM |
Nearby Listings
| Address | Price | Type | Score | Distance |
|---|---|---|---|---|
| Ivanhoe Road, 12 Ivanhoe Road, L17 | £ 220,000 | BUY | 5 / 10 | 0.00 KM |
| 14 Ivanhoe Road, Liverpool, Merseyside, L17 | £ 195,000 | BUY | Unknown | 0.01 KM |
| Ivanhoe Road, Aigburth, L17 | £ 235,000 | BUY | 6 / 10 | 0.02 KM |
| Ivanhoe Road, Aigburth, Liverpool. | £ 190,000 | BUY | 6 / 10 | 0.04 KM |
| Little Parkfield Road, Liverpool | £ 275,000 | BUY | 5 / 10 | 0.09 KM |
Nearby Properties
| Address | Price | Distance |
|---|---|---|
| 18 Ivanhoe Road | £ 102,000 | 0.02 KM |
| 31 Marmion Road | £ 162,500 | 0.07 KM |
| 20 Waverley Road | £ 211,185 | 0.10 KM |
| 24 Waverley Road | £ 54,950 | 0.10 KM |
| 26 Waverley Road | £ 345,000 | 0.10 KM |