MA
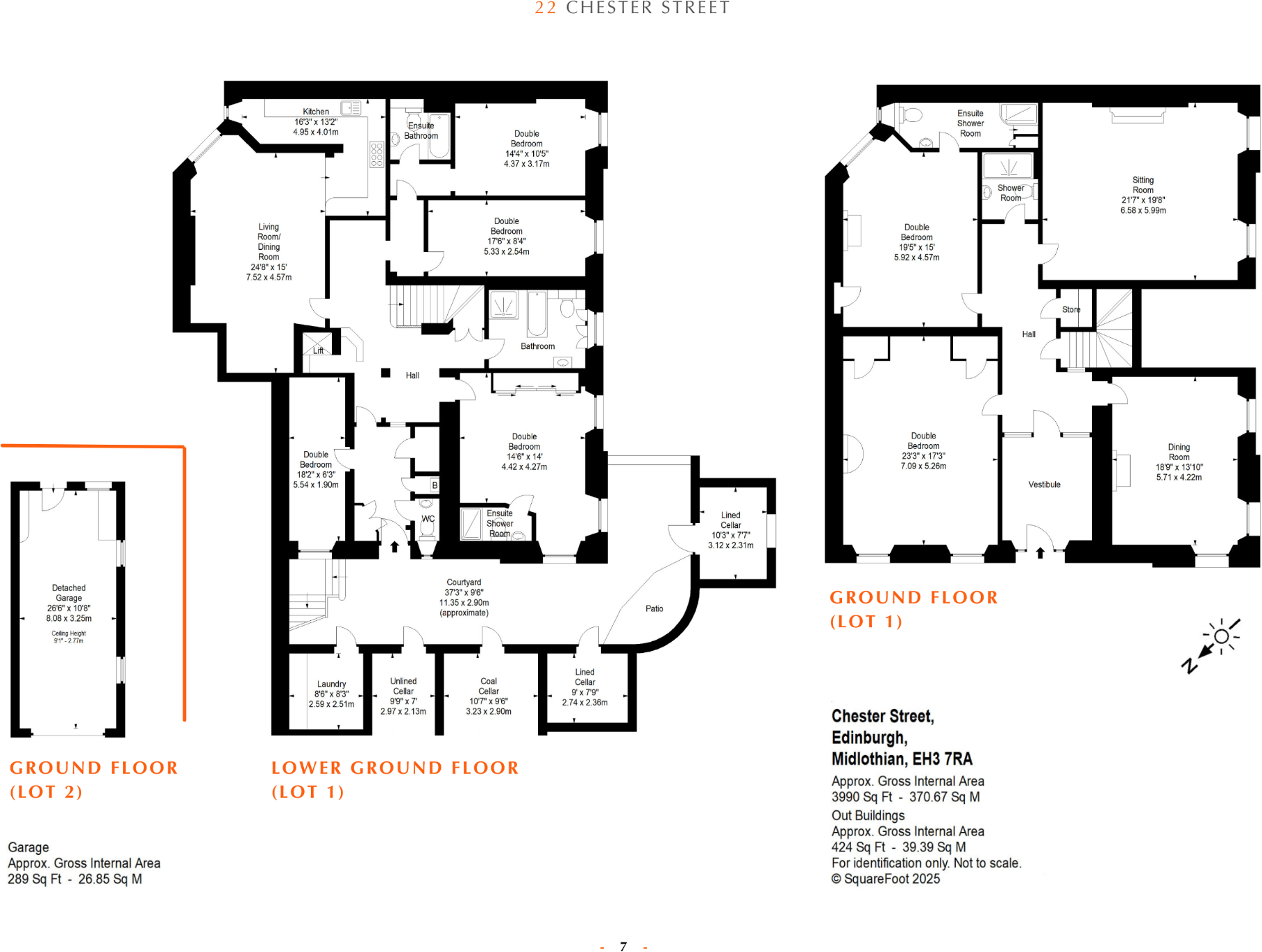
22 Chester Street, Edinburgh, EH3
By Macgregor
£ 1,075,000
Reviews
3 out of 5 stars
Macgregor says ..
22 Chester Street is a substantial six-bedroom, main-door ground and garden flat, situated on the corner of Manor Place and Chester Street in Edinburgh's West End.
Property Oracle says ..
Therefore, we give this property 7 / 10. *Disclaimer: This is our option and does constitute a recommendation or financial advice. Do your own research. *
- Price
- 7
- Condition
- 7
- Location
- 9
- Land
- 6
- Bedrooms
- 6
- Bathrooms
- 5
The heatmap indicates the level of crime in the area. The color of the heatmap indicates the crime severity and recency.
Metrics Year-on-Year
- Average area value
- 322,952.00 £Decreased by 27.89 %
- Average area rental value
- 1,604.00 £/moDecreased by 7.50 %
- Est rental Yield
- 5.96 %Increased by 28.17 %
- Crime Rate
- 0.00 %
from 447,880.00 £
from 1,734.00 £/mo
from 4.65 %
from 0.00 %
Agent Activity
Macgregor created the listing.
Nearby Schools
| Name | Type | Ofsted | Distance |
|---|---|---|---|
| Merchiston Castle School | Offshore Schools | 5.93 KM | |
| Cargilfield School | Offshore Schools | 9.57 KM |
Images
Nearby Streets
| Name | Average Price | Average Sqft | Distance |
|---|---|---|---|
| Palmerston Place Lane | £ 0 | 0 | 0.00 KM |
| Lynedoch Place Lane | £ 0 | 0 | 0.00 KM |
| Torphichen Place Lane | £ 0 | 0 | 0.00 KM |
| William Street North East Lane | £ 0 | 0 | 0.00 KM |
| Mclaren Terrace | £ 0 | 0 | 0.00 KM |
Nearby Transport
| Name | NLC | TLC | Distance |
|---|---|---|---|
| Haymarket | 9419 | HYM | 0.54 KM |
| Edinburgh | 9328 | EDB | 3.07 KM |
| Slateford | 9236 | SLA | 3.99 KM |
| Kingsknowe | 9217 | KGE | 6.43 KM |
| Wester Hailes | 9231 | WTA | 8.54 KM |
Nearby Listings
| Address | Price | Type | Score | Distance |
|---|---|---|---|---|
| 22 Chester Street, Edinburgh, EH3 | £ 1,075,000 | BUY | 7 / 10 | 0.00 KM |
| Chester Street Lane, Edinburgh, EH3 | £ 130,000 | BUY | Unknown | 0.03 KM |
| Chester Street, Edinburgh, Midlothian | £ 495,000 | BUY | 7 / 10 | 0.04 KM |
| Manor Place, Edinburgh | £ 2,500,000 | BUY | 7 / 10 | 0.06 KM |
| Chester Street, West End, Edinburgh, EH3 | £ 1,595,000 | BUY | Unknown | 0.06 KM |