King Johns Court, Tewkesbury, GL20
By Engall Castle
£ 330,000
Reviews
3 out of 5 stars
Engall Castle says ..
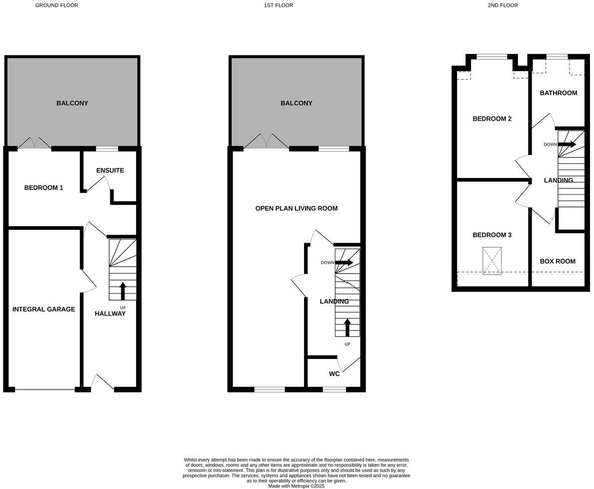
With delightful far reaching views from balconies on two levels, this modern town house offers space and all within minutes walking distance of the town centre.
Property Oracle says ..
This terraced property in King Johns Court, Tewkesbury, offers three bedrooms and three bathrooms within 691 sqft. The house is located close to local amenities and schools. The interior appears well-maintained, with a modern kitchen and bathrooms. While the property lacks a large garden, it features a balcony with views. The price is reasonable for the area, making it an attractive option for families or individuals seeking a blend of convenience and comfort.
Therefore, we give this property 6 / 10. *Disclaimer: This is our option and does constitute a recommendation or financial advice. Do your own research. *
- Price
- 7
- Condition
- 7
- Location
- 7
- Land
- 4
- Bedrooms
- 3
- Bathrooms
- 3
- Sqft (est)
- 691.00
The heatmap indicates the level of crime in the area. The color of the heatmap indicates the crime severity and recency.
Metrics Year-on-Year
- Average area value
- 310,000.00 £Decreased by 7.35 %
- Est sale value
- 188,643.00 £Decreased by 5.21 %
- Average area rental value
- 940.00 £/moIncreased by 19.14 %
- Est letting value
- 0.00 £/mo
- Est rental Yield
- 3.64 %Increased by 28.62 %
- Crime Rate
- 4.00 %Unchanged by 0.00 %
Agent Activity
Engall Castle created the listing.
Nearby Schools
| Name | Type | Ofsted | Distance |
|---|---|---|---|
| Tewkesbury Church Of England Primary School | Voluntary Controlled School | Good | 0.82 KM |
| Abbey View | Free Schools Alternative Provision | Good | 1.16 KM |
| Mitton Manor Primary School | Academy Converter | Good | 1.40 KM |
| Noah'S Ark Children'S Centre | Children's Centre | 1.54 KM | |
| Queen Margaret Primary School | Community School | Requires improvement | 1.54 KM |
Images
Nearby Streets
| Name | Average Price | Average Sqft | Distance |
|---|---|---|---|
| Jubilee Court | £ 0 | 0 | 0.00 KM |
| Clark's Alley | £ 180,000 | 0 | 0.00 KM |
| Old Hospital Lane | £ 235,000 | 0 | 0.00 KM |
| Tracy Row | £ 0 | 0 | 0.00 KM |
| Back of Avon | £ 0 | 0 | 0.00 KM |
Nearby Transport
| Name | NLC | TLC | Distance |
|---|---|---|---|
| Ashchurch For Tewkesbury | 4700 | ASC | 5.37 KM |
Nearby Listings
| Address | Price | Type | Score | Distance |
|---|---|---|---|---|
| King Johns Court, Tewkesbury, GL20 | £ 330,000 | BUY | 6 / 10 | 0.00 KM |
| King Johns Court, Tewkesbury, Gloucestershire | £ 550,000 | BUY | 6 / 10 | 0.01 KM |
| King Johns Court, Tewkesbury, GL20 | £ 360,000 | BUY | 6 / 10 | 0.07 KM |
| High Street, Tewkesbury, GL20 | £ 175,000 | BUY | 6 / 10 | 0.14 KM |
| High Street, Tewkesbury, GL20 | £ 165,000 | BUY | 7 / 10 | 0.14 KM |
Nearby Properties
| Address | Price | Distance |
|---|---|---|
| 20 King Johns Court | £ 295,000 | 0.01 KM |
| 21 King Johns Court | £ 189,950 | 0.01 KM |
| 23 King Johns Court | £ 205,000 | 0.01 KM |
| 28 King Johns Court | £ 259,950 | 0.01 KM |
| 10 King Johns Court | £ 175,000 | 0.01 KM |